Eladó telek, T040321
Kecskemét, Hetényegyháza

33 000 000 Ft

85 000 €

  • 7 454m²
Kiemelt megbízás

For sale is a 7454 sqm building plot in a wooded environment!

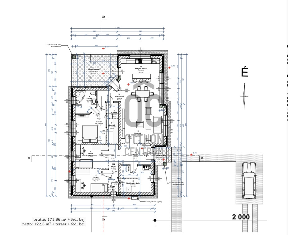
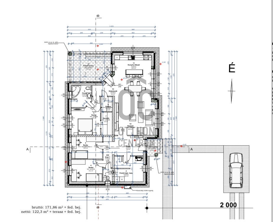
Building plot for sale in Hetényegyház, Kecskemét, with ready plans and approved permits. Key features: - 7454 sqm plot area - 5% buildability - Quiet, wooded environment - 800 m from the asphalt road - Sold with a drilled well - Existing permits available (valid for 4 years) - Complete planning documentation for a family house with 1 living room + 3 rooms - Gross area of 171.86 sqm + covered entrance - Net area of 122.3 sqm + terrace + covered entrance - Electricity available in front of the plot - Gas available in front of the plot For more information, feel free to contact us!

Regisztrációs szám

T040321

Az ingatlan adatai

Értékesités
eladó
Jelleg
telek
Típus
Építési telek
Övezet
lakóövezet
Telek méret
7 454 m²
Tájolás
Észak-kelet
Panoráma
Zöldre néző panoráma
Környék
csendes, jó közlekedés, zöld
Víz
Van
Gáz
Utcán
Villany
Utcán

 

Beépíthetőség
5%
Homlokzat magassága
5
Építhető ingatlan típusa
Családi ház

Irodánk kínálatából - Kecskemét - Kisfaludy utca

eladó lakás

Index image
Elérhető Otthon Start hitellel
12

eladó tanya

Index image
Elérhető Otthon Start hitellel
25

eladó családi ház

Index image
22

eladó tanya

Index image
Elérhető Otthon Start hitellel
22