14 990 000 Ft
39 000 €
- 1 218m²














Építési telek Toronyban, gyönyörű panorámával
Szombathelytől mindössze 15 percre, Toronyban kínálunk eladásra egy 1218 nm-es építési telket.
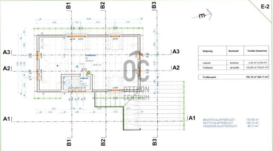
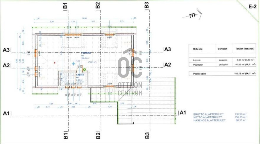
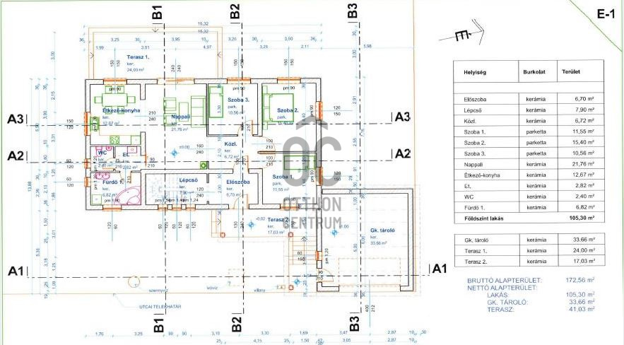
Egy 120 nm-es családi ház alapja, kész tervezete, építési engedélye már rendelkezésre áll.
A környék csendes, nyugodt. A telekről gyönyörű panoráma tárul elénk.
- beépíthetősége: 30%
- építménymagasság: 4,5 m
- övezet: FL
közművek:
- víz: utcán
- villany: bekötve
- gáz: nincs a településen
- csatorna: bekötve
További információért hívjon bizalommal!
Egy 120 nm-es családi ház alapja, kész tervezete, építési engedélye már rendelkezésre áll.
A környék csendes, nyugodt. A telekről gyönyörű panoráma tárul elénk.
- beépíthetősége: 30%
- építménymagasság: 4,5 m
- övezet: FL
közművek:
- víz: utcán
- villany: bekötve
- gáz: nincs a településen
- csatorna: bekötve
További információért hívjon bizalommal!
Regisztrációs szám
T040117
Az ingatlan adatai
Értékesités
eladó
Jelleg
telek
Típus
Építési telek
Övezet
lakóövezet
Telek méret
1 218 m²
Tájolás
Kelet
Panoráma
városi panoráma
Környék
csendes, zöld
Víz
Utcán
Villany
Van
Csatorna
Van
Beépíthetőség
30%
Homlokzat magassága
450
Építhető ingatlan típusa
Családi ház

Csejtey Krisztina
Hitelszakértő