Eladó újépítésű lakás, P4801-1-0A-07-703
Budapest XIII. kerület, Angyalföld

242 900 000 Ft

641 000 €

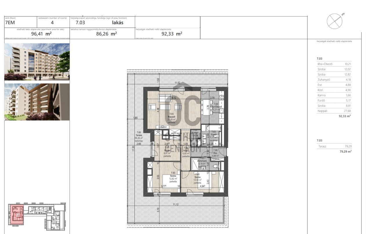
  • 92,3m²
  • 4 szoba
  • 7. emelet

Regisztrációs szám

P4801-1-0A-07-703

Az ingatlan adatai

Értékesités
eladó
Jogi státusz
új
Jelleg
lakás
Építési mód
tégla
Méret
92,3 m²
Bruttó méret
132,3 m²
Fűtés
hőszivattyú (levegő-víz)
Belmagasság
260 cm
Tájolás
Észak-nyugat
Panoráma
városi panoráma
Lépcsőház típusa
zárt lépcsőház
Állapot
Kiváló
Homlokzat állapota
Kiváló
Lépcsőház állapota
Kiváló
Környék
csendes, jó közlekedés, zöld, központi
Építés éve
2027
Fürdőszobák száma
2
Fekvés
utcai
Víz
Van
Villany
Van
Csatorna
Van
Lift
van
Tároló
Külön vásárolható

Helyiségek

nappali
27.68 m²
szoba
8.81 m²
szoba
12.82 m²
szoba
12.02 m²
fürdőszoba-wc
5.17 m²
zuhanyzó
4.18 m²
kamra
1.66 m²
közlekedő
4.9 m²
előszoba
4.88 m²
Németh István
Németh István

Hitelszakértő

Irodánk kínálatából - XIII. kerület - Dagály Residence

for sale new construction apartment

Index image
8

for sale panel apartment

Index image
data_sheet.details.realestate.section.main.otthonstart_flag.label
11

eladó lakás

Index image
Elérhető Otthon Start hitellel
16

eladó üzleti célú ingatlan

Index image
3

eladó újépítésű lakás

Index image
23

for rent apartment

Index image
8