Eladó újépítésű lakás, P4801-1-0A-07-702
Budapest XIII. kerület, Angyalföld

216 900 000 Ft

573 000 €

  • 86,4m²
  • 4 szoba
  • 7. emelet

Regisztrációs szám

P4801-1-0A-07-702

Az ingatlan adatai

Értékesités
eladó
Jogi státusz
új
Jelleg
lakás
Építési mód
tégla
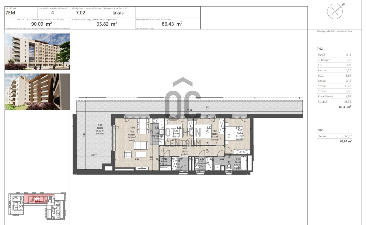
Méret
86,4 m²
Bruttó méret
108,3 m²
Terasz / erkély mérete
65,8 m²
Fűtés
hőszivattyú (levegő-víz)
Belmagasság
260 cm
Tájolás
Nyugat
Lépcsőház típusa
zárt lépcsőház
Állapot
Kiváló
Homlokzat állapota
Kiváló
Lépcsőház állapota
Kiváló
Környék
csendes, jó közlekedés, zöld, központi
Építés éve
2027
Fürdőszobák száma
2
Fekvés
kertre néző
Víz
Van
Villany
Van
Csatorna
Van
Lift
van
Tároló
Külön vásárolható

Helyiségek

fürdőszoba
6.13 m²
zuhanyzó
3.23 m²
előszoba
3.01 m²
kamra
1.27 m²
közlekedő
8.69 m²
szoba
10.12 m²
szoba
10.78 m²
szoba
9.95 m²
konyha-étkező
7.63 m²
nappali
23.59 m²
Németh István
Németh István

Hitelszakértő

Irodánk kínálatából - XIII. kerület - Dagály Residence

for sale new construction apartment

Index image
8

for sale panel apartment

Index image
data_sheet.details.realestate.section.main.otthonstart_flag.label
11

eladó lakás

Index image
Elérhető Otthon Start hitellel
16

eladó üzleti célú ingatlan

Index image
3

eladó újépítésű lakás

Index image
23

for rent apartment

Index image
8