Eladó újépítésű lakás, P4801-1-0A-07-701
Budapest XIII. kerület, Angyalföld

244 900 000 Ft

646 000 €

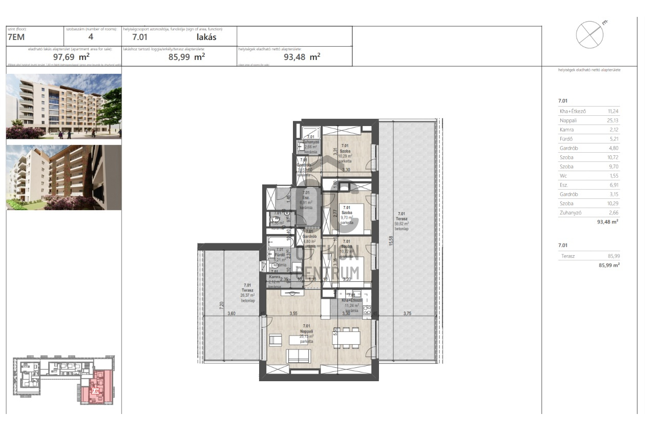
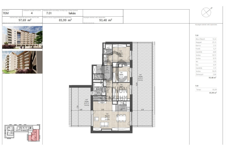
  • 93,4m²
  • 4 szoba
  • 7. emelet

Regisztrációs szám

P4801-1-0A-07-701

Az ingatlan adatai

Értékesités
eladó
Jogi státusz
új
Jelleg
lakás
Építési mód
tégla
Méret
93,4 m²
Bruttó méret
122,1 m²
Terasz / erkély mérete
85,9 m²
Fűtés
hőszivattyú (levegő-víz)
Belmagasság
263 cm
Lakáson belüli szintszám
1
Tájolás
Dél-nyugat
Lépcsőház típusa
zárt lépcsőház
Állapot
Kiváló
Homlokzat állapota
Kiváló
Lépcsőház állapota
Kiváló
Környék
csendes, jó közlekedés, zöld, központi
Építés éve
2027
Fürdőszobák száma
2
Fekvés
kertre néző
Víz
Van
Villany
Van
Csatorna
Van
Lift
van
Tároló
Külön vásárolható

Helyiségek

előszoba
3.15 m²
nappali-konyha
36.37 m²
szoba
10.72 m²
szoba
9.7 m²
szoba
10.29 m²
kamra
2.1 m²
fürdőszoba-wc
5.21 m²
zuhanyzó
2.86 m²
wc-kézmosó
1.56 m²
gardrób
4.8 m²
terasz
85.99 m²
Németh István
Németh István

Hitelszakértő

Irodánk kínálatából - XIII. kerület - Dagály Residence

for sale new construction apartment

Index image
8

for sale panel apartment

Index image
data_sheet.details.realestate.section.main.otthonstart_flag.label
11

eladó lakás

Index image
Elérhető Otthon Start hitellel
16

eladó üzleti célú ingatlan

Index image
3

eladó újépítésű lakás

Index image
23

for rent apartment

Index image
8