Elérhető Otthon Start hitellel
Eladó újépítésű lakás,
P4792-1-0A-01-013
Kiskunlacháza,
51 100 000 Ft
135 000 €
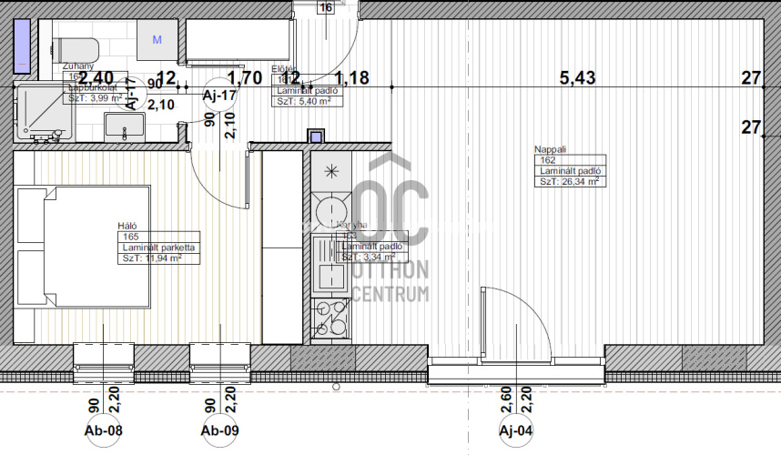
- 51m²
- 2 szoba
- 1. emelet
Dunaparti luxus lakások Kiskunlacházán
Dunaparti luxus lakások Kiskunlacházán – panoráma, nyugalom, minőség
Ne hagyja ki ezt a kivételes lehetőséget!
Kiskunlacházán, közvetlen Duna-parti, csendes zöld környezetben, új építésű, modern lakóparkban kínálunk eladásra 19 exkluzív, Dunára panorámás vízparti lakást.
A földszint + 2 emeletes kialakítású társasház ideális választás mindazok számára, akik a természet közelségét, a vízpart nyugalmát és a modern luxus kényelmét keresik.
A projekt várható átadása: 2026. április 30.
________________________________________
Fizetési ütemezés
•Szerződéskötéskor: 50%
•Engedély kérelem benyújtásakor: 25%
•Birtokbavételkor: 25%
Lépjen most, és legyen az elsők között, akik élvezhetik a Duna közelségének páratlan hangulatát és az új otthon kényelmét!
Keressen minket bizalommal további részletekért!
________________________________________
Kiemelt előnyök
•Dunára panorámás, vízparti lakások
•Csendes, zöld környezet, természetközeli életérzés
•Modern geotermikus fűtés és hűtés, hővisszanyerős légtechnika
•Elektromos, távirányítós redőnyök és riasztórendszer kiállások
•Videós kaputelefon
•Lakásonként egy db. felszíni nyitott beálló és + parkolóhely vásárolható 2.000.000Ft/db áron
•Közösségi stég, parkosított udvar, grillező, játszótér
•Elektromos autótöltési lehetőség
•Energiatakarékos, környezetbarát megoldások
________________________________________
Műszaki tartalom – Kiskunlacháza, 19 lakásos lakópark
Épületszerkezet
•Vasbeton alapozás (1974), bővítés és korszerűsítés 2024-ben
•Főfalak: kisméretű tégla
2.emelet külső falai: Ytong
•Lakások közötti falak: Silka
•Lakáson belüli válaszfalak: Ytong
Nyílászárók
•8 kamrás, megerősített műanyag-fémvázas profil
•Háromrétegű üvegezés
•Elektromos redőnyök (szúnyogháló nem alapfelszerelés)
•Videós kaputelefon
Homlokzat és hőszigetelés
•14–16 cm vastag külső hőszigetelés
•Prémium STO vakolatrendszer
Belmagasság
•Földszint és 1. emelet: 2,8 m
•2.emelet: 2,6 m
Burkolatok és felszereltség
•Hideg- és melegburkolatok választhatók az árban meghatározott keretösszegig
•Fürdőszobai szaniterek részben az ár részét képezik, extra kérés esetén a vevő biztosítja.
Fűtés és hűtés
•Geotermikus, talajszondás rendszer
•Mennyezeti és aljzati hűtés-fűtés
•Egyedi mérőórák minden lakásban
Közösségi terek
•Parkosított kert, sövények, fák
•Közösségi stég, grillező
•Elektromos kapu, rácsos fémkerítés
•Lakásonként 1 nyitott parkoló az árban
•További parkolók vásárolhatók: 2.000.000 Ft/db
Energetikai besorolás
•Tervezett legjobb kategória
•Hivatalos minősítés folyamatban
________________________________________
Kérdésekkel és megtekintéssel kapcsolatban várom jelentkezését.
Ne hagyja ki ezt a kivételes lehetőséget!
Kiskunlacházán, közvetlen Duna-parti, csendes zöld környezetben, új építésű, modern lakóparkban kínálunk eladásra 19 exkluzív, Dunára panorámás vízparti lakást.
A földszint + 2 emeletes kialakítású társasház ideális választás mindazok számára, akik a természet közelségét, a vízpart nyugalmát és a modern luxus kényelmét keresik.
A projekt várható átadása: 2026. április 30.
________________________________________
Fizetési ütemezés
•Szerződéskötéskor: 50%
•Engedély kérelem benyújtásakor: 25%
•Birtokbavételkor: 25%
Lépjen most, és legyen az elsők között, akik élvezhetik a Duna közelségének páratlan hangulatát és az új otthon kényelmét!
Keressen minket bizalommal további részletekért!
________________________________________
Kiemelt előnyök
•Dunára panorámás, vízparti lakások
•Csendes, zöld környezet, természetközeli életérzés
•Modern geotermikus fűtés és hűtés, hővisszanyerős légtechnika
•Elektromos, távirányítós redőnyök és riasztórendszer kiállások
•Videós kaputelefon
•Lakásonként egy db. felszíni nyitott beálló és + parkolóhely vásárolható 2.000.000Ft/db áron
•Közösségi stég, parkosított udvar, grillező, játszótér
•Elektromos autótöltési lehetőség
•Energiatakarékos, környezetbarát megoldások
________________________________________
Műszaki tartalom – Kiskunlacháza, 19 lakásos lakópark
Épületszerkezet
•Vasbeton alapozás (1974), bővítés és korszerűsítés 2024-ben
•Főfalak: kisméretű tégla
2.emelet külső falai: Ytong
•Lakások közötti falak: Silka
•Lakáson belüli válaszfalak: Ytong
Nyílászárók
•8 kamrás, megerősített műanyag-fémvázas profil
•Háromrétegű üvegezés
•Elektromos redőnyök (szúnyogháló nem alapfelszerelés)
•Videós kaputelefon
Homlokzat és hőszigetelés
•14–16 cm vastag külső hőszigetelés
•Prémium STO vakolatrendszer
Belmagasság
•Földszint és 1. emelet: 2,8 m
•2.emelet: 2,6 m
Burkolatok és felszereltség
•Hideg- és melegburkolatok választhatók az árban meghatározott keretösszegig
•Fürdőszobai szaniterek részben az ár részét képezik, extra kérés esetén a vevő biztosítja.
Fűtés és hűtés
•Geotermikus, talajszondás rendszer
•Mennyezeti és aljzati hűtés-fűtés
•Egyedi mérőórák minden lakásban
Közösségi terek
•Parkosított kert, sövények, fák
•Közösségi stég, grillező
•Elektromos kapu, rácsos fémkerítés
•Lakásonként 1 nyitott parkoló az árban
•További parkolók vásárolhatók: 2.000.000 Ft/db
Energetikai besorolás
•Tervezett legjobb kategória
•Hivatalos minősítés folyamatban
________________________________________
Kérdésekkel és megtekintéssel kapcsolatban várom jelentkezését.
Regisztrációs szám
P4792-1-0A-01-013
Az ingatlan adatai
Értékesités
eladó
Jogi státusz
új
Jelleg
lakás
Építési mód
tégla
Méret
51 m²
Bruttó méret
51 m²
Fűtés
hőszivattyú (levegő-víz)
Belmagasság
270 cm
Lakáson belüli szintszám
1
Tájolás
Kelet
Panoráma
Zöldre néző panoráma
Lépcsőház típusa
zárt lépcsőház
Állapot
Kiváló
Homlokzat állapota
Kiváló
Lépcsőház állapota
Kiváló
Környék
csendes, zöld
Építés éve
2026
Fürdőszobák száma
1
Fekvés
udvari
Víz
Van
Villany
Van
Csatorna
Van
Lift
van
Vízpart távolsága
vízparti
Helyiségek
nappali-konyha
29.68 m²
hálószoba
11.94 m²
fürdőszoba-wc
5.4 m²
előszoba
3.99 m²
Gerber Dorottya
Hitelszakértő