Eladó újépítésű lakás, P4784-1-0B-03-301
Budapest XIII. kerület, Angyalföld

111 641 000 Ft

295 000 €

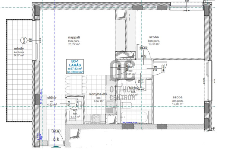
  • 67,2m²
  • 3 szoba
  • 3. emelet

Regisztrációs szám

P4784-1-0B-03-301

Az ingatlan adatai

Értékesités
eladó
Jogi státusz
új
Jelleg
lakás
Építési mód
tégla
Méret
67,2 m²
Bruttó méret
72 m²
Terasz / erkély mérete
9,5 m²
Fűtés
hőszivattyú
Belmagasság
260 cm
Tájolás
Nyugat
Lépcsőház típusa
zárt lépcsőház
Állapot
Kiváló
Homlokzat állapota
Kiváló
Lépcsőház állapota
Kiváló
Környék
csendes, jó közlekedés, zöld, központi
Építés éve
2027
Fürdőszobák száma
1
Fekvés
kertre néző
Víz
Van
Villany
Van
Csatorna
Van
Lift
van

Helyiségek

nappali-konyha
27.8 m²
szoba
12 m²
szoba
13.4 m²
fürdőszoba
5.5 m²
Németh István
Németh István

Hitelszakértő

Irodánk kínálatából - XIII. kerület - Dagály Residence

for sale new construction apartment

Index image
8

for sale panel apartment

Index image
data_sheet.details.realestate.section.main.otthonstart_flag.label
11

for sale apartment

Index image
data_sheet.details.realestate.section.main.otthonstart_flag.label
16

for sale commercial property

Index image
3

for sale new construction apartment

Index image
23