Eladó újépítésű lakás, P4784-1-0A-06-602
Budapest XIII. kerület, Angyalföld

114 037 000 Ft

301 000 €

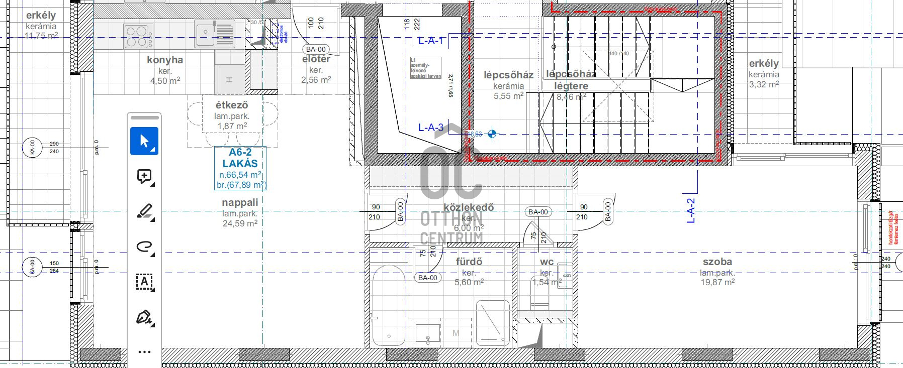
  • 66,5m²
  • 2 szoba
  • 6. emelet

Regisztrációs szám

P4784-1-0A-06-602

Az ingatlan adatai

Értékesités
eladó
Jogi státusz
új
Jelleg
lakás
Építési mód
tégla
Méret
66,5 m²
Bruttó méret
70,7 m²
Terasz / erkély mérete
8,5 m²
Fűtés
hőszivattyú
Belmagasság
260 cm
Tájolás
Nyugat
Lépcsőház típusa
zárt lépcsőház
Állapot
Kiváló
Homlokzat állapota
Kiváló
Lépcsőház állapota
Kiváló
Környék
csendes, jó közlekedés, zöld, központi
Építés éve
2027
Fürdőszobák száma
1
Fekvés
utcai
Víz
Van
Villany
Van
Csatorna
Van
Lift
van

Helyiségek

nappali
23 m²
konyha
7 m²
szoba
20 m²
fürdőszoba
5.8 m²
Németh István
Németh István

Hitelszakértő

Irodánk kínálatából - XIII. kerület - Dagály Residence

for sale new construction apartment

Index image
8

for sale panel apartment

Index image
data_sheet.details.realestate.section.main.otthonstart_flag.label
11

for sale apartment

Index image
data_sheet.details.realestate.section.main.otthonstart_flag.label
16

for sale commercial property

Index image
3

for sale new construction apartment

Index image
23