Eladó újépítésű lakás, P4784-1-0A-05-502
Budapest XIII. kerület, Angyalföld

90 618 000 Ft

240 000 €

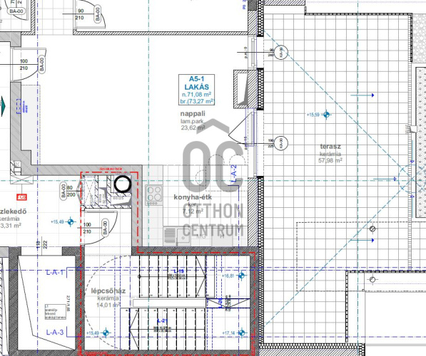
  • 35,6m²
  • 1 szoba
  • 5. emelet

Regisztrációs szám

P4784-1-0A-05-502

Az ingatlan adatai

Értékesités
eladó
Jogi státusz
új
Jelleg
lakás
Építési mód
tégla
Méret
35,6 m²
Bruttó méret
54,6 m²
Terasz / erkély mérete
57 m²
Fűtés
hőszivattyú
Belmagasság
260 cm
Tájolás
Kelet
Lépcsőház típusa
zárt lépcsőház
Állapot
Kiváló
Homlokzat állapota
Kiváló
Lépcsőház állapota
Kiváló
Környék
csendes, jó közlekedés, zöld, központi
Építés éve
2027
Fürdőszobák száma
1
Fekvés
kertre néző
Víz
Van
Villany
Van
Csatorna
Van
Lift
van

Helyiségek

nappali-konyha
29 m²
fürdőszoba
3.5 m²
Németh István
Németh István

Hitelszakértő

Irodánk kínálatából - XIII. kerület - Dagály Residence

for sale new construction apartment

Index image
8

for sale panel apartment

Index image
data_sheet.details.realestate.section.main.otthonstart_flag.label
11

for sale apartment

Index image
data_sheet.details.realestate.section.main.otthonstart_flag.label
16

for sale commercial property

Index image
3

for sale new construction apartment

Index image
23