Eladó újépítésű lakás, P4774-1-01-01-002
Budapest II. kerület,

325 782 000 Ft

831 000 €

  • 103,1m²
  • 4 szoba
  • 1. emelet
Kiemelt megbízás

Off market lehetőség a 2. kerületben!

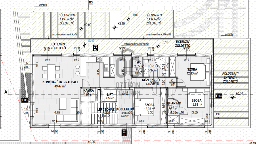
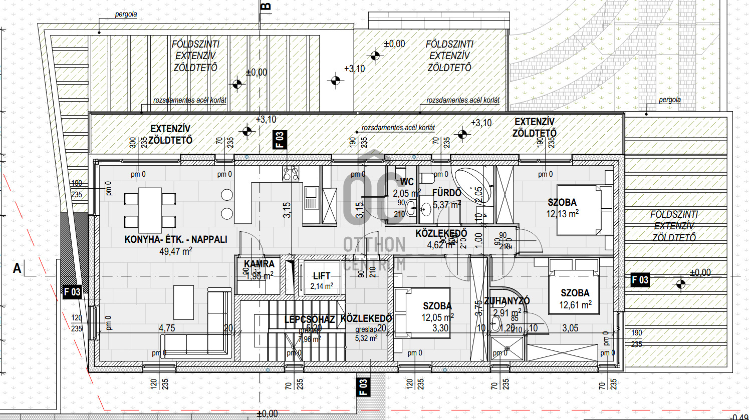
A projekt emeleti lakása.
I. emeleti kialakítása ellenére egy lépcsővel a saját kizárólagos használatú kertbe juthatunk.

Regisztrációs szám

P4774-1-01-01-002

Az ingatlan adatai

Értékesités
eladó
Jogi státusz
új
Jelleg
lakás
Építési mód
tégla
Méret
103,1 m²
Bruttó méret
103,1 m²
Fűtés
megújuló
Belmagasság
270 cm
Tájolás
Dél-nyugat
Lépcsőház típusa
zárt lépcsőház
Állapot
Kiváló
Homlokzat állapota
Kiváló
Lépcsőház állapota
Kiváló
Környék
jó közlekedés, zöld, központi
Építés éve
2027
Fürdőszobák száma
2
Fekvés
kertre néző
Garázs
Kötelezően vásárolandó
Víz
Van
Villany
Van
Csatorna
Van
Lift
van
Tároló
Kötelezően vásárolandó

Helyiségek

nappali-konyha
49.47 m²
kamra
1.95 m²
wc-kézmosó
2.05 m²
fürdőszoba-wc
5.37 m²
közlekedő
4.62 m²
szoba
12.05 m²
szoba
12.61 m²
szoba
12.13 m²
fürdőszoba-wc
2.91 m²
Tóth Róbert
Tóth Róbert

Hitelszakértő

Irodánk kínálatából - III. kerület - WFC

eladó lakás

Index image
15

eladó lakás

Index image
23

eladó újépítésű ikerház

Index image
17

eladó újépítésű lakás

Index image
28

eladó lakás

Index image
18

kiadó lakás

Index image
36

eladó újépítésű lakás

Index image
18

eladó újépítésű lakás

Index image
18

eladó lakás

Index image
16