Eladó újépítésű lakás, P4756-A-01-FZ-001
Budapest III. kerület, Táborhegy, Ér utca

339 000 000 Ft

888 000 €

  • 124m²
  • 5 szoba
  • földszint
Kiemelt megbízás

Regisztrációs szám

P4756-A-01-FZ-001

Az ingatlan adatai

Értékesités
eladó
Jogi státusz
új
Jelleg
lakás
Építési mód
tégla
Méret
124 m²
Bruttó méret
124 m²
Terasz / erkély mérete
39 m²
Kert méret
220 m²
Fűtés
hőszivattyú
Belmagasság
270 cm
Lakáson belüli szintszám
1
Tájolás
Kelet
Panoráma
városi panoráma
Lépcsőház típusa
zárt lépcsőház
Állapot
Kiváló
Homlokzat állapota
Kiváló
Lépcsőház állapota
Kiváló
Környék
csendes, zöld
Építés éve
2025
Fürdőszobák száma
2
Fekvés
utcai
Társaház kert
igen
Garázs
Kötelezően vásárolandó
Víz
Van
Gáz
Utcán
Villany
Van
Csatorna
Van
Kertkapcsolatos
igen
Tároló
Kötelezően vásárolandó

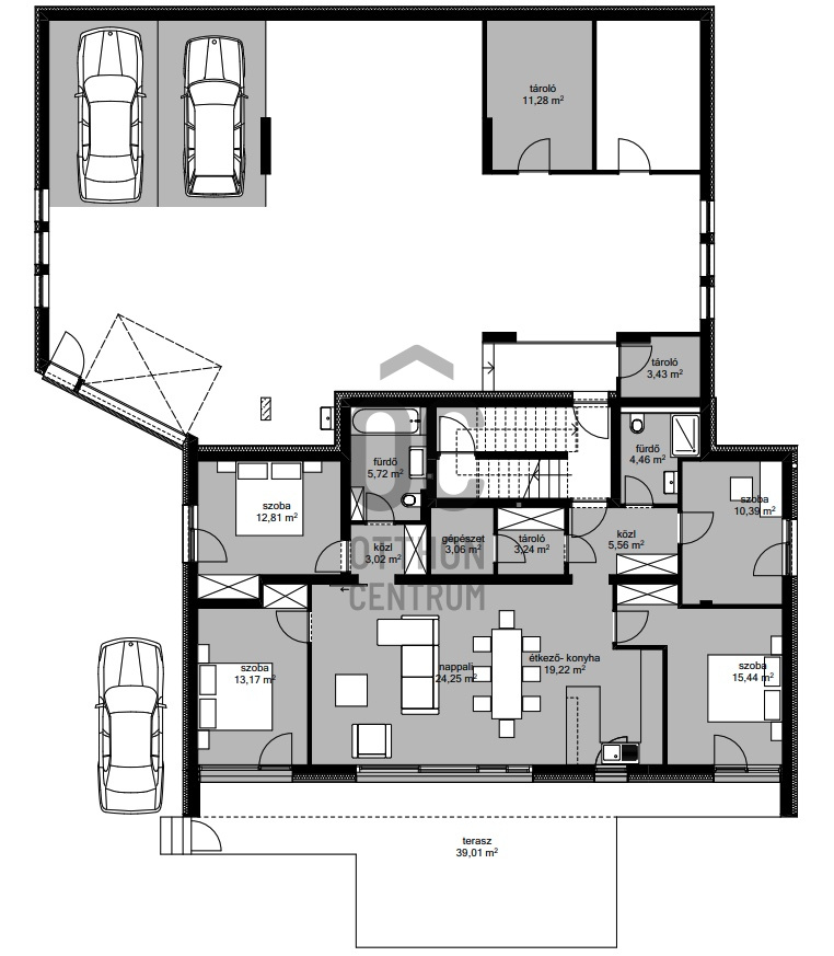
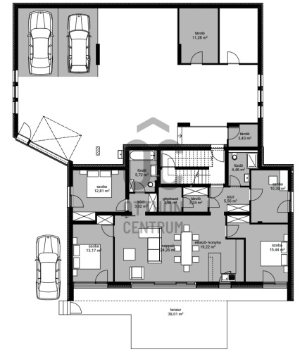
Helyiségek

közlekedő
5.56 m²
fürdőszoba-wc
4.46 m²
hálószoba
10.39 m²
tároló
3.24 m²
háztartási helyiség
3.06 m²
nappali
24.25 m²
konyha-étkező
19.22 m²
hálószoba
15.44 m²
hálószoba
13.17 m²
közlekedő
3.02 m²
fürdőszoba-wc
5.72 m²
hálószoba
12.81 m²
terasz
39.01 m²
Ruczek János
Ruczek János

Hitelszakértő

Irodánk kínálatából - II. kerület - TDG

eladó újépítésű lakás

Index image
11

eladó újépítésű lakás

Index image
24

eladó lakás

Index image
18

eladó ikerház

Index image
35

eladó lakás

Index image
20

eladó lakás

Index image
Elérhető Otthon Start hitellel
13

eladó lakás

Index image
12

eladó lakás

Index image
17

eladó lakás

Index image
Elérhető Otthon Start hitellel
13

eladó lakás

Index image
12

for sale apartment

Index image
28

eladó lakás

Index image
13