Eladó újépítésű lakás, P4756-A-01-01-002
Budapest III. kerület, Táborhegy, Ér utca

419 000 000 Ft

1 113 000 €

  • 158m²
  • 5 szoba
  • 1. emelet
Kiemelt megbízás

Regisztrációs szám

P4756-A-01-01-002

Az ingatlan adatai

Értékesités
eladó
Jogi státusz
új
Jelleg
lakás
Építési mód
tégla
Méret
158 m²
Bruttó méret
158 m²
Terasz / erkély mérete
60 m²
Kert méret
175 m²
Fűtés
hőszivattyú
Belmagasság
270 cm
Lakáson belüli szintszám
2
Tájolás
Kelet
Panoráma
városi panoráma
Lépcsőház típusa
zárt lépcsőház
Állapot
Kiváló
Homlokzat állapota
Kiváló
Lépcsőház állapota
Kiváló
Környék
csendes, zöld
Építés éve
2025
Fürdőszobák száma
3
Fekvés
utcai
Társaház kert
igen
Garázs
Kötelezően vásárolandó
Víz
Van
Gáz
Utcán
Villany
Van
Csatorna
Van
Kertkapcsolatos
igen
Tároló
Kötelezően vásárolandó

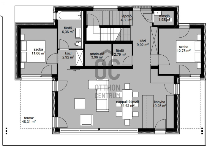
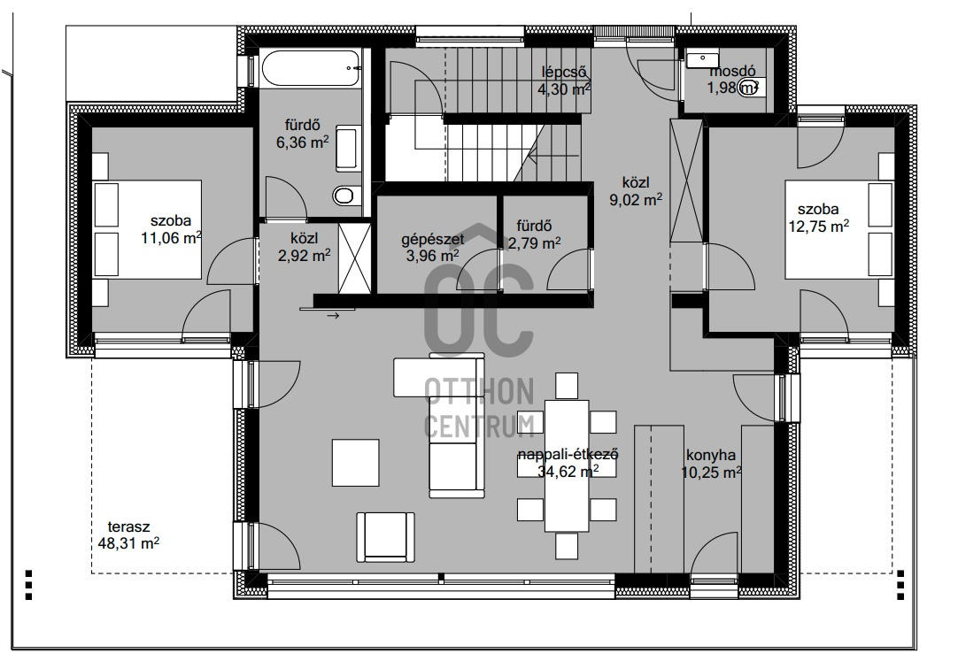
Helyiségek

lépcsőház
4.3 m²
közlekedő
9.02 m²
wc-kézmosó
1.98 m²
hálószoba
12.75 m²
fürdőszoba-wc
2.79 m²
háztartási helyiség
3.96 m²
nappali-étkező
34.62 m²
konyha
10.25 m²
közlekedő
2.92 m²
hálószoba
11.06 m²
fürdőszoba-wc
6.36 m²
terasz
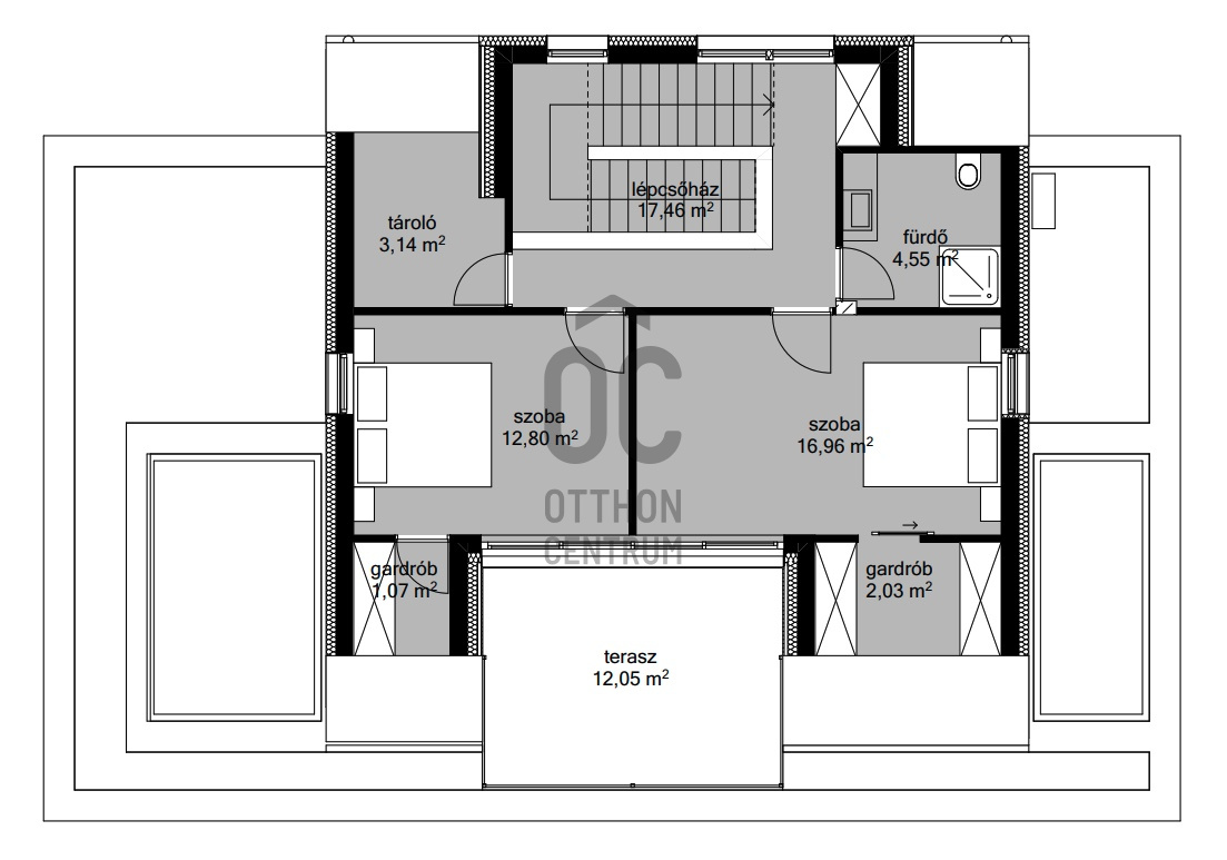
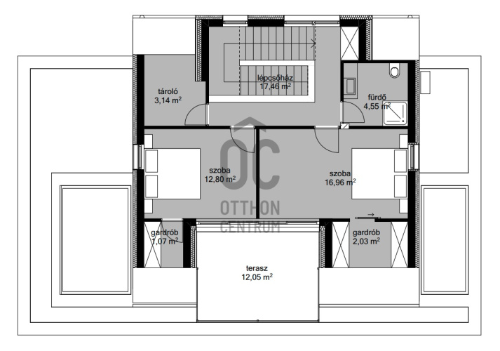
48.31 m²
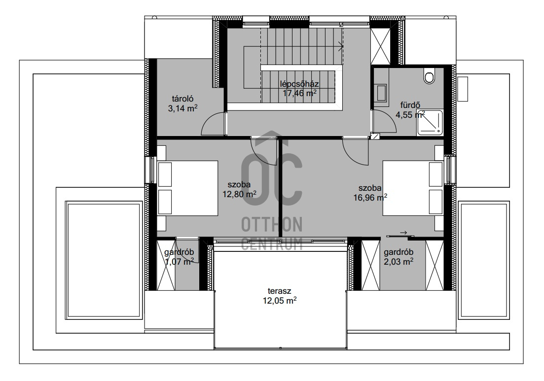
lépcsőház
17.46 m²
fürdőszoba-wc
4.55 m²
hálószoba
16.96 m²
gardrób
2.03 m²
hálószoba
12.8 m²
gardrób
1.07 m²
tároló
3.14 m²
Tóth Róbert
Tóth Róbert

Hitelszakértő

Irodánk kínálatából - II. kerület - TDG

for sale new construction apartment

Index image
34

for sale new construction apartment

Index image
37

for sale new construction apartment

Index image
37

for sale apartment

Index image
10

for sale apartment

Index image
data_sheet.details.realestate.section.main.otthonstart_flag.label
15

for sale new construction apartment

Index image
28

for sale apartment

Index image
16

for sale apartment

Index image
data_sheet.details.realestate.section.main.otthonstart_flag.label
21

for sale apartment

Index image
12

for rent apartment

Index image
34