Elérhető Otthon Start hitellel
Eladó újépítésű lakás,
P4748-1-01-FZ-004
Kőszegszerdahely,
35 900 000 Ft
94 000 €
- 34m²
- 1 szoba
- földszint
Kőszeg-hegyalján új építésű lakások eladók
Kínálatunkban egy új, kiváló állapotú 34 négyzetméteres garzon lakás található Kőszegszerdahelyen. A modern, prémium kivitelezésű ingatlan tágas nappalival, konyha-étkezővel és egy elegáns fürdőszobával rendelkezik, amely minden igényt kielégít. A lakás fűtése elektromos (infra) rendszerrel, míg a hűtésről klímaberendezés gondoskodik, így az év bármely időszakában kellemes hőmérsékletet biztosít. Az Inverteres hűtő/fűtő klíma , hővisszanyerős légcserélő gondoskodik a folyamatos jó minőségű levegőről.
Minimális rezsiköltség, hatékony és gyors, egyedi fűtésrendszer, nincsenek közös rezsiszámolások… A lakás különlegessége a 8,65 négyzetméteres terasz, amely közvetlen 40 nm kertkapcsolattal rendelkezik. Ez a zöld oázis ideális helyszínt biztosít a pihenéshez, baráti összejövetelekhez vagy akár egy nyugodt reggeli kávézáshoz. A LED hangulatvilágítás pedig még inkább fokozza a lakás hangulatát, lehetővé téve, hogy otthona mindig a legjobb fényben tündököljön. A környék csendes és biztonságos, ideális választás mindazok számára, akik szeretnék elkerülni a város zaját, miközben könnyen elérhetik a szükséges szolgáltatásokat. A közlekedési lehetőségek is kedvezőek: a közeli nagyvárosok és Ausztria autóval könnyen megközelíthető főbb utak révén. A közeli településeken található boltok, éttermek és szabadidős lehetőségek mind hozzájárulnak ahhoz, hogy az itt lakók mindennapjai kényelmesebbek és élvezetesebbek legyenek. Ez a tehermentes ingatlan nem csupán lakóhely, hanem egy életstílus megtestesítője. A hegyvidéki környezet és a modern megoldások tökéletes harmóniát alkotnak, így Ön is részese lehet ennek az élménynek. Ha bármilyen kérdése merülne fel, vagy szeretne többet megtudni erről a páratlan lehetőségről, bizalommal forduljon hozzánk. Az Ön elégedettsége a legfontosabb számunkra, és örömmel segítünk Önnek a legjobb döntés meghozatalában.
Minimális rezsiköltség, hatékony és gyors, egyedi fűtésrendszer, nincsenek közös rezsiszámolások… A lakás különlegessége a 8,65 négyzetméteres terasz, amely közvetlen 40 nm kertkapcsolattal rendelkezik. Ez a zöld oázis ideális helyszínt biztosít a pihenéshez, baráti összejövetelekhez vagy akár egy nyugodt reggeli kávézáshoz. A LED hangulatvilágítás pedig még inkább fokozza a lakás hangulatát, lehetővé téve, hogy otthona mindig a legjobb fényben tündököljön. A környék csendes és biztonságos, ideális választás mindazok számára, akik szeretnék elkerülni a város zaját, miközben könnyen elérhetik a szükséges szolgáltatásokat. A közlekedési lehetőségek is kedvezőek: a közeli nagyvárosok és Ausztria autóval könnyen megközelíthető főbb utak révén. A közeli településeken található boltok, éttermek és szabadidős lehetőségek mind hozzájárulnak ahhoz, hogy az itt lakók mindennapjai kényelmesebbek és élvezetesebbek legyenek. Ez a tehermentes ingatlan nem csupán lakóhely, hanem egy életstílus megtestesítője. A hegyvidéki környezet és a modern megoldások tökéletes harmóniát alkotnak, így Ön is részese lehet ennek az élménynek. Ha bármilyen kérdése merülne fel, vagy szeretne többet megtudni erről a páratlan lehetőségről, bizalommal forduljon hozzánk. Az Ön elégedettsége a legfontosabb számunkra, és örömmel segítünk Önnek a legjobb döntés meghozatalában.
Regisztrációs szám
P4748-1-01-FZ-004
Az ingatlan adatai
Értékesités
eladó
Jogi státusz
új
Jelleg
lakás
Építési mód
tégla
Méret
34 m²
Bruttó méret
35 m²
Terasz / erkély mérete
8,9 m²
Kert méret
41 m²
Fűtés
elektromos, infra
Belmagasság
265 cm
Tájolás
Kelet
Lépcsőház típusa
zárt lépcsőház
Állapot
Kiváló
Homlokzat állapota
Kiváló
Lépcsőház állapota
Kiváló
Környék
csendes, jó közlekedés, zöld
Építés éve
2026
Fürdőszobák száma
1
Fekvés
udvari
Társaház kert
igen
Víz
Van
Gáz
Utcán
Villany
Van
Csatorna
Van
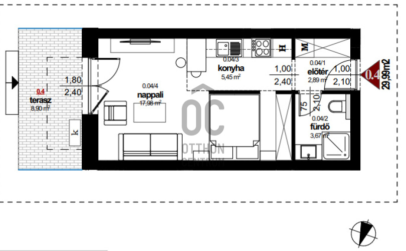
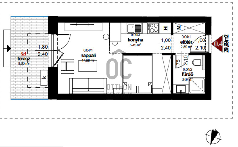
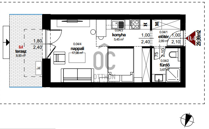
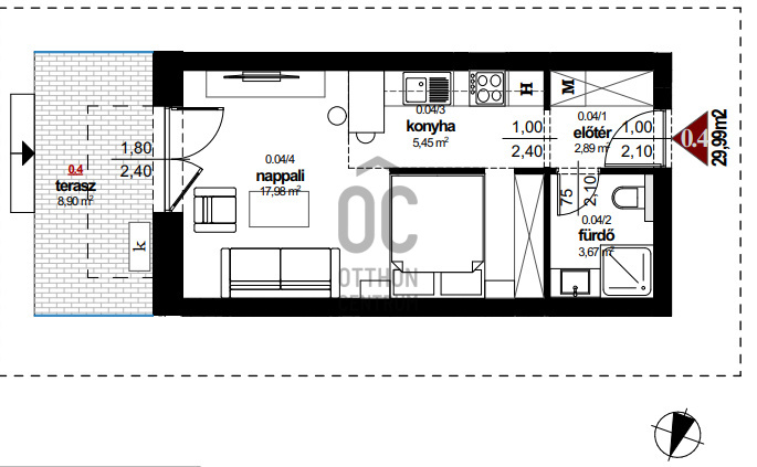
Helyiségek
nappali
17.98 m²
konyha-étkező
5.45 m²
fürdőszoba-wc
3.67 m²
előszoba
2.89 m²
terasz
8.9 m²
Horváth Szabina
Hitelszakértő