Eladó újépítésű lakás, P4726-V1-01-05-503
Budapest XIII. kerület, Angyalföld

105 900 000 Ft

272 000 €

  • 52m²
  • 3 szoba
  • 5. emelet

Regisztrációs szám

P4726-V1-01-05-503

Az ingatlan adatai

Értékesités
eladó
Jogi státusz
új
Jelleg
lakás
Építési mód
tégla
Méret
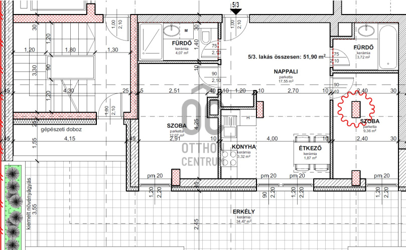
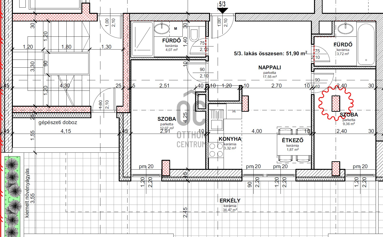
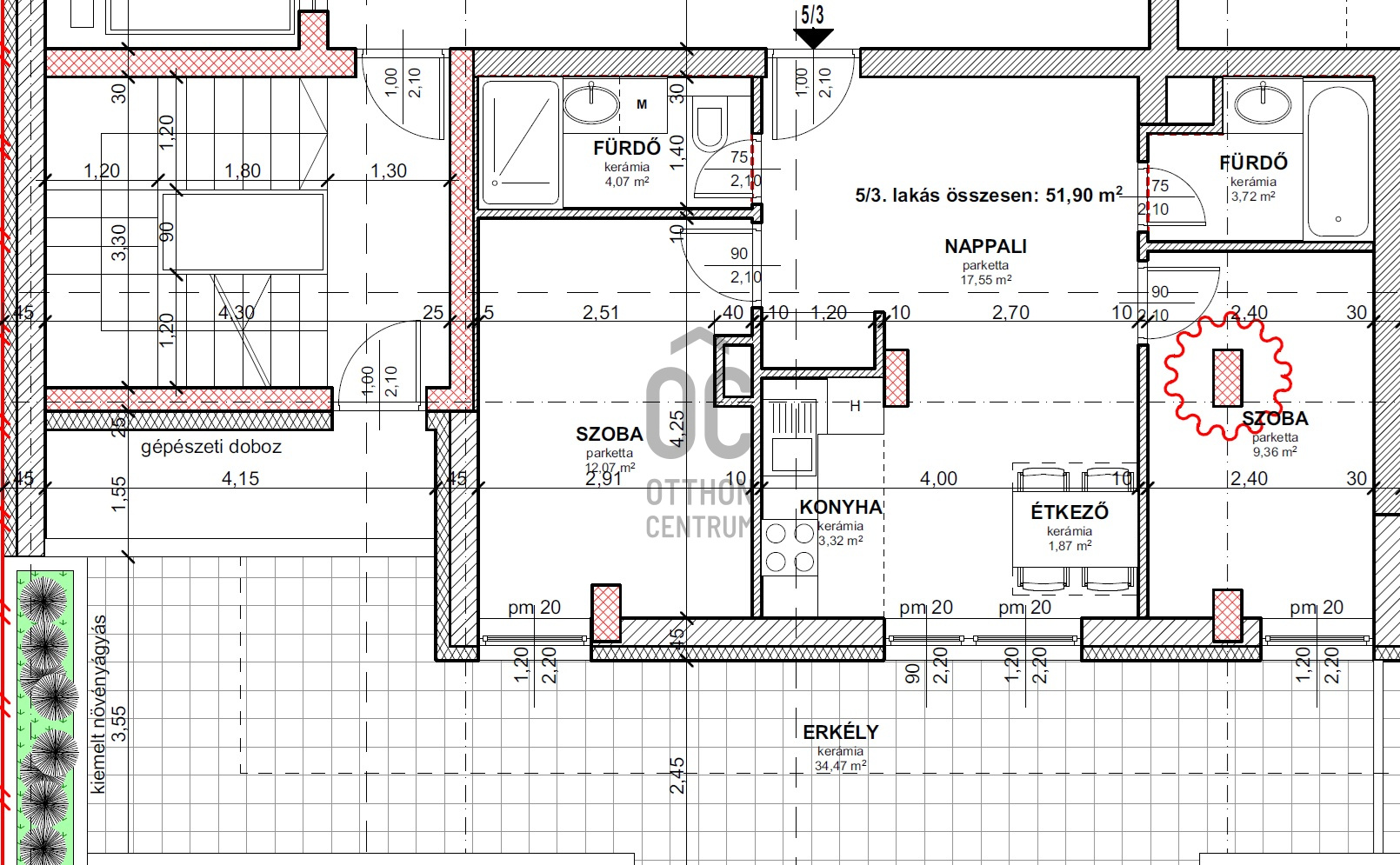
52 m²
Bruttó méret
69,3 m²
Terasz / erkély mérete
34,6 m²
Fűtés
hőszivattyú
Belmagasság
270 cm
Lakáson belüli szintszám
1
Tájolás
Észak-kelet
Lépcsőház típusa
zárt lépcsőház
Állapot
Kiváló
Homlokzat állapota
Kiváló
Lépcsőház állapota
Kiváló
Környék
csendes, jó közlekedés, zöld
Építés éve
2026
Fürdőszobák száma
2
Fekvés
utcai
Társaház kert
igen
Garázs
Külön vásárolható
Víz
Van
Gáz
Van
Villany
Van
Csatorna
Van
Lift
van
Tároló
Külön vásárolható

Helyiségek

nappali-konyha
20.87 m²
ebédlő
1.87 m²
szoba
12.07 m²
szoba
9.36 m²
terasz
34.63 m²
Berkes-Jakus Kinga
Berkes-Jakus Kinga

Hitelszakértő

Irodánk kínálatából - XIII. kerület - Béke Residence

for sale apartment

Index image
5

eladó lakás

Index image
22

for sale new construction apartment

Index image
7

eladó lakás

Index image
19