Eladó újépítésű lakás, P4726-V1-01-02-201
Budapest XIII. kerület, Angyalföld

101 949 000 Ft

261 000 €

  • 59m²
  • 3 szoba
  • 2. emelet

Regisztrációs szám

P4726-V1-01-02-201

Az ingatlan adatai

Értékesités
eladó
Jogi státusz
új
Jelleg
lakás
Építési mód
tégla
Méret
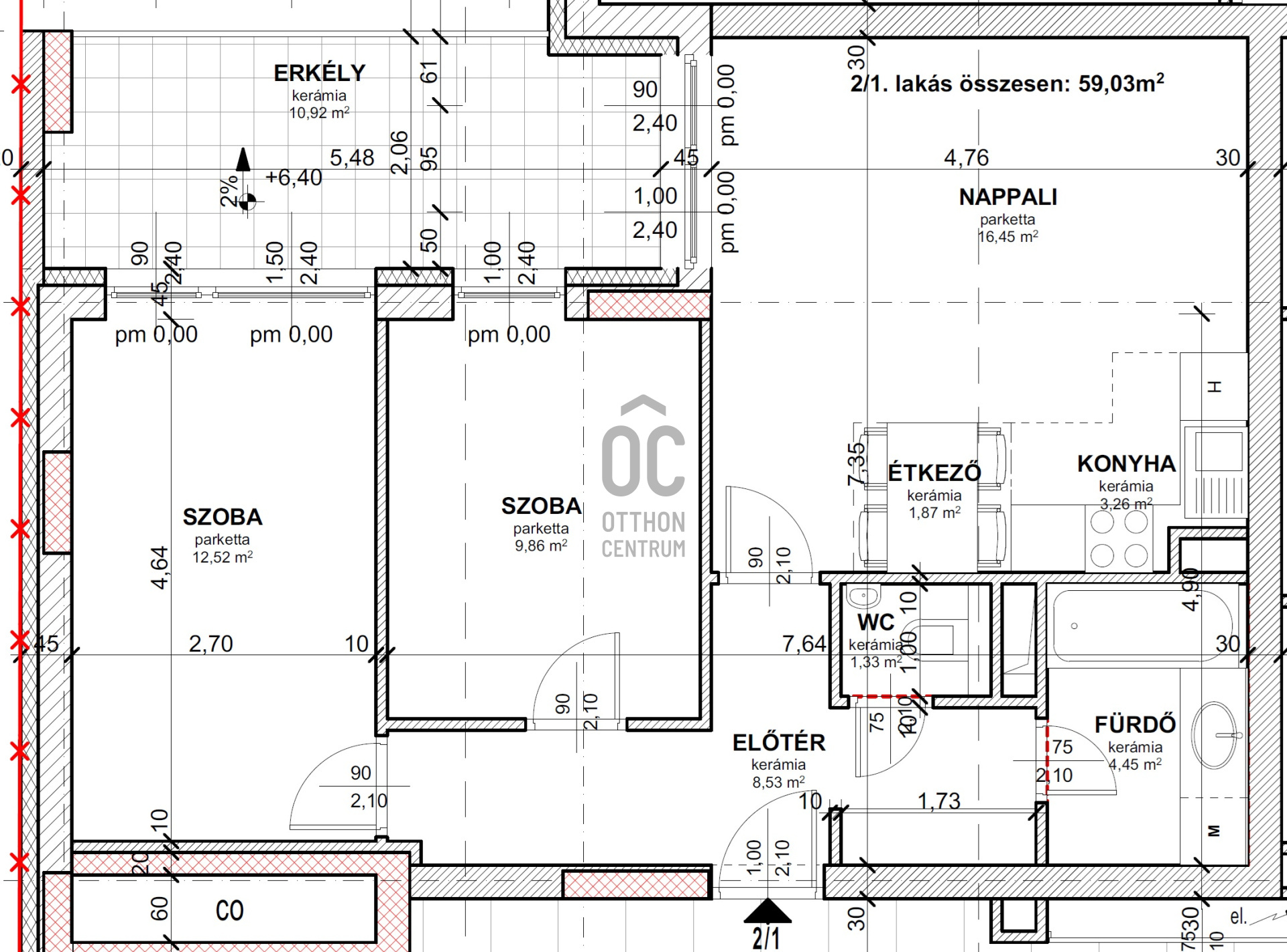
59 m²
Bruttó méret
64,4 m²
Terasz / erkély mérete
10,9 m²
Fűtés
hőszivattyú
Belmagasság
270 cm
Lakáson belüli szintszám
1
Tájolás
Dél-kelet
Lépcsőház típusa
zárt lépcsőház
Állapot
Kiváló
Homlokzat állapota
Kiváló
Lépcsőház állapota
Kiváló
Környék
csendes, jó közlekedés, zöld
Építés éve
2026
Fürdőszobák száma
1
Fekvés
kertre néző
Társaház kert
igen
Garázs
Külön vásárolható
Víz
Van
Gáz
Van
Villany
Van
Csatorna
Van
Lift
van
Tároló
Külön vásárolható

Helyiségek

nappali-konyha
21.58 m²
szoba
12.52 m²
szoba
9.86 m²
fürdőszoba
4.45 m²
Berkes-Jakus Kinga
Berkes-Jakus Kinga

Hitelszakértő

Irodánk kínálatából - XIII. kerület - Béke Residence

for sale apartment

Index image
5

eladó lakás

Index image
22

for sale new construction apartment

Index image
7

eladó lakás

Index image
19