Eladó újépítésű lakás, P4726-V1-01-01-103
Budapest XIII. kerület, Angyalföld

82 700 000 Ft

215 000 €

  • 46,7m²
  • 2 szoba
  • 1. emelet

Regisztrációs szám

P4726-V1-01-01-103

Az ingatlan adatai

Értékesités
eladó
Jogi státusz
új
Jelleg
lakás
Építési mód
tégla
Méret
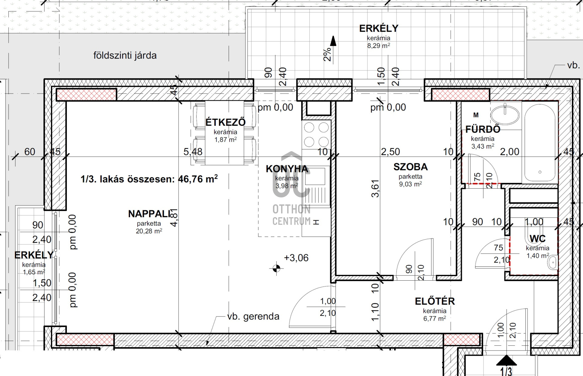
46,7 m²
Bruttó méret
51,7 m²
Terasz / erkély mérete
9,9 m²
Fűtés
hőszivattyú
Belmagasság
270 cm
Lakáson belüli szintszám
1
Tájolás
Dél-nyugat
Lépcsőház típusa
zárt lépcsőház
Állapot
Kiváló
Homlokzat állapota
Kiváló
Lépcsőház állapota
Kiváló
Környék
csendes, jó közlekedés, zöld
Építés éve
2026
Fekvés
kertre néző
Társaház kert
igen
Garázs
Külön vásárolható
Víz
Van
Gáz
Van
Villany
Van
Csatorna
Van
Lift
van
Tároló
Külön vásárolható

Helyiségek

nappali-konyha
26.13 m²
szoba
9.03 m²
fürdőszoba
2.43 m²
Berkes-Jakus Kinga
Berkes-Jakus Kinga

Hitelszakértő

Irodánk kínálatából - XIII. kerület - Béke Residence

eladó újépítésű lakás

Index image
7

for sale apartment

Index image
10

eladó újépítésű lakás

Index image
5

eladó újépítésű lakás

Index image
5

eladó újépítésű lakás

Index image
10

eladó lakás

Index image
7

eladó lakás

Index image
7