70 990 000 Ft
183 000 €
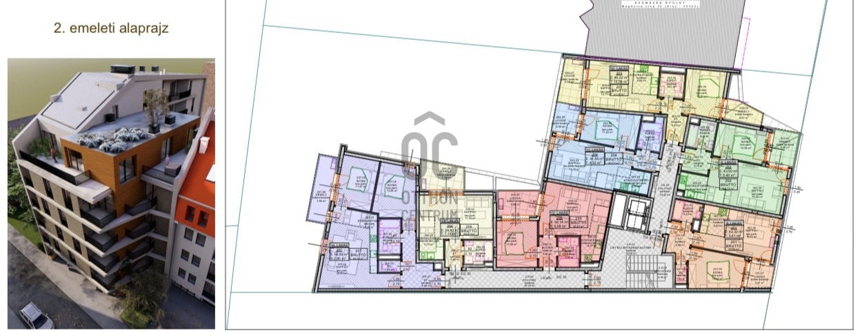
- 41,2m²
- 2 szoba
- 2. emelet


❗️SMART HOME - Near Corvin Quarter Newly built apartments at introductory prices! Home / Investment ⏺️ Location: - A dynamically developing area of the 8th district - Central urban transportation - METRO and major transport hubs within reach - Close to UNIVERSITIES and COLLEGES - Excellent infrastructure ❗️ Technical specifications: - High-quality construction in line with modern standards - NGBS SMART HOME system - Heat pump heating system - Wall cooling - Green garden with irrigation system ⬆️ Apartments: - Super practical design - Choice of floor coverings - Terrace or balcony for every apartment - Garage available upon request ✅ Mortgage processing - with favorable interest rates, tailored to your needs! Legal assistance available upon request! Feel free to contact us!
Regisztrációs szám
P4696-1-00-02-206
Az ingatlan adatai
Értékesités
eladó
Jogi státusz
új
Jelleg
lakás
Építési mód
tégla
Méret
41,2 m²
Bruttó méret
42,4 m²
Terasz / erkély mérete
7,1 m²
Fűtés
values.realestate.futes.26
Belmagasság
260 cm
Tájolás
Kelet
Lépcsőház típusa
zárt lépcsőház
Állapot
Kiváló
Homlokzat állapota
Kiváló
Lépcsőház állapota
Kiváló
Építés éve
2026
Fürdőszobák száma
1
Fekvés
utcai
Garázs
Külön vásárolható
Víz
Van
Villany
Van
Csatorna
Van
Lift
van
Helyiségek
előszoba
2.94 m²
nappali
17.74 m²
hálószoba
11.44 m²
konyha-étkező
5.14 m²
fürdőszoba
3.98 m²

Pongó Miklós
Hitelszakértő