71 990 000 Ft
186 000 €
- 47,3m²
- 2 szoba
- 2. emelet


❗️SMART HOME - Near Corvin Quarter Newly built apartments at introductory prices! Home / Investment ⏺️ Location: - A dynamically developing area in the 8th district - Central city transportation - METRO and main transport hubs within arm's reach - Close to UNIVERSITIES and COLLEGES - Excellent infrastructure ❗️ Technical specifications: - High-quality construction in line with modern standards - NGBS SMART HOME system - Heat pump heating system - Wall cooling - Green garden with irrigation system ⬆️ Apartments: - Super practical design - Choice of tiles - Terrace or balcony with every apartment - Garage available upon request ✅ Loan processing - with favorable interest rates, customized for you! Legal assistance available if needed! Feel free to contact us!
Regisztrációs szám
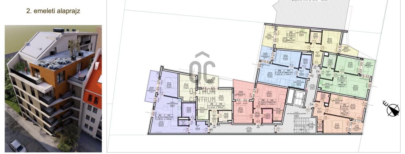
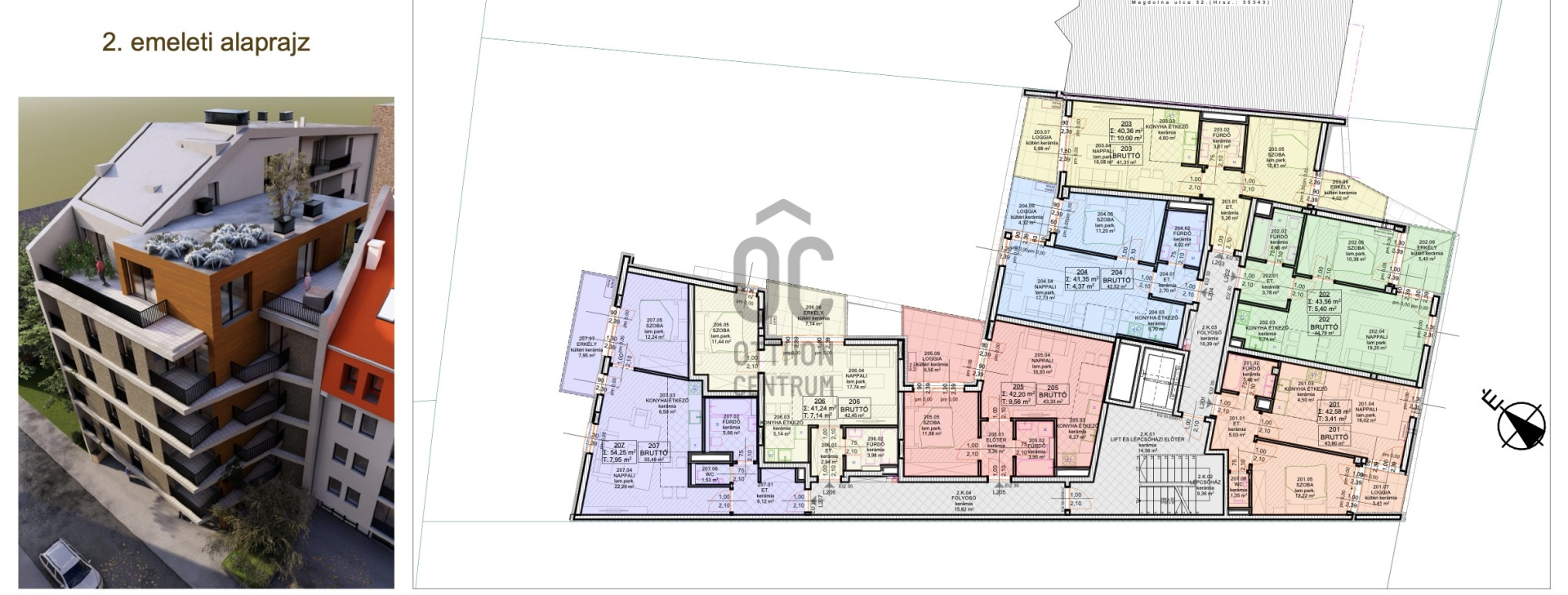
P4696-1-00-02-203
Az ingatlan adatai
Értékesités
eladó
Jogi státusz
új
Jelleg
lakás
Építési mód
tégla
Méret
47,3 m²
Bruttó méret
41,3 m²
Terasz / erkély mérete
14,9 m²
Fűtés
values.realestate.futes.26
Belmagasság
260 cm
Lakáson belüli szintszám
6
Tájolás
Dél-nyugat
Lépcsőház típusa
zárt lépcsőház
Állapot
Kiváló
Homlokzat állapota
Kiváló
Lépcsőház állapota
Kiváló
Építés éve
2026
Fürdőszobák száma
1
Fekvés
kertre néző
Garázs
Külön vásárolható
Víz
Van
Villany
Van
Csatorna
Van
Lift
van
Helyiségek
előszoba
5.26 m²
nappali
35.08 m²
hálószoba
10.81 m²
konyha-étkező
4.6 m²
fürdőszoba
3.61 m²

Pongó Miklós
Hitelszakértő