Eladó újépítésű lakás, P4696-1-00-02-202
Budapest VIII. kerület, Corvin negyed

72 990 000 Ft

192 000 €

  • 43,5m²
  • 2 szoba
  • 2. emelet

❗️SMART HOME - Near Corvin District Newly built apartments at introductory prices! Home / Investment ⏺️ Location: - A dynamically developing area of the 8th district - Central city transportation - METRO and major transportation hubs within reach - Close to UNIVERSITIES and COLLEGES - Excellent infrastructure ❗️ Technical specifications: - High-quality construction suitable for the era - NGBS SMART HOME system - Heat pump heating system - Wall cooling - Green garden with irrigation system ⬆️ Apartments: - Super practical design - Selectable floor coverings - Terrace or balcony with every apartment - Garage available upon request ✅ Loan management - with favorable interest rates, tailored to individual needs! Legal assistance available upon request! Feel free to contact us!

Regisztrációs szám

P4696-1-00-02-202

Az ingatlan adatai

Értékesités
eladó
Jogi státusz
új
Jelleg
lakás
Építési mód
tégla
Méret
43,5 m²
Bruttó méret
46,2 m²
Terasz / erkély mérete
5,4 m²
Fűtés
values.realestate.futes.26
Belmagasság
260 cm
Tájolás
Dél-kelet
Lépcsőház típusa
zárt lépcsőház
Állapot
Kiváló
Homlokzat állapota
Kiváló
Lépcsőház állapota
Kiváló
Építés éve
2026
Fürdőszobák száma
1
Fekvés
utcai
Garázs
Külön vásárolható
Víz
Van
Villany
Van
Csatorna
Van
Lift
van

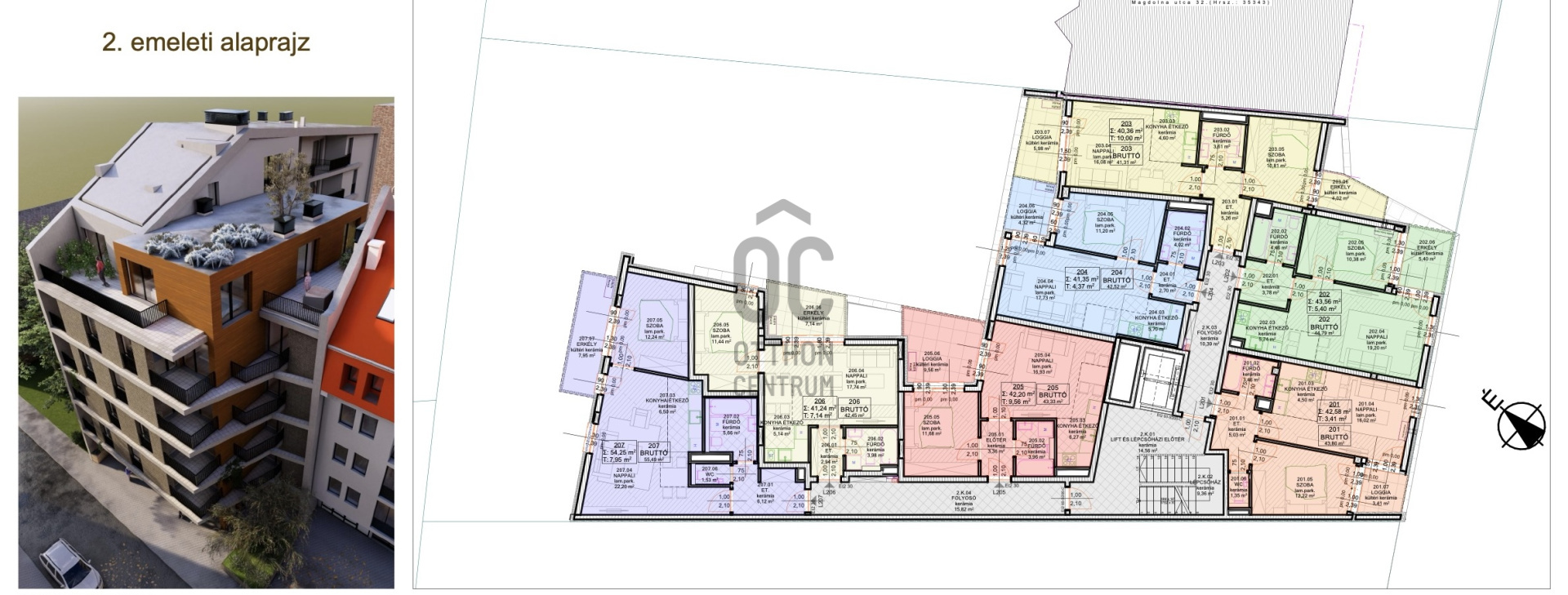
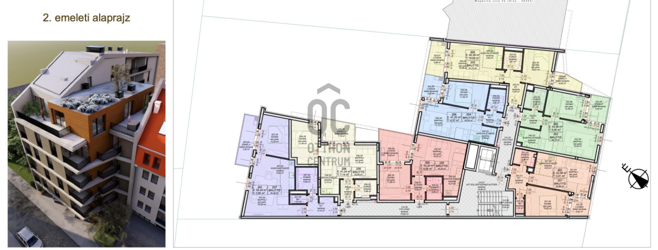
Helyiségek

előszoba
3.78 m²
nappali
19.2 m²
hálószoba
10.38 m²
konyha-étkező
5.74 m²
fürdőszoba
4.46 m²
Pongó Miklós
Pongó Miklós

Hitelszakértő

Irodánk kínálatából - VIII. kerület - József körút

for sale apartment

Index image
data_sheet.details.realestate.section.main.otthonstart_flag.label
14

for sale apartment

Index image
data_sheet.details.realestate.section.main.otthonstart_flag.label
22

for sale panel apartment

Index image
17

for sale apartment

Index image
37

for sale apartment

Index image
25