Elérhető Otthon Start hitellel
Eladó újépítésű ikerház,
P4643-1-03-NA-000
Kiskunlacháza,
85 000 000 Ft
217 000 €
- 99,2m²
- 4 szoba







Regisztrációs szám
P4643-1-03-NA-000
Az ingatlan adatai
Értékesités
eladó
Jogi státusz
új
Jelleg
ház
Építési mód
tégla
Méret
99,2 m²
Bruttó méret
121,9 m²
Telek méret
841 m²
Terasz / erkély mérete
222,6 m²
Fűtés
hőszivattyú
Belmagasság
270 cm
Tájolás
Észak-kelet
Állapot
Kiváló
Homlokzat állapota
Kiváló
Környék
csendes, jó közlekedés
Építés éve
2025
Fürdőszobák száma
2
Víz
Van
Villany
Van
Csatorna
Van
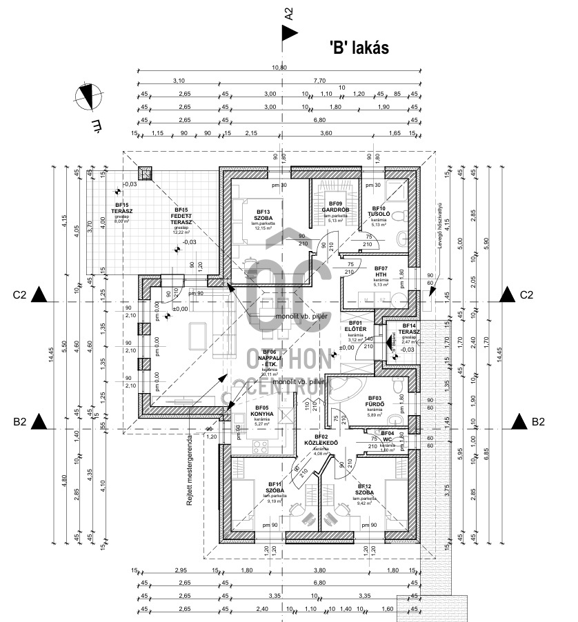
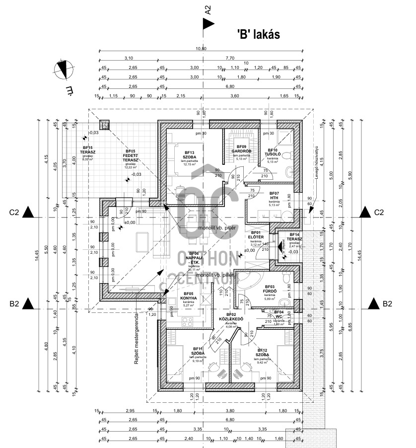
Helyiségek
előszoba
3.12 m²
fürdőszoba
5.89 m²
wc-kézmosó
1.6 m²
közlekedő
4.08 m²
háztartási helyiség
5.13 m²
gardrób
5.13 m²
konyha
5.27 m²
nappali-étkező
33.11 m²
szoba
9.19 m²
szoba
9.42 m²
szoba
12.15 m²
terasz
12.22 m²
terasz
8 m²

Joó Krisztina
Hitelszakértő