Elérhető Otthon Start hitellel
Eladó újépítésű ikerház,
P4643-1-01-NA-000
Kiskunlacháza,
82 000 000 Ft
210 000 €
- 99,8m²
- 4 szoba












Regisztrációs szám
P4643-1-01-NA-000
Az ingatlan adatai
Értékesités
eladó
Jogi státusz
új
Jelleg
ház
Építési mód
tégla
Méret
99,8 m²
Bruttó méret
125,6 m²
Telek méret
624 m²
Terasz / erkély mérete
25,7 m²
Fűtés
hőszivattyú
Belmagasság
270 cm
Tájolás
Dél-kelet
Állapot
Kiváló
Homlokzat állapota
Kiváló
Környék
csendes, jó közlekedés
Építés éve
2025
Fürdőszobák száma
2
Társaház kert
igen
Víz
Van
Villany
Van
Csatorna
Van
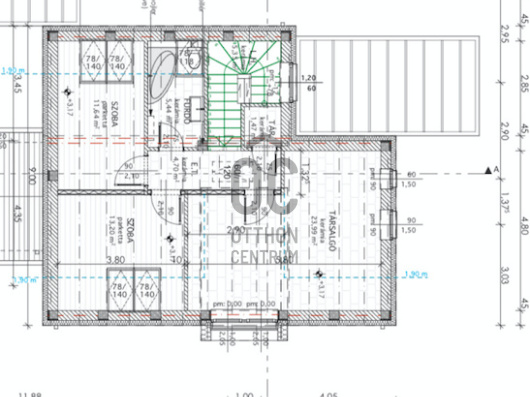
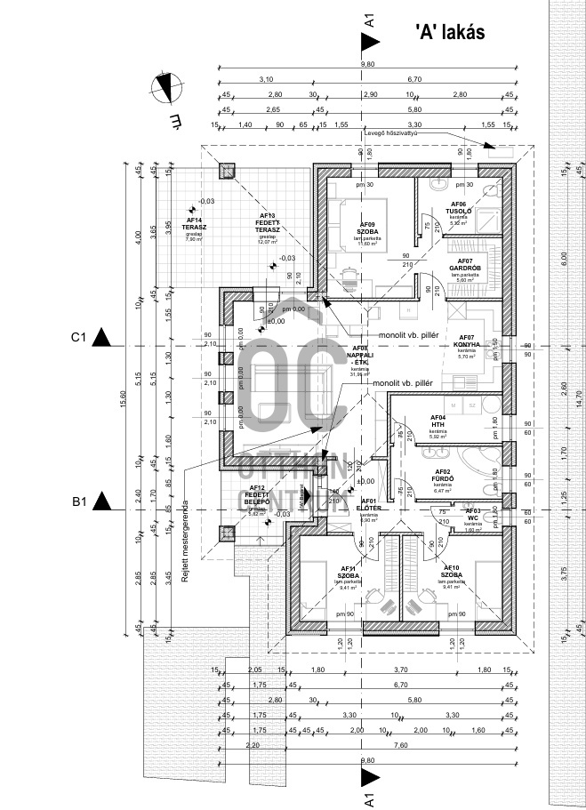
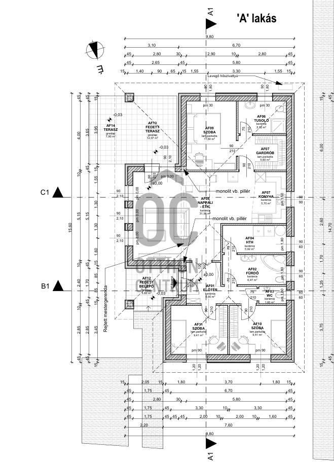
Helyiségek
előszoba
6.9 m²
fürdőszoba-wc
6.47 m²
wc-kézmosó
1.6 m²
háztartási helyiség
5.92 m²
fürdőszoba
5.32 m²
gardrób
5.6 m²
konyha
5.7 m²
nappali-étkező
31.96 m²
szoba
11.6 m²
szoba
9.41 m²
szoba
9.41 m²
terasz
12.07 m²
terasz
7.9 m²
egyéb
5.82 m²

Joó Krisztina
Hitelszakértő