136 616 340 Ft
351 000 €
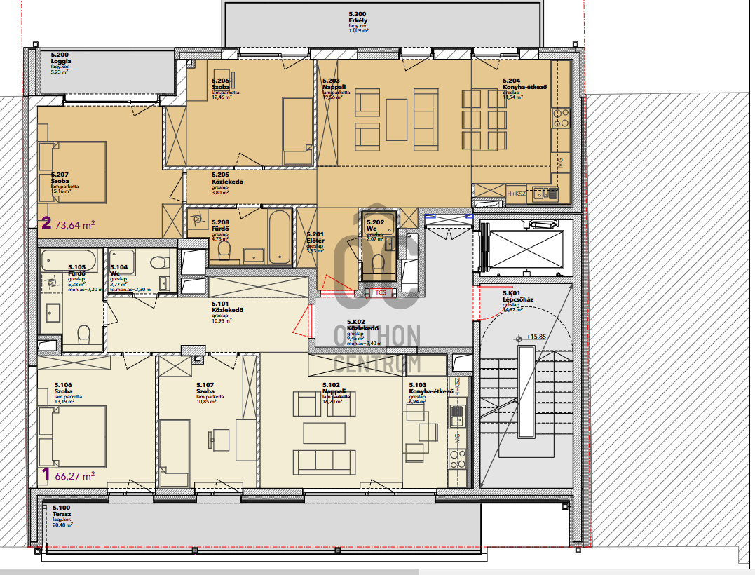
- 66,2m²
- 3 szoba
- 5. emelet













Energiatakarékos, új építésű otthonok!
Az ingatlan az ötödik emeleten található. Utcai nézetű. Az összes terület a nettó 66.27 m2-es lakótérből és a 20.48 m2-es terasz felének beszámításából tevődik össze.
Dupla komfortos.
Dupla komfortos.
Regisztrációs szám
P4626-1-0A-05-001
Az ingatlan adatai
Értékesités
eladó
Jogi státusz
új
Jelleg
lakás
Építési mód
tégla
Méret
66,2 m²
Bruttó méret
76,5 m²
Terasz / erkély mérete
20,4 m²
Fűtés
hőszivattyú
Belmagasság
260 cm
Tájolás
Nyugat
Lépcsőház típusa
zárt lépcsőház
Állapot
Kiváló
Homlokzat állapota
Kiváló
Lépcsőház állapota
Kiváló
Építés éve
2025
Fürdőszobák száma
1
Fekvés
utcai
Víz
Van
Villany
Van
Csatorna
Van
Lift
van
Helyiségek
nappali
16.2 m²
konyha-étkező
6.94 m²
közlekedő
10.95 m²
fürdőszoba-wc
2.77 m²
fürdőszoba-wc
5.36 m²
hálószoba
13.19 m²
hálószoba
10.85 m²
terasz
20.48 m²

Ruczek Krisztina
Hitelszakértő