165 000 000 Ft
425 000 €
- 132m²
- 4 szoba
 
            
                                                            NYULASON ÚJ ÉPÍTÉSŰ SORHÁZ ELADÓK
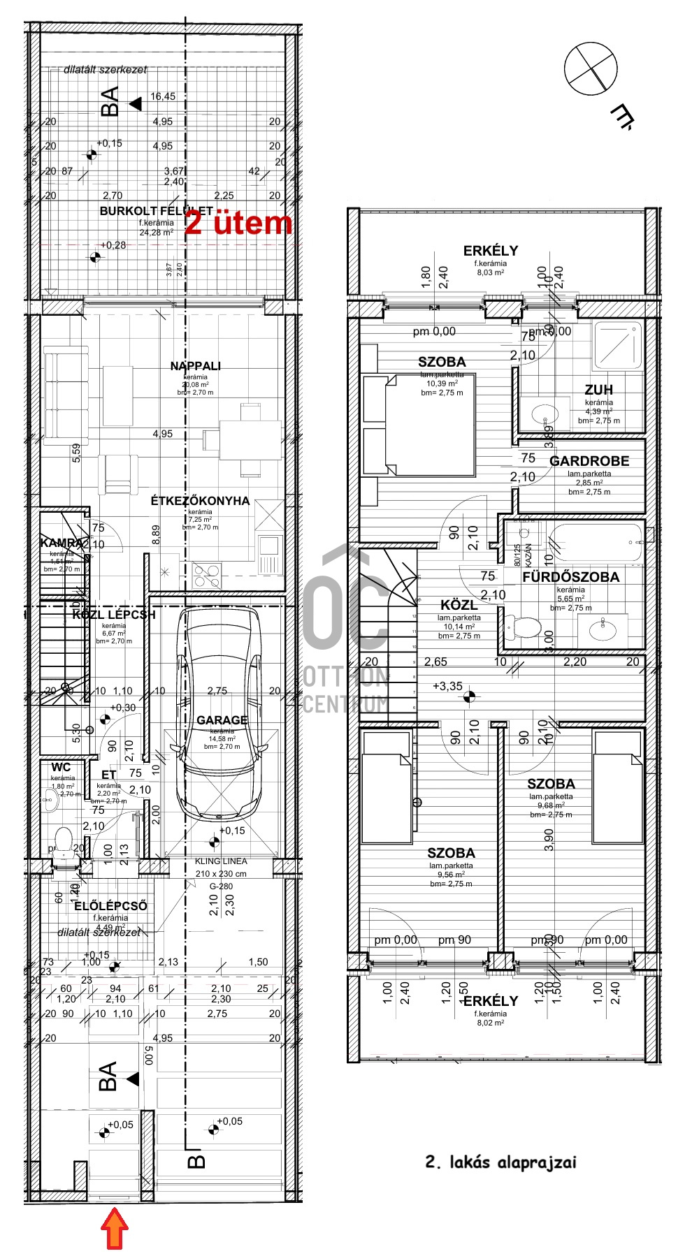
2. lakás: Br. 152 nm
- amerikaikonyhás - étkezős nappali (27 nm)
- teraszkapcsolat (24 nm)
- garázs (15 nm)
- vendégmosdó
- 3 szoba (10-10-10 nm)
- 2 fürdőszoba
- gardrób
- erkélyek (16 nm)
                    - amerikaikonyhás - étkezős nappali (27 nm)
- teraszkapcsolat (24 nm)
- garázs (15 nm)
- vendégmosdó
- 3 szoba (10-10-10 nm)
- 2 fürdőszoba
- gardrób
- erkélyek (16 nm)
Regisztrációs szám
P4623-1-0A-NA-002
                Az ingatlan adatai
Értékesités
                                        eladó
                                                                                                                                                Jogi státusz
                                        új
                                                                                                                                                Jelleg
                                        ház
                                                                                                                                                                                                                                                                                        Építési mód
                                        tégla
                                                                                                                                                                                                                                                                                                                                                                                                                                                                                                    Méret
                                        132 m²
                                                                                                                                                Bruttó méret
                                        152 m²
                                                                                                                                                Telek méret
                                        120 m²
                                                                                                                                                Terasz / erkély mérete
                                        40 m²
                                                                                                                                                                                                                                                                                                                                                                                                                                Fűtés
                                        Gáz cirkó
                                                                                                                                                Belmagasság
                                        270 cm
                                                                                                                                                Lakáson belüli szintszám
                                        1
                                                                                                                                                Tájolás
                                        Dél-kelet
                                                                                                                                                                                                                                                                                        Állapot
                                        Kiváló
                                                                                                                                                Homlokzat állapota
                                        Kiváló
                                                                                                                                                                                                                                                                                        Környék
                                        csendes, jó közlekedés, zöld
                                                                                                                                                Építés éve
                                        2025
                                                                                                                                                Fürdőszobák száma
                                        2
                                                                                                                                                                                                                                                                                                                                                                                                                                Garázs
                                        Benne van az árban
                                                                                                                                                Garázs férőhely
                                        1
                                                                                                                                                                                                                                                                                        Víz
                                        Van
                                                                                                                                                Gáz
                                        Van
                                                                                                                                                Villany
                                        Van
                                                                                                                                                Csatorna
                                        Van
                                                                                                                                                                                                                                                                                                                                                                                                                                                                                                                                                                                            Helyiségek
előszoba
                                        2 m²
                                                                            egyéb
                                        5 m²
                                                                            wc-kézmosó
                                        2 m²
                                                                            közlekedő
                                        7 m²
                                                                            kamra
                                        2 m²
                                                                            konyha-étkező
                                        7 m²
                                                                            nappali
                                        20 m²
                                                                            garázs
                                        15 m²
                                                                            terasz
                                        24 m²
                                                                            szoba
                                        10 m²
                                                                            szoba
                                        10 m²
                                                                            fürdőszoba-wc
                                        6 m²
                                                                            közlekedő
                                        10 m²
                                                                            hálószoba
                                        10 m²
                                                                            fürdőszoba-wc
                                        4 m²
                                                                            gardrób
                                        3 m²
                                                                     
            
                            Czellér András
Hitelszakértő
 
                     
                         
                    
                 
                 
                 
                 
                 
                 
                 
                 
                 
                 
                 
                