data_sheet.details.realestate.section.main.otthonstart_flag.label
For sale new construction family house, U0049557
Balmazújváros

104,900,000 Ft

294,000 €

  • 125.6m²
  • 4 Rooms
Exclusive Contract

Modern, energy-efficient solutions for newly built family houses.

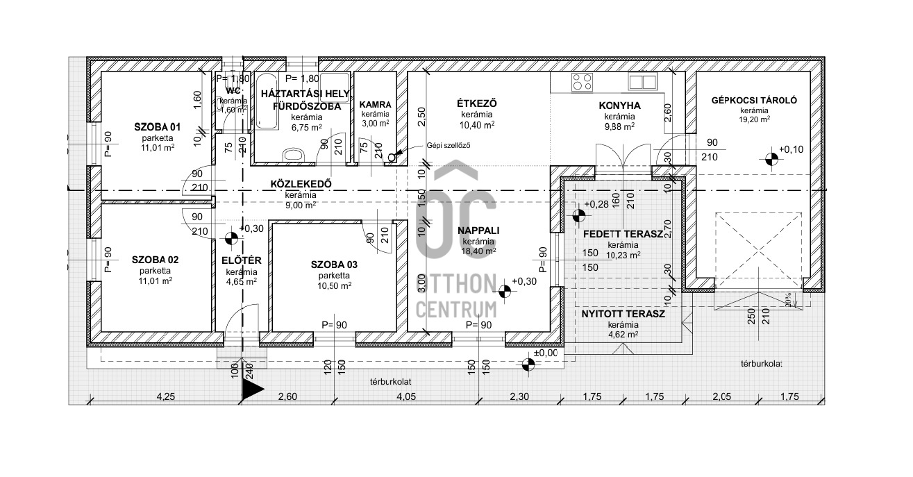
A spacious, newly built family house with a heat pump and American-style kitchen, featuring a large living room, is for sale in Balmazújváros! Nearby, there are shops, a local bus stop, a school, and a kindergarten. This is an excellent choice if you are looking to find your new home in a town close to Debrecen. Reliable and high-quality construction work is underway, with completion expected in the second or third quarter of 2026. In addition to quality construction, great emphasis is placed on aesthetic appearance. The parameters of the family house: - Plot size: 486 sqm - Usable floor area of the house: 125 sqm - Wall structure: 30 cm thick Phorotherm bricks + 15 cm thick external insulation - Triple-glazed, heat-insulated, colored plastic windows - Built-in electric aluminum shutters - An economical heat pump system provides hot water and heating for the home, with underfloor heating ensuring a pleasant temperature. Cooling is provided by a high-performance air conditioning system. - Anthracite-colored, triple-glazed, heat-insulated plastic windows brighten the space, complete with built-in electric shutters. - New, built fence, paved walkways, and car parking spaces. - Spacious, bright areas and ideal space utilization characterize the house. - A covered terrace connects the kitchen, dining area, and living room, along with three comfortably sized bedrooms, a bathroom, a separate toilet, a laundry room, and a wide hallway. - A 19 sqm garage connected to the living space. - The construction is in an advanced stage, but you can still shape the interior color scheme according to your own ideas (flooring, sanitary ware, wall colors are still selectable). Debrecen can be quickly and easily accessed from the town, whether by your own car or through the continuously developing public transportation system. This is ideal for those who appreciate a suburban, green environment while also valuing proximity to a larger city. Call now to schedule a viewing! Hajdú-Bihar, Debrecen, Balmazújváros, house, garden, for sale, new, modern, heat pump, energy-efficient, family, BMW, home, English description.

Registration Number

U0049557

Property Details

Sales
for sale
Legal Status
new
Character
house
Construction Method
brick
Net Size
125.6 m²
Gross Size
154.6 m²
Plot Size
486 m²
Size of Terrace / Balcony
16 m²
Heating
heat pump
Ceiling Height
270 cm
Orientation
South-West
Condition
Excellent
Condition of Facade
Excellent
Neighborhood
quiet, green
Year of Construction
2026
Number of Bathrooms
1
Garage
Included in the price
Garage Spaces
1
Number of Covered Parking Spots
1
Water
Available
Electricity
Available
Sewer
Available

Rooms

living room
18.4 m²
kitchen
9.88 m²
dining room
10.4 m²
bedroom
10.5 m²
bedroom
11.01 m²
bedroom
11.01 m²
corridor
9 m²
utility room
3 m²
toilet-washbasin
1.6 m²
garage
19.2 m²
terrace
15 m²
entryway
4.65 m²
Czellér András
Czellér András

Credit Expert

From Our Office Listings - Debrecen - Kálvin tér

for sale family house

Index image
data_sheet.details.realestate.section.main.otthonstart_flag.label
23

for sale family house

Index image
data_sheet.details.realestate.section.main.otthonstart_flag.label
23

for sale apartment

Index image
data_sheet.details.realestate.section.main.otthonstart_flag.label
11

for sale family house

Index image
data_sheet.details.realestate.section.main.otthonstart_flag.label
15

for rent commercial property

Index image
13

for sale apartment

Index image
data_sheet.details.realestate.section.main.otthonstart_flag.label
23