Elérhető Otthon Start hitellel
Eladó újépítésű ikerház, P4605-1-0A-NA-000
Kiskunlacháza,

71 000 000 Ft

186 000 €

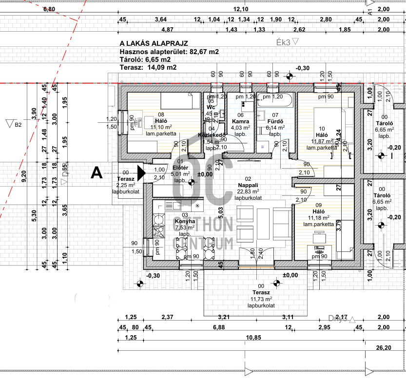
  • 88,9m²
  • 4 szoba

Regisztrációs szám

P4605-1-0A-NA-000

Az ingatlan adatai

Értékesités
eladó
Jogi státusz
új
Jelleg
ház
Építési mód
tégla
Méret
88,9 m²
Bruttó méret
89 m²
Telek méret
360 m²
Terasz / erkély mérete
14 m²
Fűtés
hőszivattyú
Belmagasság
260 cm
Tájolás
Észak-kelet
Állapot
Kiváló
Homlokzat állapota
Kiváló
Környék
csendes
Építés éve
2025
Fürdőszobák száma
1
Víz
Van
Gáz
Utcán
Villany
Van
Csatorna
Van
Tároló
Önálló

Helyiségek

nappali
22.83 m²
konyha-étkező
7.53 m²
kamra
4.3 m²
előszoba
5.1 m²
fürdőszoba-wc
6.14 m²
wc-kézmosó
1.54 m²
szoba
11.1 m²
szoba
11.18 m²
szoba
11.87 m²
terasz
11.73 m²
terasz
2.25 m²
Joó Krisztina
Joó Krisztina

Hitelszakértő

Irodánk kínálatából - Szigethalom

eladó tanya

Index image
90

eladó nyaraló

Index image
24

eladó ikerház

Index image
Elérhető Otthon Start hitellel
20

for sale family house

Index image
data_sheet.details.realestate.section.main.otthonstart_flag.label
24

eladó telek

Index image
8

eladó lakás

Index image
33