78 750 000 Ft
203 000 €
- 45m²
- 2 szoba
- 3. emelet


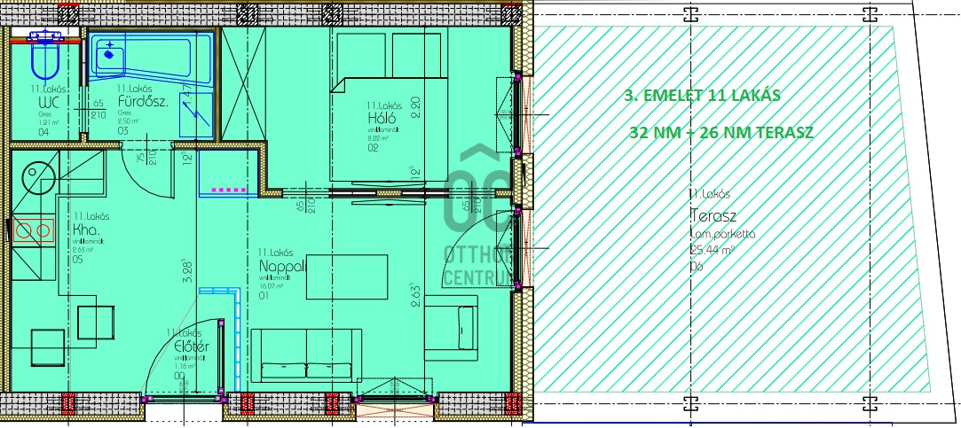
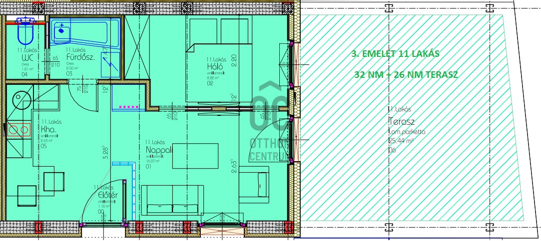
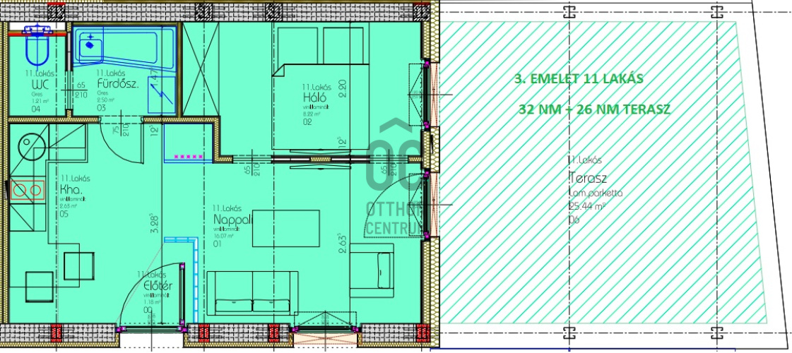
11. LAKÁS
III. emelet
2 szoba, 32 nm + 26 nm terasz
III. emelet
2 szoba, 32 nm + 26 nm terasz
Regisztrációs szám
P4589-1-01-03-011
Az ingatlan adatai
Értékesités
eladó
Jogi státusz
új
Jelleg
lakás
Építési mód
ytong
Méret
45 m²
Bruttó méret
62 m²
Terasz / erkély mérete
30 m²
Fűtés
hőszivattyú
Belmagasság
270 cm
Tájolás
Észak-nyugat
Lépcsőház típusa
függőfolyosó
Állapot
Kiváló
Homlokzat állapota
Kiváló
Lépcsőház állapota
Kiváló
Építés éve
2022
Fürdőszobák száma
1
Fekvés
udvari
Víz
Van
Villany
Van
Csatorna
Van
Lift
van
Helyiségek
nappali-étkező
20 m²
hálószoba
8 m²
tetőterasz
30 m²
fürdőszoba
3 m²
wc
1 m²

Vitéz Kornél
Hitelszakértő