Eladó újépítésű lakás, P4566-1-01-01-004
Budapest II. kerület, Rézmál

329 975 000 Ft

865 000 €

  • 96,3m²
  • 3 szoba
  • 1. emelet

Exkluzív új építésű lakások Rózsadombon!

A lakáshoz tartozik még 2 db garázshely további 13.000.000 Ft/ db áron
és 1 db tároló, amelynek ára 5.000.000 Ft/db
A garázshely és a tároló a vételáron felül értendő.

Regisztrációs szám

P4566-1-01-01-004

Az ingatlan adatai

Értékesités
eladó
Jogi státusz
új
Jelleg
lakás
Építési mód
tégla
Méret
96,3 m²
Bruttó méret
100,8 m²
Terasz / erkély mérete
8,9 m²
Fűtés
hőszivattyú
Belmagasság
265 cm
Lakáson belüli szintszám
3
Tájolás
Dél-nyugat
Lépcsőház típusa
zárt lépcsőház
Állapot
Kiváló
Homlokzat állapota
Kiváló
Lépcsőház állapota
Kiváló
Környék
csendes, zöld
Építés éve
2027
Fürdőszobák száma
2
Fekvés
utcai
Víz
Van
Villany
Van
Csatorna
Van
Lift
van
Tároló
Külön vásárolható

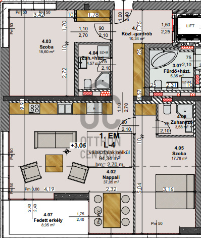
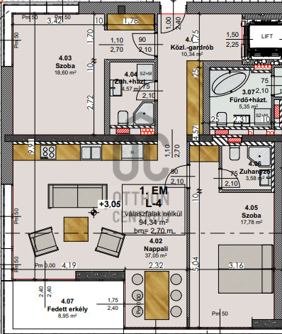
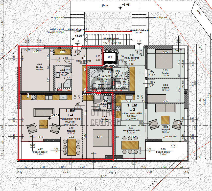
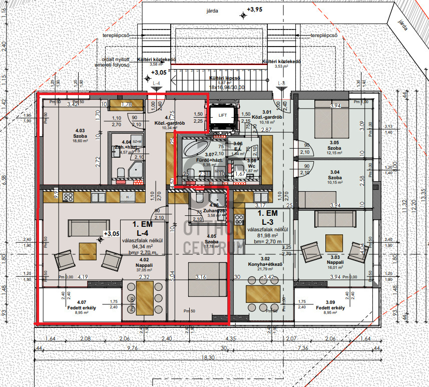
Helyiségek

közlekedő
10.34 m²
nappali-konyha
37.05 m²
szoba
17.78 m²
szoba
18.6 m²
fürdőszoba-wc
4.57 m²
fürdőszoba-wc
3.58 m²
erkély
8.95 m²
Tóth Róbert
Tóth Róbert

Hitelszakértő

Irodánk kínálatából - III. kerület - WFC

for sale apartment

Index image
9

for sale apartment

Index image
16

for sale apartment

Index image
12

for rent apartment

Index image
36

for sale new construction apartment

Index image
18

for sale new construction apartment

Index image
18

for sale apartment

Index image
16

for sale developmental property

Index image
7

for rent new construction apartment

Index image
16

for rent new construction apartment

Index image
25

for rent new construction apartment

Index image
12