104 990 000 Ft
271 000 €
- 60m²
- 3 szoba
- 6. emelet

Regisztrációs szám
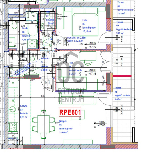
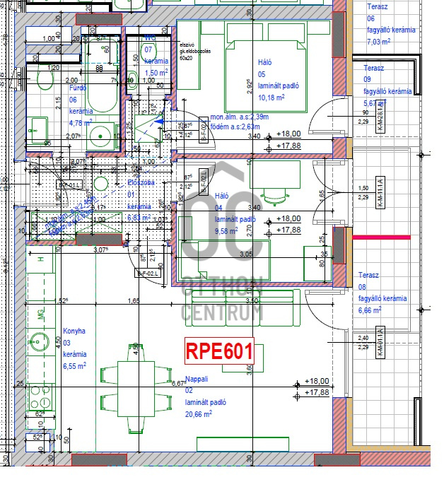
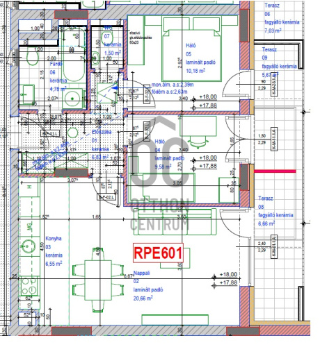
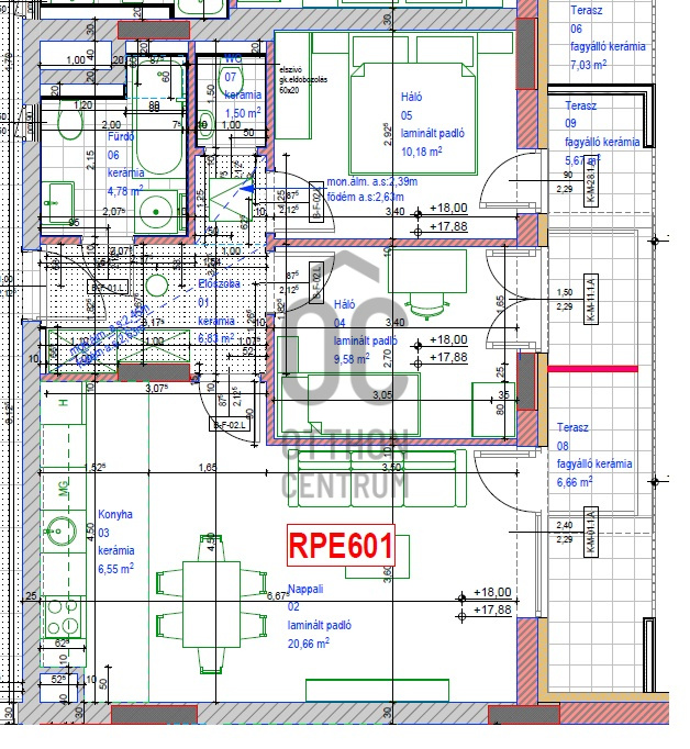
P4558-1-0E-06-601
Az ingatlan adatai
Értékesités
eladó
Jogi státusz
új
Jelleg
lakás
Építési mód
tégla
Méret
60 m²
Bruttó méret
65,9 m²
Terasz / erkély mérete
11,7 m²
Fűtés
hőszivattyú
Belmagasság
265 cm
Tájolás
Kelet
Lépcsőház típusa
zárt lépcsőház
Állapot
Kiváló
Homlokzat állapota
Kiváló
Lépcsőház állapota
Kiváló
Környék
csendes, jó közlekedés, zöld
Építés éve
2024
Fürdőszobák száma
1
Fekvés
kertre néző
Társaház kert
igen
Garázs
Külön vásárolható
Víz
Van
Villany
Van
Csatorna
Van
Lift
van
Tároló
Külön vásárolható
Vízpart távolsága
200 méterre
Helyiségek
nappali-konyha
27.21 m²
hálószoba
10.18 m²
hálószoba
9.58 m²
fürdőszoba-wc
4.78 m²

Berkes-Jakus Kinga
Hitelszakértő