534 500 000 Ft
1 423 000 €
- 139m²
- 4 szoba
- 3. emelet
Szépvölgy Residence, nyugalom, csend és jó levegő
Szépvölgyben, közvetlenül erdős természetvédelmi terület mellett került kialakításra, egy magas minőségben megépített, 4 szintes lakóépület. A földszint + 3 emeleti elrendezés 16 lakás kialakítását eredményezte, stúdió (garzon), nappali +1, nappali + 2, nappali + 3 és nappali + 4 hálószobai elosztással.
A lakások között van teraszos és erkélyes változat is. A csatolt lakás listában mindenki megtalálja a számára megfelelő tájolású, elrendezésű és árú ingatlant.
FINANSZÍROZÁS: MINIMUM 50% ÖNERŐ KIFIZETÉSE SZÜKSÉGES AZ ADÁSVÉTELI SZERZŐDÉS ALÁÍRÁSAKOR.
A látványtervek a kialakítható lehetőségek egy részét mutatják be!
Az épület 80 %-ban készen van, a burkolatok, szaniterek és belső kialakítások az új Tulajdonosok elképzelései szerint kerülnek majd kialakításra.
Birtokba adás:
A földszinti lakások és az első emeleti lakások birtokba adási ideje: szerződést követően 90 napon belül.
A 2. emeleti és penthouse lakás átadása: 6 hónap.
Műszaki kialakítás, VÉTELÁR TARTALMAZZA:
A lakásokban padlófűtés, helyiségenkénti klimatizálás lesz kialakítva.
Hidegburkolatok/ melegburkolatok választhatóak: 30.000.ft/ m2
Szaniterek: Homelux prémium termékek, a fürdőszobák és a vizes helyiségek travertin jellegű burkolattal lesznek ellátva.
kád: 400.000.ft./ db., wc: 80.000.ft./ db., csaptelepek: 30.000.ft./db.,zuhanyszett: 80.000.ft. /db.
Belső nyílászárók: Homelux dekor fóliás beltéri ajtók választható színnel. 100.000.ft/db.
Lakáslista, KULCSRAKÉSZ ÁRAK:
Fsz 1.-es lakás: 58 m2 (nappali + 2 hálószoba),
amely áll: 29.95 m2 nappali, 7.31 m2 szoba, 9.15 m2 szoba, fürdő 4.46 m2, folyosó 3.13 m2, fürdő 4.13 m2 helyiségekből. Terasz: 13 m2.
Ára: 89,9 Mft, 1 db udvari gk. beállóval.
ELADVA: Fsz 2.-es lakás: 64 m2 (nappali + 2 hálószoba).
ELADVA: Fsz 3-as lakás: 36 m2 (nappali + 1 hálószoba)+30 m2 kert +12 m2 terasz.
Fsz 4/1 stúdió: 31.15 m2 nettó+ 9.86 m2 terasz
Ára: 57.9 Mft
Fsz 4/2 stúdió: 25,78 m2 nettó+ 8,6 m2 terasz
Ára: 49.9 Mft.
ELADVA: Fsz 5-ös lakás: 43 m2( nappali + 1 hálószoba).
ELADVA: Fsz 6-os lakás: 52 m2 ( nappali + 1 hálószoba) + 25 m2 terasz.
1.emelet 7-es lakás: 73 m2 (nappali + 2 hálószoba) + terasz 45 m2
amely áll: nappali 22.29 m2, szoba 8.36m2, szoba 12.02m2, fürdő 5.31m2, fürdő 7.18 m2 + terasz 45 m2.
Ára: 149.9 Mft, 2 db udvari gk. beállóval.
1.emelet 8.-as lakás: 94 m2 ( nappali +2 hálószoba) + terasz 16 m2.
amely áll: nappali 45.34 m2, szoba 15.23 m2, fürdő 8.09 m2, szoba 9.3 m2, fürdő: 4.1 m2, wc 1.85 m2, előtér: 5.33, konyha 5.21 m2 +terasz 16 m2.
Ára: 196 Mft, 2 db udvari gk. beállóval.
ELADVA: 1. emelet 9/1-es lakás: 54 m2, nappali + 1 vagy 2 hálószoba+ 17.3 m2 erkély+ autóbeálló:
1.emelet 9/2-es lakás: 54 m2, nappali + 1 vagy két hálószoba + 40 m2 terasz + autóbeálló: 135.5 Mft.
2. emeleti lakások, nappali + 1 VAGY 2 hálószobás elrendezéssel:
2. emelet 1: 48.49 m2+7.86 erkély = 109.9 Mft.
2. emelet 2: 66.71 m2+ 13.2 m2 erkély= 139.9 Mft.
2.emelet 3.: 56.06 m2 + 16 m2 erkély= 124.9 Mft.
2.emelet 4: 92 m2 + 41.5 m2 terasz = 199 Mft.
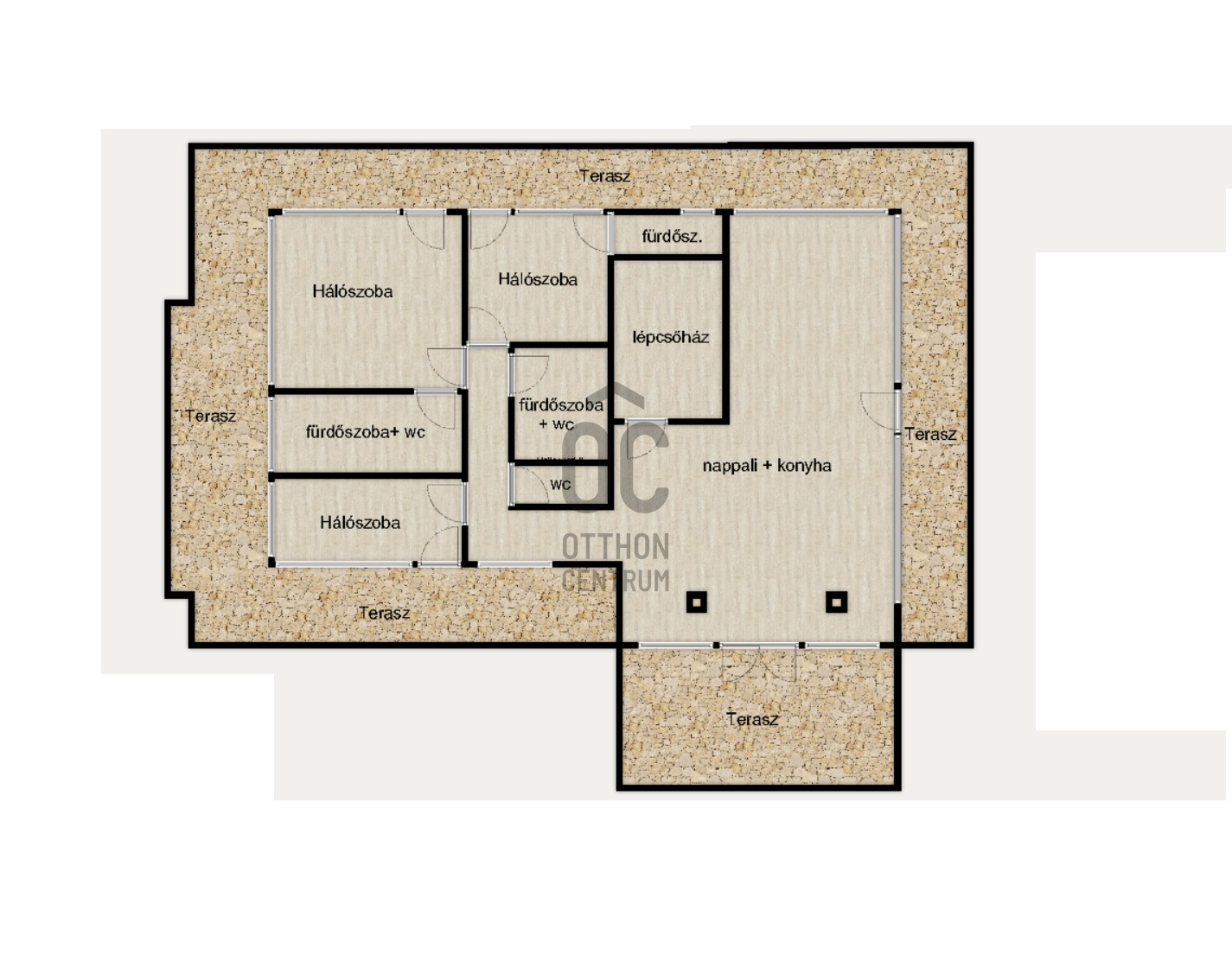
2.emelet 10-es lakás: 253 m2, nappali + 3 vagy 4 hálószoba , +3 fürdőszoba
terasz 5.10 m2, 5.20 m2, 44 m2, 50 m2.
Ára: 558 Mft, 2 db udvari gk. beállóval.
3. emelet 11-es lakás: 139 m2 (nappali 3 vagy 4 háló) +240 m2 tetőterasz-360 fokos körpanorámával, +84 m2 terasz körbe, + 50 m2 terasz.
Ára: 534,5 Mft, 2 db udvari gk. beállóval.
A lakások között van teraszos és erkélyes változat is. A csatolt lakás listában mindenki megtalálja a számára megfelelő tájolású, elrendezésű és árú ingatlant.
FINANSZÍROZÁS: MINIMUM 50% ÖNERŐ KIFIZETÉSE SZÜKSÉGES AZ ADÁSVÉTELI SZERZŐDÉS ALÁÍRÁSAKOR.
A látványtervek a kialakítható lehetőségek egy részét mutatják be!
Az épület 80 %-ban készen van, a burkolatok, szaniterek és belső kialakítások az új Tulajdonosok elképzelései szerint kerülnek majd kialakításra.
Birtokba adás:
A földszinti lakások és az első emeleti lakások birtokba adási ideje: szerződést követően 90 napon belül.
A 2. emeleti és penthouse lakás átadása: 6 hónap.
Műszaki kialakítás, VÉTELÁR TARTALMAZZA:
A lakásokban padlófűtés, helyiségenkénti klimatizálás lesz kialakítva.
Hidegburkolatok/ melegburkolatok választhatóak: 30.000.ft/ m2
Szaniterek: Homelux prémium termékek, a fürdőszobák és a vizes helyiségek travertin jellegű burkolattal lesznek ellátva.
kád: 400.000.ft./ db., wc: 80.000.ft./ db., csaptelepek: 30.000.ft./db.,zuhanyszett: 80.000.ft. /db.
Belső nyílászárók: Homelux dekor fóliás beltéri ajtók választható színnel. 100.000.ft/db.
Lakáslista, KULCSRAKÉSZ ÁRAK:
Fsz 1.-es lakás: 58 m2 (nappali + 2 hálószoba),
amely áll: 29.95 m2 nappali, 7.31 m2 szoba, 9.15 m2 szoba, fürdő 4.46 m2, folyosó 3.13 m2, fürdő 4.13 m2 helyiségekből. Terasz: 13 m2.
Ára: 89,9 Mft, 1 db udvari gk. beállóval.
ELADVA: Fsz 2.-es lakás: 64 m2 (nappali + 2 hálószoba).
ELADVA: Fsz 3-as lakás: 36 m2 (nappali + 1 hálószoba)+30 m2 kert +12 m2 terasz.
Fsz 4/1 stúdió: 31.15 m2 nettó+ 9.86 m2 terasz
Ára: 57.9 Mft
Fsz 4/2 stúdió: 25,78 m2 nettó+ 8,6 m2 terasz
Ára: 49.9 Mft.
ELADVA: Fsz 5-ös lakás: 43 m2( nappali + 1 hálószoba).
ELADVA: Fsz 6-os lakás: 52 m2 ( nappali + 1 hálószoba) + 25 m2 terasz.
1.emelet 7-es lakás: 73 m2 (nappali + 2 hálószoba) + terasz 45 m2
amely áll: nappali 22.29 m2, szoba 8.36m2, szoba 12.02m2, fürdő 5.31m2, fürdő 7.18 m2 + terasz 45 m2.
Ára: 149.9 Mft, 2 db udvari gk. beállóval.
1.emelet 8.-as lakás: 94 m2 ( nappali +2 hálószoba) + terasz 16 m2.
amely áll: nappali 45.34 m2, szoba 15.23 m2, fürdő 8.09 m2, szoba 9.3 m2, fürdő: 4.1 m2, wc 1.85 m2, előtér: 5.33, konyha 5.21 m2 +terasz 16 m2.
Ára: 196 Mft, 2 db udvari gk. beállóval.
ELADVA: 1. emelet 9/1-es lakás: 54 m2, nappali + 1 vagy 2 hálószoba+ 17.3 m2 erkély+ autóbeálló:
1.emelet 9/2-es lakás: 54 m2, nappali + 1 vagy két hálószoba + 40 m2 terasz + autóbeálló: 135.5 Mft.
2. emeleti lakások, nappali + 1 VAGY 2 hálószobás elrendezéssel:
2. emelet 1: 48.49 m2+7.86 erkély = 109.9 Mft.
2. emelet 2: 66.71 m2+ 13.2 m2 erkély= 139.9 Mft.
2.emelet 3.: 56.06 m2 + 16 m2 erkély= 124.9 Mft.
2.emelet 4: 92 m2 + 41.5 m2 terasz = 199 Mft.
2.emelet 10-es lakás: 253 m2, nappali + 3 vagy 4 hálószoba , +3 fürdőszoba
terasz 5.10 m2, 5.20 m2, 44 m2, 50 m2.
Ára: 558 Mft, 2 db udvari gk. beállóval.
3. emelet 11-es lakás: 139 m2 (nappali 3 vagy 4 háló) +240 m2 tetőterasz-360 fokos körpanorámával, +84 m2 terasz körbe, + 50 m2 terasz.
Ára: 534,5 Mft, 2 db udvari gk. beállóval.
Regisztrációs szám
P4549-1-01-03-011
Az ingatlan adatai
Értékesités
eladó
Jogi státusz
új
Jelleg
lakás
Építési mód
tégla
Méret
139 m²
Bruttó méret
263 m²
Terasz / erkély mérete
374 m²
Belmagasság
280 cm
Lakáson belüli szintszám
1
Tájolás
Dél-nyugat
Panoráma
Zöldre néző panoráma
Lépcsőház típusa
zárt lépcsőház
Állapot
Kiváló
Homlokzat állapota
Kiváló
Lépcsőház állapota
Kiváló
Környék
csendes, jó közlekedés, zöld
Építés éve
2024
Fürdőszobák száma
2
Fekvés
kertre néző
Víz
Van
Villany
Van
Csatorna
Van
Lift
van
Helyiségek
nappali-konyha
55 m²
hálószoba
16 m²
hálószoba
16 m²
hálószoba
16 m²
fürdőszoba-wc
10 m²
fürdőszoba-wc
10 m²
gardrób
6.3 m²
közlekedő
6 m²
Gerber Dorottya
Hitelszakértő