Eladó újépítésű lakás, P4544-1-01-05-008
Budapest VI. kerület, Belső VI.

61 050 000 Ft

160 000 €

  • 33m²
  • 1 szoba
  • 5. emelet

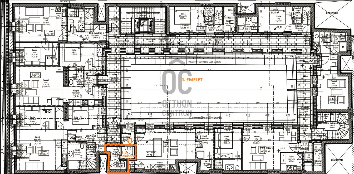
LUXUS TETŐTÉRI ÚJÉPÍTÉSŰ LAKÁSOK A BELVÁROSBAN

8.B. LAKÁS
5. EMELETEN HEYEZKEDIK EL, 1 SZOBÁS GARZONLAKÁS, NETTO 33 NM, BRUTTO 43 NM

- A 8.a. lakással közös előtérből közelíthető meg az 4.-ik emeletről
- A 8.a. lakástól, ami alatta helyezkedik el a 4. emeleten, jogilag és műszakilag teljesen elválasztva épül meg, de közös helyrajzi számmal, osztatlan közös tulajdonként, ügyvédi használati megosztással lesznek bejegyezve

Regisztrációs szám

P4544-1-01-05-008

Az ingatlan adatai

Értékesités
eladó
Jogi státusz
új
Jelleg
lakás
Építési mód
ytong
Méret
33 m²
Bruttó méret
43 m²
Fűtés
hőszivattyú
Belmagasság
280 cm
Lakáson belüli szintszám
2
Tájolás
Dél-nyugat
Lépcsőház típusa
függőfolyosó
Állapot
Kiváló
Homlokzat állapota
Kiváló
Lépcsőház állapota
Kiváló
Környék
jó közlekedés, központi
Építés éve
2023
Fürdőszobák száma
1
Fekvés
udvari
Víz
Van
Villany
Van
Csatorna
Van
Lift
van

Helyiségek

nappali-étkező
17 m²
konyha
4 m²
fürdőszoba
4 m²
wc
1 m²
előszoba
1 m²
lépcsőház
6 m²
Vitéz Kornél
Vitéz Kornél

Hitelszakértő

Irodánk kínálatából - XIII. kerület - Pozsonyi út

for sale commercial property

Index image
12

for sale commercial property

Index image
5

eladó lakás

Index image
15

eladó kereskedelmi ingatlan

Index image
5

kiadó lakás

Index image
17

eladó lakás

Index image
17