138 020 400 Ft
355 000 €
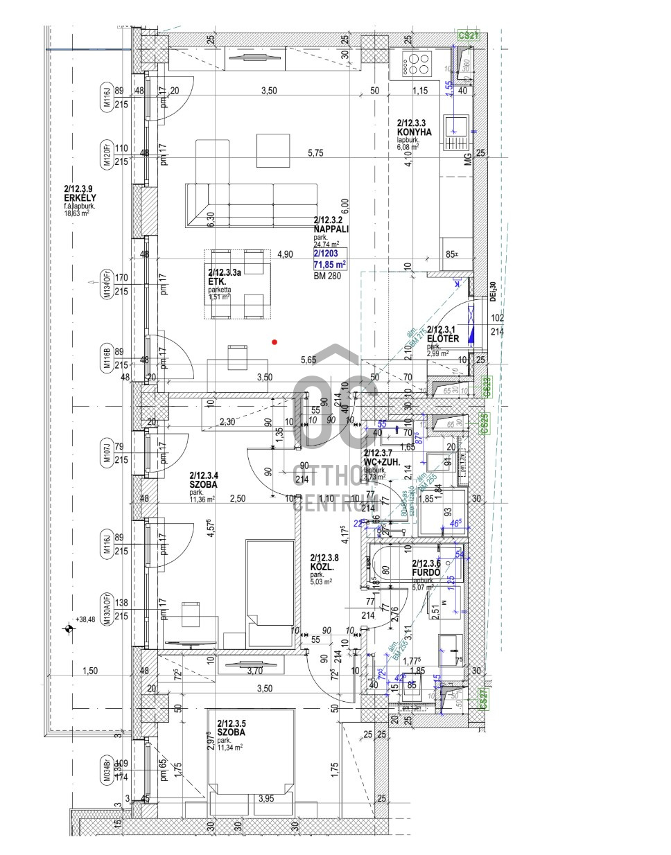
- 73,7m²
- 3 szoba
- 12. emelet


Regisztrációs szám
P4253-1-01-12-1203
Az ingatlan adatai
Értékesités
eladó
Jogi státusz
új
Jelleg
lakás
Építési mód
tégla
Méret
73,7 m²
Bruttó méret
83 m²
Terasz / erkély mérete
18,6 m²
Fűtés
hőszivattyú
Belmagasság
270 cm
Tájolás
Kelet
Lépcsőház típusa
zárt lépcsőház
Állapot
Kiváló
Homlokzat állapota
Kiváló
Lépcsőház állapota
Kiváló
Környék
csendes, jó közlekedés
Építés éve
2025
Fürdőszobák száma
2
Fekvés
kertre néző
Garázs
Külön vásárolható
Víz
Van
Gáz
Van
Villany
Van
Csatorna
Van
Lift
van
Tároló
Külön vásárolható
Vízpart távolsága
500 méterre
Helyiségek
nappali-konyha
32.33 m²
hálószoba
11.36 m²
hálószoba
11.34 m²
közlekedő
5.03 m²
előszoba
2.99 m²
fürdőszoba
5.07 m²
zuhanyzó
3.73 m²
erkély
18.63 m²

Berkes-Jakus Kinga
Hitelszakértő