205 000 000 Ft
528 000 €
- 97,8m²
- 4 szoba
- 6. emelet




ÚJ ÉPÍTÉSŰ ENERGIAHATÉKONY LAKÁSOK- VII. KERÜLET
A VII. kerület központi részén várja leendő tulajdonosait ez a 44+2 lakásos új építésű társasház.
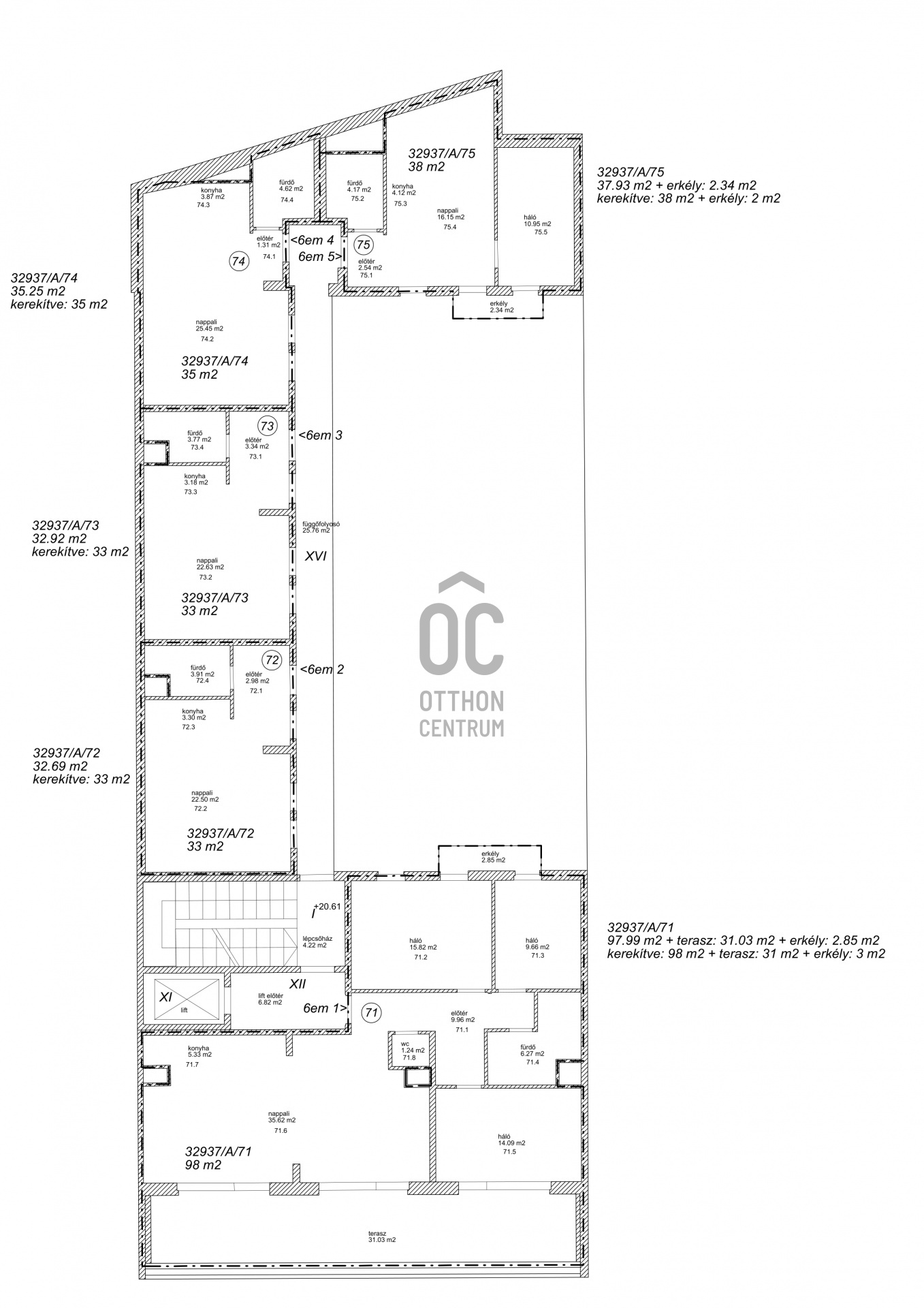
!! 1 db PENTHOUSE lakás érhető el !!
A lakás:
- VI. emelet, zárószint, penthouse lakás
- 98 nm + 31 nm tetőterasz
- D- i tájolású panorámás, utcai nézetű hatalmas nappali és 1 db hálószoba
- nappali- konyha, előszoba, fürdőszoba külön wc elosztás, 3 hálószoba
- a belső udvari nézetű hálószobákhoz tartozó erkély mérete 3 nm - É-i tájolás
!! 1 db PENTHOUSE lakás érhető el !!
A lakás:
- VI. emelet, zárószint, penthouse lakás
- 98 nm + 31 nm tetőterasz
- D- i tájolású panorámás, utcai nézetű hatalmas nappali és 1 db hálószoba
- nappali- konyha, előszoba, fürdőszoba külön wc elosztás, 3 hálószoba
- a belső udvari nézetű hálószobákhoz tartozó erkély mérete 3 nm - É-i tájolás
Regisztrációs szám
P4146-1-01-06-001
Az ingatlan adatai
Értékesités
eladó
Jogi státusz
új
Jelleg
lakás
Építési mód
tégla
Méret
97,8 m²
Bruttó méret
98 m²
Terasz / erkély mérete
33,8 m²
Fűtés
elektromos, infra
Belmagasság
300 cm
Lakáson belüli szintszám
1
Tájolás
Dél
Panoráma
városi panoráma
Lépcsőház típusa
függőfolyosó
Állapot
Kiváló
Homlokzat állapota
Kiváló
Lépcsőház állapota
Kiváló
Pince
Közös
Környék
jó közlekedés, központi
Építés éve
2022
Fürdőszobák száma
1
Fekvés
utcai
Társaház kert
igen
Garázs
Külön vásárolható
Víz
Van
Gáz
Utcán
Villany
Van
Csatorna
Van
Lift
van
Tároló
Külön vásárolható
Helyiségek
hálószoba
15.82 m²
hálószoba
9.66 m²
hálószoba
14.09 m²
nappali-konyha
36.62 m²
fürdőszoba
6.27 m²
wc
1.24 m²
előszoba
9.96 m²

Tóth Róbert
Hitelszakértő