101 240 000 Ft
261 000 €
- 66,2m²
- 3 szoba
- 3. emelet


ÚJ ÉPÍTÉSŰ ENERGIAHATÉKONY LAKÁSOK- VII. KERÜLET
A VII. kerület központi részén várja leendő tulajdonosait ez a 44+2 lakásos új építésű társasház.
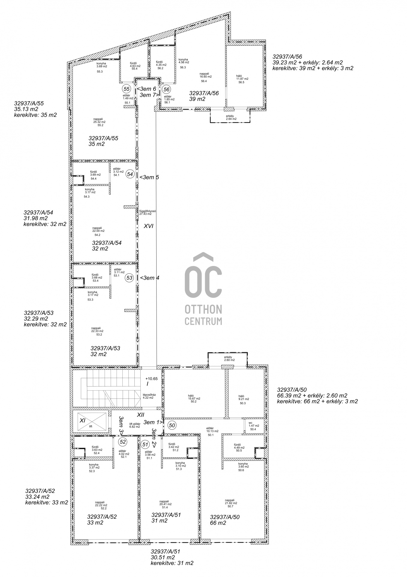
A lakás:
- III. emeleti 3 szobás ingatlan
- 66 nm
- 2,5 nm-es erkély
- nappali- konyha, előszoba, 2 hálószoba, fürdőszoba, wc elosztás
- D- i tájolású, utcai nézetű nappali
- É-i tájolású hálószobák, erkély udvari nézettel
A lakás:
- III. emeleti 3 szobás ingatlan
- 66 nm
- 2,5 nm-es erkély
- nappali- konyha, előszoba, 2 hálószoba, fürdőszoba, wc elosztás
- D- i tájolású, utcai nézetű nappali
- É-i tájolású hálószobák, erkély udvari nézettel
Regisztrációs szám
P4146-1-01-03-001
Az ingatlan adatai
Értékesités
eladó
Jogi státusz
új
Jelleg
lakás
Építési mód
tégla
Méret
66,2 m²
Bruttó méret
66 m²
Terasz / erkély mérete
2,6 m²
Fűtés
elektromos, infra
Belmagasság
300 cm
Lakáson belüli szintszám
1
Tájolás
Dél
Lépcsőház típusa
függőfolyosó
Állapot
Kiváló
Homlokzat állapota
Kiváló
Lépcsőház állapota
Kiváló
Pince
Közös
Építés éve
2022
Fürdőszobák száma
1
Fekvés
utcai
Társaház kert
igen
Garázs
Külön vásárolható
Víz
Van
Villany
Van
Csatorna
Van
Lift
van
Tároló
Külön vásárolható
Helyiségek
nappali-konyha
21.82 m²
hálószoba
15.67 m²
hálószoba
9.21 m²
előszoba
10.13 m²
fürdőszoba
4.49 m²
wc
1.47 m²
erkély
2.6 m²

Tóth Róbert
Hitelszakértő