Elérhető Otthon Start hitellel
Eladó újépítésű sorház,
P3907-36-03-NA-174
Vác, Alsóváros
99 900 000 Ft
264 000 €
- 96m²
- 4 szoba
VÁCON a KASTÉLYLIGET LAKÓPARKBAN kínálunk eladásra ÚJ ÉPÍTÉSŰ sorházakat 2026-os átadással!
A 3%-OS OTTHON START HITELRE ALKALMAS INGATLANOK!
A vásárláshoz a CSOK+ és az ILLETÉKKEDVEZMÉNY is igénybe vehető. CÉGES ÉPÍTKEZÉS !
KORSZERŰ ALACSONY ENERGIAIGÉNYŰ OTTHONOK.
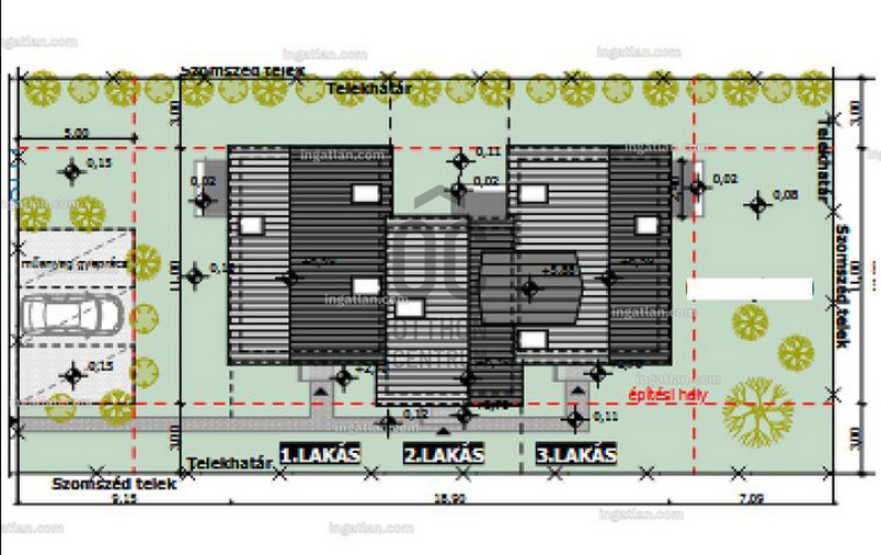
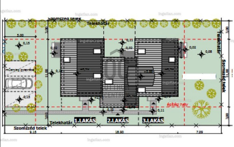
A háromlakásos sorház két szélső lakása 96-96 nm, a középső lakás pedig 73 nm alapterületű.
Minden lakáshoz külön bejárat, saját használatú változó nagyságú körbekerített kert és kocsibeálló tartozik.
A hirdetés az alaprajzon látható 3. számú belső lakásra vonatkozik, melynek ára 99,9 M Ft.
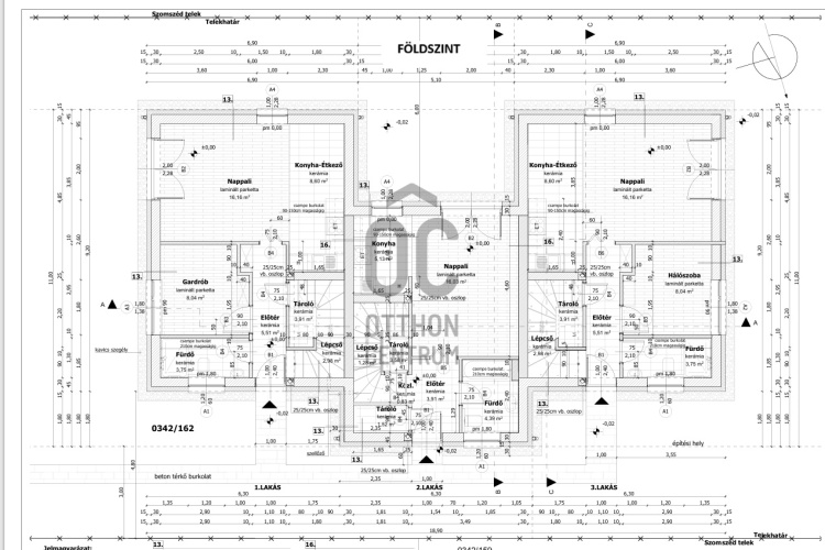
A 96 nm-es belső kétszintes lakások földszintjén egy hálószoba, tároló, zuhanyzó+WC, konyha-étkező, valamint egy kertkapcsolatos nappali kapott helyet.
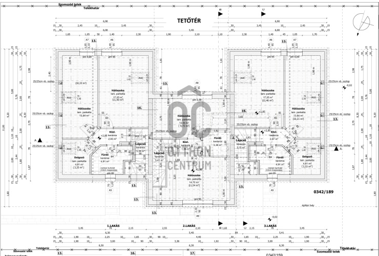
A tetőtérben két háló, egy dolgozó szoba , közlekedő és egy fürdő+WC található.
A jelenleg épülő 3 és 4 lakásos sorházak belső kétszintesek, 71 nm, 73 nm, 84 nm, és 96 nm-es kivitelben elérhetőek.
Választható lakások:
- 71 nm-es. Vételár :75,9-79,9 M Ft.
- 73 nm-es . Vételár: 75,9 M Ft.
- 84 nm-es. Vételár: 85,9-98,9 M Ft.
- 96 nm-es. Vételár: A belső 3. számú lakás eladási ára 99,9 MFt. Az utcafronti 1. számú lakás eladási ára 97,9 MFt.
A sorház modern stílusban praktikus elosztással lett tervezve, hogy minél élhetőbb és barátságosabb otthont biztosítson a leendő tulajdonosának és családjának.
Csendes nyugodt környék, átmenőforgalomtól mentes külvárosias környezetben, aszfaltozott úthálózattal, térkövezett járdákkal és közvilágítással.
Átgondolt tervezés, minőségi anyaghasználat és precíz kivitelezés egy megbízható referenciákkal bíró kivitelezőtől.
Műszaki paraméterek:
-Sávalapozás 60 cm szélességben. Külső falazat 30 cm-es kerámia blokk+15 cm homlokzati szigetelés
-Lakáselválasztó fal 30-as hanggátló téglából.
-Földszinten műanyag nyílászárók 3 rétegű üvegezéssel, kiegészítve beépített hőszigetelt redőnytokkal elektromos előkészítéssel.
-Hőszivattyús fűtés, a földszinten és az emeleten is padlófűtéssel.
-Elektromos és gépészeti előcsövezés a fan-coil rendszerhez.
-Opcionális lehetőség a teljes fan-coil rendszer kivitelezéséhez.
-Riasztó és kaputelefon előkészítés.
-Az elektromos hálózat 1x32A, de 3 fázisra bővíthetőségre előkészítve.
-H tarifás mérőóra igényelhető.
Közlekedés:
-Buszmegálló 5 perc sétával elérhető, ahonnan a Vác-alsóvárosi vasútállomás 3 perc
-Vác-Alsóváros-Bp Nyugati pályaudvar 29 perc vonattal
-Autóval az M2-es autóúton 20 perc alatt elérhető Budapest
Amivel segíteni tudjuk az Ön ingatlanvásárlását:
-ingyenes, bankfüggetlen hitelügyintézés
-értékbecslés
-jogi háttér
-földhivatali ügyintézés
-energetikai tanúsítvány készítése
Amennyiben a hirdetés felkeltette érdeklődését kérem forduljon hozzám bizalommal.
A 3%-OS OTTHON START HITELRE ALKALMAS INGATLANOK!
A vásárláshoz a CSOK+ és az ILLETÉKKEDVEZMÉNY is igénybe vehető. CÉGES ÉPÍTKEZÉS !
KORSZERŰ ALACSONY ENERGIAIGÉNYŰ OTTHONOK.
A háromlakásos sorház két szélső lakása 96-96 nm, a középső lakás pedig 73 nm alapterületű.
Minden lakáshoz külön bejárat, saját használatú változó nagyságú körbekerített kert és kocsibeálló tartozik.
A hirdetés az alaprajzon látható 3. számú belső lakásra vonatkozik, melynek ára 99,9 M Ft.
A 96 nm-es belső kétszintes lakások földszintjén egy hálószoba, tároló, zuhanyzó+WC, konyha-étkező, valamint egy kertkapcsolatos nappali kapott helyet.
A tetőtérben két háló, egy dolgozó szoba , közlekedő és egy fürdő+WC található.
A jelenleg épülő 3 és 4 lakásos sorházak belső kétszintesek, 71 nm, 73 nm, 84 nm, és 96 nm-es kivitelben elérhetőek.
Választható lakások:
- 71 nm-es. Vételár :75,9-79,9 M Ft.
- 73 nm-es . Vételár: 75,9 M Ft.
- 84 nm-es. Vételár: 85,9-98,9 M Ft.
- 96 nm-es. Vételár: A belső 3. számú lakás eladási ára 99,9 MFt. Az utcafronti 1. számú lakás eladási ára 97,9 MFt.
A sorház modern stílusban praktikus elosztással lett tervezve, hogy minél élhetőbb és barátságosabb otthont biztosítson a leendő tulajdonosának és családjának.
Csendes nyugodt környék, átmenőforgalomtól mentes külvárosias környezetben, aszfaltozott úthálózattal, térkövezett járdákkal és közvilágítással.
Átgondolt tervezés, minőségi anyaghasználat és precíz kivitelezés egy megbízható referenciákkal bíró kivitelezőtől.
Műszaki paraméterek:
-Sávalapozás 60 cm szélességben. Külső falazat 30 cm-es kerámia blokk+15 cm homlokzati szigetelés
-Lakáselválasztó fal 30-as hanggátló téglából.
-Földszinten műanyag nyílászárók 3 rétegű üvegezéssel, kiegészítve beépített hőszigetelt redőnytokkal elektromos előkészítéssel.
-Hőszivattyús fűtés, a földszinten és az emeleten is padlófűtéssel.
-Elektromos és gépészeti előcsövezés a fan-coil rendszerhez.
-Opcionális lehetőség a teljes fan-coil rendszer kivitelezéséhez.
-Riasztó és kaputelefon előkészítés.
-Az elektromos hálózat 1x32A, de 3 fázisra bővíthetőségre előkészítve.
-H tarifás mérőóra igényelhető.
Közlekedés:
-Buszmegálló 5 perc sétával elérhető, ahonnan a Vác-alsóvárosi vasútállomás 3 perc
-Vác-Alsóváros-Bp Nyugati pályaudvar 29 perc vonattal
-Autóval az M2-es autóúton 20 perc alatt elérhető Budapest
Amivel segíteni tudjuk az Ön ingatlanvásárlását:
-ingyenes, bankfüggetlen hitelügyintézés
-értékbecslés
-jogi háttér
-földhivatali ügyintézés
-energetikai tanúsítvány készítése
Amennyiben a hirdetés felkeltette érdeklődését kérem forduljon hozzám bizalommal.
Regisztrációs szám
P3907-36-03-NA-174
Az ingatlan adatai
Értékesités
eladó
Jogi státusz
új
Jelleg
ház
Építési mód
tégla
Méret
96 m²
Bruttó méret
96 m²
Telek méret
600 m²
Fűtés
hőszivattyú (levegő-levegő)
Belmagasság
270 cm
Lakáson belüli szintszám
2
Tájolás
Dél-nyugat
Állapot
Kiváló
Homlokzat állapota
Kiváló
Lépcsőház állapota
Kiváló
Környék
csendes, zöld
Építés éve
2026
Fürdőszobák száma
2
Víz
Van
Gáz
Van
Villany
Van
Csatorna
Van
Tároló
Önálló
Helyiségek
előszoba
5.51 m²
lépcsőház
2.98 m²
tároló
3.91 m²
fürdőszoba-wc
3.75 m²
hálószoba
8.04 m²
konyha-étkező
8.6 m²
nappali
16.16 m²
félszoba
4.81 m²
fürdőszoba-wc
4.91 m²
lépcsőház
3.39 m²
közlekedő
2.45 m²
hálószoba
13.84 m²
hálószoba
17.25 m²
Bán Marianna
Hitelszakértő