Elérhető Otthon Start hitellel
Eladó újépítésű lakás,
P3891-1-01-03-015
Budapest VIII. kerület, Corvin negyed
92 012 250 Ft
237 000 €
- 62m²
- 2 szoba
- 3. emelet












Newly Built Apartments and Wellness Above Budapest
This apartment has a western orientation, overlooks a quiet inner garden, and is characterized by spacious areas.
Regisztrációs szám
P3891-1-01-03-015
Az ingatlan adatai
Értékesités
eladó
Jogi státusz
új
Jelleg
lakás
Építési mód
tégla
Méret
62 m²
Bruttó méret
65 m²
Terasz / erkély mérete
6,4 m²
Fűtés
hőszivattyú
Belmagasság
265 cm
Tájolás
Nyugat
Lépcsőház típusa
zárt lépcsőház
Állapot
Kiváló
Homlokzat állapota
Kiváló
Lépcsőház állapota
Kiváló
Környék
csendes, jó közlekedés, központi
Építés éve
2023
Fürdőszobák száma
1
Fekvés
kertre néző
Garázs
Külön vásárolható
Víz
Van
Gáz
Utcán
Villany
Van
Csatorna
Van
Lift
van
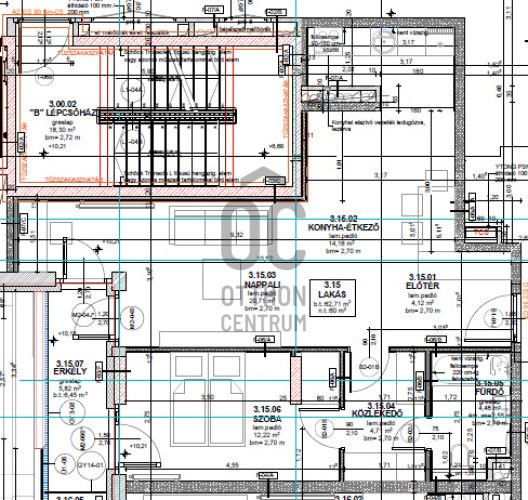
Helyiségek
előszoba
4.03 m²
konyha-étkező
9.54 m²
nappali
20.5 m²
hálószoba
12.4 m²
gardrób
4.7 m²
fürdőszoba-wc
4.55 m²
terasz
6.49 m²

Ruczek János
Hitelszakértő