149 900 000 Ft
386 000 €
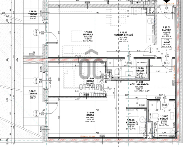
- 96,4m²
- 3 szoba
- 1. emelet






Newly Built Apartments and Wellness Above Budapest
Investor's dream! This property actually consists of two separate apartments within one land registry number — a studio and a living room + 1 bedroom apartment. Both are completely independent: they each have their own kitchen, their own bathroom, and their own terrace. Located on the first floor, they have windows facing a quiet internal garden with a west orientation. Both apartments are currently rented out, providing immediate income for the new owner.
Regisztrációs szám
P3891-1-01-01-016
Az ingatlan adatai
Értékesités
eladó
Jogi státusz
új
Jelleg
lakás
Építési mód
tégla
Méret
96,4 m²
Bruttó méret
103,8 m²
Terasz / erkély mérete
14,6 m²
Fűtés
hőszivattyú
Belmagasság
265 cm
Tájolás
Nyugat
Lépcsőház típusa
zárt lépcsőház
Állapot
Kiváló
Homlokzat állapota
Kiváló
Lépcsőház állapota
Kiváló
Környék
csendes, jó közlekedés, központi
Építés éve
2023
Fürdőszobák száma
2
Fekvés
kertre néző
Garázs
Külön vásárolható
Víz
Van
Gáz
Utcán
Villany
Van
Csatorna
Van
Lift
van
Kertkapcsolatos
igen
Helyiségek
nappali
19.61 m²
nappali
14.02 m²
konyha-étkező
11.94 m²
konyha-étkező
7.15 m²
hálószoba
11.76 m²
fürdőszoba-wc
4.77 m²
fürdőszoba-wc
5.46 m²
előszoba
5.29 m²
közlekedő
13.04 m²
terasz
6.05 m²
terasz
8.59 m²

Ruczek János
Hitelszakértő