276 132 000 Ft
730 000 €
- 122,4m²
- 3 szoba
- 4. emelet
Luxury newly bulit apartments in the heart of Pest Broadway
Most induló tetőtér ráépítéssel kialakításra kerülő 9 lakásos projekt keretében kínálok eladásra egy minden igényt kielégítő, belső kétszintes, luxus apartmant exkluzív kialakítású galériával, télikerttel Budapest Belső VI. kerületében a Pesti Broadway szívében, a Nagymező utcában.
Pár perc sétára van a Zeneakadémia, Operaház, a világörökség részét képező Andrássy út, továbbá a Király utca, ahol számtalan kávézó, étterem, színház, egyéb kulturális és szórakozási lehetőség is megtalálható. Befektetési szempontból is kiváló lehetőségeket rejt a beruházás, hiszen a Nagymező utca szemközti oldalán nyitotta nemrégiben a kapuit a világhírű Hard Rock hálózat új szállodája.
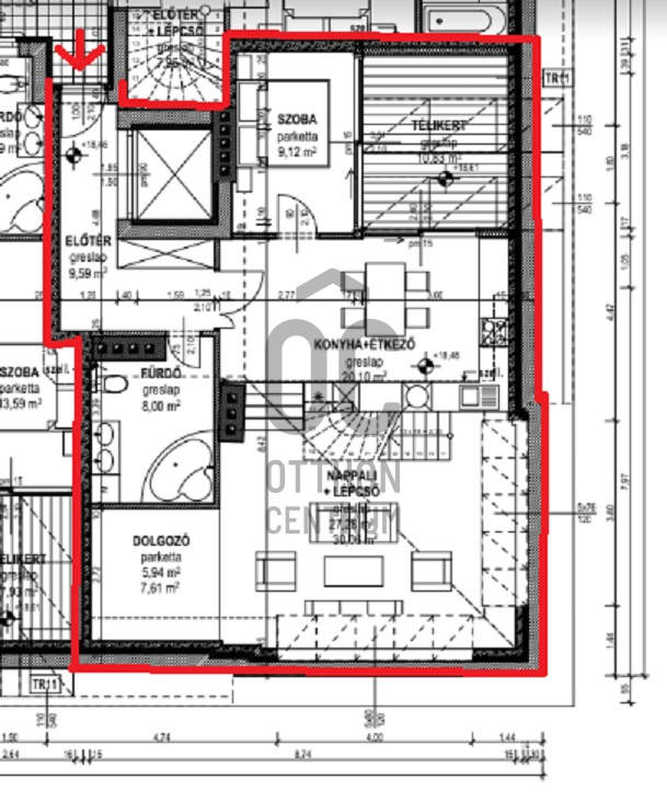
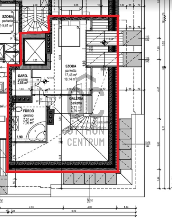
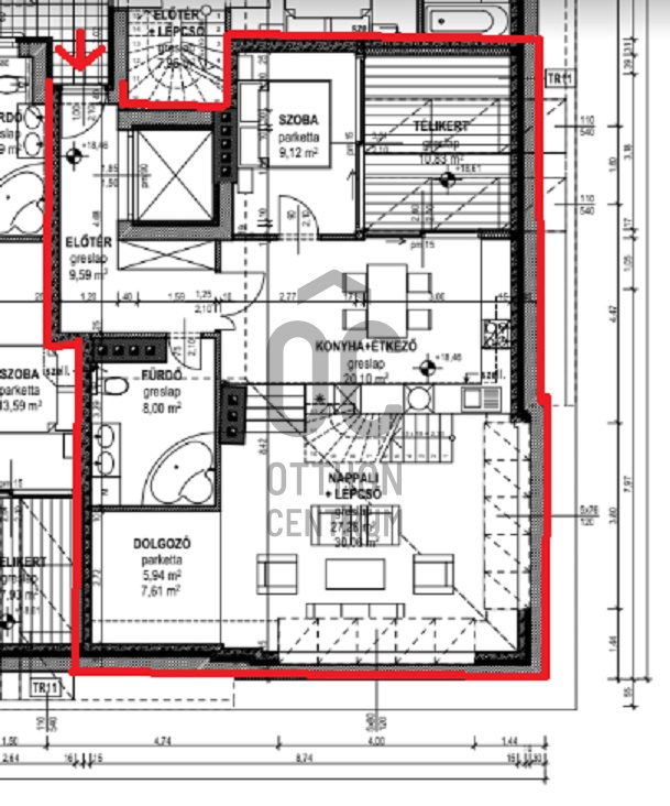
A lakások kialakításánál a legmagasabb igényeket vettük figyelembe. Talán a projekt legkülönlegesebb kialakítású lakása ez a 125,51 nm hasznos alapterületű lakás, melynek alsó szintjére egy tágas előtéren keresztül juthatunk, itt található a lakás nappalija dolgozó sarokkal, az étkezős konyha, hálószoba, az egyik fürdőszoba és a télikert. Az emeletre a nappalin keresztül vezet a lépcső, itt van a galéria a másik fürdőszoba és a gardróbbal ellátott hálószoba.
A két szintes emelet ráépítés keretében összesen 9 db., egy- illetve belső kétszintes, változatos méretű (nettó 37,66-117, nm-es) és elosztású (nappali + 1, 2, 3 hálószobás), teraszos okos otthon épül.
A vételár az alábbiakat tartalmazza:
- InnoSpot Okos Otthon rendszer előkészítése;
- konyhabútor (opcionális);
- Villeroy and Boch szaniterek, Hansgrohe csaptelepek, magas minőségű hideg- és meleg burkolatok;
- egyedi hőszivattyú, mennyezeti hűtés és padlófűtés;
- igény esetén kiváló referenciákkal rendelkező belső építész segít a lakás egyedi arculatának kialakításában.
A lakások kivitelezője 18 év tapasztalattal rendelkezik tetőterek tervezésében és kivitelezésében, a tetőterek és a Belváros szerelmese, hiszen egyszerre alkot újat és őrzi meg a régit. Tradicionális környezetben teremt - a luxus minden elemével rendelkező - modern otthonokat.
A kerületben 4 helyszínen épít összesen 40 luxus lakást.
Ne szalassza el ezt a kiváló lehetőséget, várom megtisztelő hívását!
Egyedi igényekre szabott lakáshitelekkel állunk rendelkezésére.
Bankfüggetlen hitelcentrumunk az országban elérhető összes bank és hitelintézet ajánlatát versenyezteti az Ön számára díjmentesen.
Munkatársaink nagy szakmai tapasztalattal várják Önt az előre egyeztetett időpontban akár a normál munkaidő után is.
Pár perc sétára van a Zeneakadémia, Operaház, a világörökség részét képező Andrássy út, továbbá a Király utca, ahol számtalan kávézó, étterem, színház, egyéb kulturális és szórakozási lehetőség is megtalálható. Befektetési szempontból is kiváló lehetőségeket rejt a beruházás, hiszen a Nagymező utca szemközti oldalán nyitotta nemrégiben a kapuit a világhírű Hard Rock hálózat új szállodája.
A lakások kialakításánál a legmagasabb igényeket vettük figyelembe. Talán a projekt legkülönlegesebb kialakítású lakása ez a 125,51 nm hasznos alapterületű lakás, melynek alsó szintjére egy tágas előtéren keresztül juthatunk, itt található a lakás nappalija dolgozó sarokkal, az étkezős konyha, hálószoba, az egyik fürdőszoba és a télikert. Az emeletre a nappalin keresztül vezet a lépcső, itt van a galéria a másik fürdőszoba és a gardróbbal ellátott hálószoba.
A két szintes emelet ráépítés keretében összesen 9 db., egy- illetve belső kétszintes, változatos méretű (nettó 37,66-117, nm-es) és elosztású (nappali + 1, 2, 3 hálószobás), teraszos okos otthon épül.
A vételár az alábbiakat tartalmazza:
- InnoSpot Okos Otthon rendszer előkészítése;
- konyhabútor (opcionális);
- Villeroy and Boch szaniterek, Hansgrohe csaptelepek, magas minőségű hideg- és meleg burkolatok;
- egyedi hőszivattyú, mennyezeti hűtés és padlófűtés;
- igény esetén kiváló referenciákkal rendelkező belső építész segít a lakás egyedi arculatának kialakításában.
A lakások kivitelezője 18 év tapasztalattal rendelkezik tetőterek tervezésében és kivitelezésében, a tetőterek és a Belváros szerelmese, hiszen egyszerre alkot újat és őrzi meg a régit. Tradicionális környezetben teremt - a luxus minden elemével rendelkező - modern otthonokat.
A kerületben 4 helyszínen épít összesen 40 luxus lakást.
Ne szalassza el ezt a kiváló lehetőséget, várom megtisztelő hívását!
Egyedi igényekre szabott lakáshitelekkel állunk rendelkezésére.
Bankfüggetlen hitelcentrumunk az országban elérhető összes bank és hitelintézet ajánlatát versenyezteti az Ön számára díjmentesen.
Munkatársaink nagy szakmai tapasztalattal várják Önt az előre egyeztetett időpontban akár a normál munkaidő után is.
Regisztrációs szám
P3629-1-01-04-004
Az ingatlan adatai
Értékesités
eladó
Jogi státusz
új
Jelleg
lakás
Építési mód
tégla
Méret
122,4 m²
Bruttó méret
128,6 m²
Fűtés
megújuló
Belmagasság
290 cm
Lakáson belüli szintszám
2
Tájolás
Észak-nyugat
Panoráma
városi panoráma
Lépcsőház típusa
körfolyosó
Állapot
Kiváló
Homlokzat állapota
Kiváló
Lépcsőház állapota
Kiváló
Környék
központi
Építés éve
2024
Fürdőszobák száma
2
Fekvés
utcai
Víz
Van
Villany
Van
Csatorna
Van
Lift
van
Helyiségek
előszoba
9.59 m²
fürdőszoba-wc
8 m²
konyha-étkező
20.1 m²
szoba
9.12 m²
nappali
27.28 m²
dolgozószoba
5.94 m²
télikert
10.83 m²
galéria
3.71 m²
fürdőszoba-wc
7.51 m²
szoba
17.45 m²
gardrób
2.88 m²