Elérhető Otthon Start hitellel
Eladó újépítésű lakás,
P3605-1-01-04-008
Budapest VII. kerület,
83 700 000 Ft
216 000 €
- 62m²
- 3 szoba
- 4. emelet










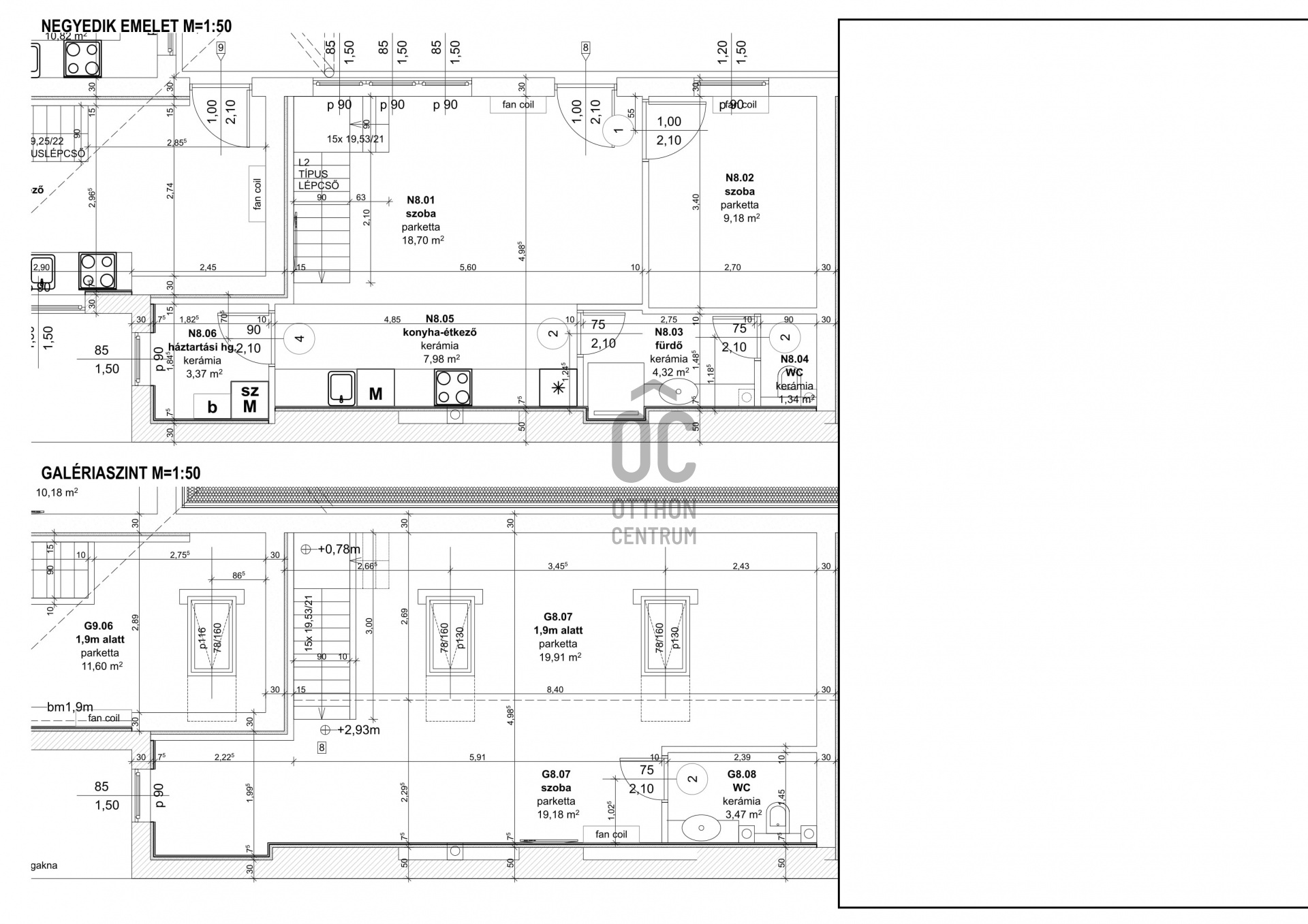
VII.New York Kávéházhoz közel, liftes társasház legfelső 4. emeletén új építésű belső kétszintes lakás eladó.
-nettó 62nm, bruttó 87,4nm.
-alsó szint: 1 nappali, 1 háló, fürdőszoba+Wc, konyha étkezővel, háztartási helyiség,
-emelet: 1 hálószoba, 1 mosdó, gardrób helyiség.
- Igényes kivitelezés,
- hűtő-fűtő klíma,
- csendes, világos
- belső udvari nézet
A közelben minden megtalálható, ami a kényelmes belvárosi életet szolgálja.
#belváros#újépítés#belsőkétszint#3szoba#kedvezőár#modern#jóközlekedés#
-nettó 62nm, bruttó 87,4nm.
-alsó szint: 1 nappali, 1 háló, fürdőszoba+Wc, konyha étkezővel, háztartási helyiség,
-emelet: 1 hálószoba, 1 mosdó, gardrób helyiség.
- Igényes kivitelezés,
- hűtő-fűtő klíma,
- csendes, világos
- belső udvari nézet
A közelben minden megtalálható, ami a kényelmes belvárosi életet szolgálja.
#belváros#újépítés#belsőkétszint#3szoba#kedvezőár#modern#jóközlekedés#
Regisztrációs szám
P3605-1-01-04-008
Az ingatlan adatai
Értékesités
eladó
Jogi státusz
új
Jelleg
lakás
Építési mód
tégla
Méret
62 m²
Bruttó méret
87,8 m²
Fűtés
elektromos fan-coil
Belmagasság
260 cm
Lakáson belüli szintszám
2
Tájolás
Dél-kelet
Lépcsőház típusa
körfolyosó
Állapot
Kiváló
Homlokzat állapota
Kiváló
Lépcsőház állapota
Kiváló
Építés éve
2019
Fürdőszobák száma
1
Fekvés
udvari
Víz
Van
Villany
Van
Csatorna
Van
Lift
van
Helyiségek
szoba
18.21 m²
szoba
9.67 m²
fürdőszoba
4.5 m²
wc
1.18 m²
konyha-étkező
7.8 m²
háztartási helyiség
3.51 m²
szoba
19.57 m²
wc
3.47 m²

Ruczek Krisztina
Hitelszakértő