Elérhető Otthon Start hitellel
Eladó újépítésű lakás,
P3605-1-01-04-001
Budapest VII. kerület,
99 000 000 Ft
255 000 €
- 77m²
- 3 szoba
- 4. emelet










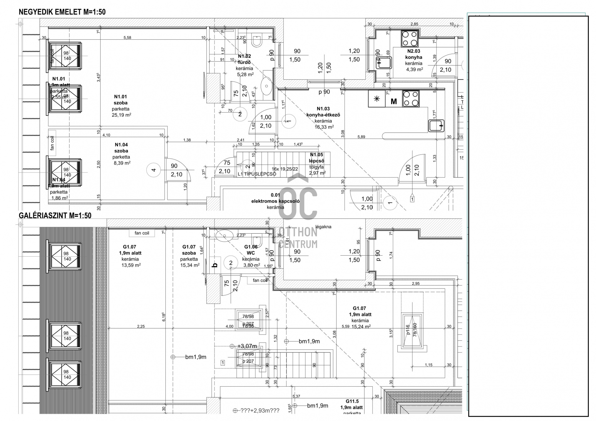
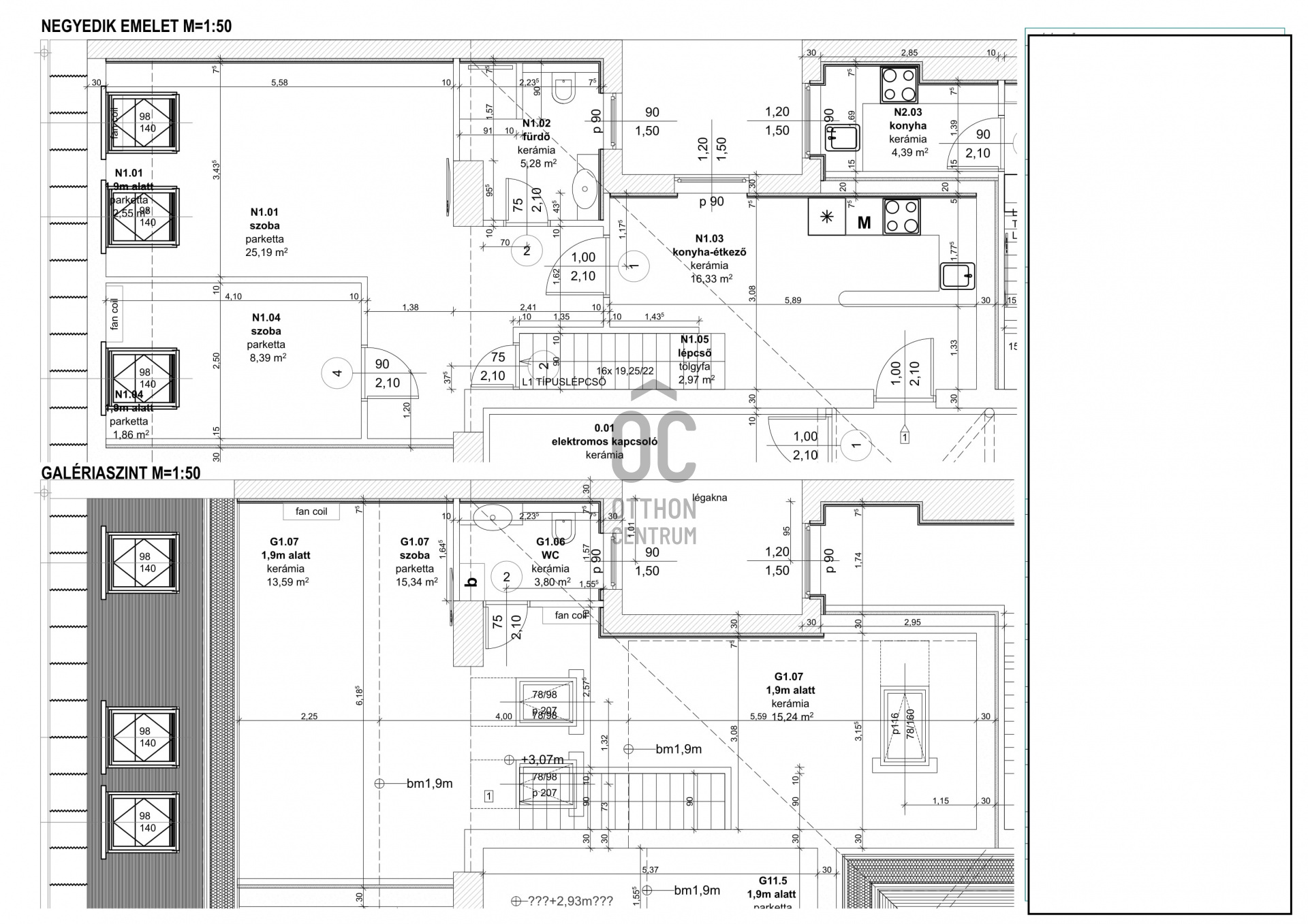
VII. New York Kávéházhoz közel, liftes társasház legfelső 4. emeletén új építésű belső kétszintes lakás eladó.
-nettó 77nm, bruttó 110,5nm.
-alsó szint: 1 nappali, 1 háló, fürdőszoba +Wc, konyha étkezővel,
-emelet: 1 hálószoba, 1 mosdó, gardrób helyiség.
- Igényes kivitelezés,
- hűtő-fűtő klíma,
- csendes, világos
- belső udvari nézet
A közelben minden megtalálható, ami a kényelmes belvárosi életet szolgálja.
#belváros#újépítés#modern#belsőkétszint#csendes#jóközlekedés#3szoba#
-nettó 77nm, bruttó 110,5nm.
-alsó szint: 1 nappali, 1 háló, fürdőszoba +Wc, konyha étkezővel,
-emelet: 1 hálószoba, 1 mosdó, gardrób helyiség.
- Igényes kivitelezés,
- hűtő-fűtő klíma,
- csendes, világos
- belső udvari nézet
A közelben minden megtalálható, ami a kényelmes belvárosi életet szolgálja.
#belváros#újépítés#modern#belsőkétszint#csendes#jóközlekedés#3szoba#
Regisztrációs szám
P3605-1-01-04-001
Az ingatlan adatai
Értékesités
eladó
Jogi státusz
új
Jelleg
lakás
Építési mód
tégla
Méret
77 m²
Bruttó méret
111,7 m²
Fűtés
elektromos fan-coil
Belmagasság
260 cm
Lakáson belüli szintszám
2
Tájolás
Dél-kelet
Lépcsőház típusa
körfolyosó
Állapot
Kiváló
Homlokzat állapota
Kiváló
Lépcsőház állapota
Kiváló
Környék
jó közlekedés
Építés éve
2019
Fürdőszobák száma
1
Fekvés
udvari
Víz
Van
Villany
Van
Csatorna
Van
Lift
van
Helyiségek
szoba
25.19 m²
fürdőszoba
5.44 m²
konyha-étkező
16.77 m²
szoba
8.39 m²
közlekedő
4 m²
wc
3.63 m²
szoba
22.14 m²

Ruczek Krisztina
Hitelszakértő