Elérhető Otthon Start hitellel
Eladó családi ház, OHH179284
Miskolc, Belváros

94 900 000 Ft

243 000 €

  • 333m²
  • 8 szoba
  • földszint
Kiemelt megbízás


Az ELADÓ MISKOLCI CSALÁDI HÁZ jellemzői:
 - Miskolc csendes utcája, "pár lépésre" a városház tértől, az Avasalja utcában található ingatlan
 - 2 emelet + beépített tetőtér
 - a ház egyedi kialakítása akár 3 külön lakás kialakítását teszi lehetővé, külön bejárattal!!!
 - több generáció együttélésére kiválóan alkalmas, de akár társasházzá is alakítható
 - ezt támasztja alá a 3 külön gáz és vízóra is
 - amerikai konyhás, étkezős nappali + 7 szoba, 3 fürdőszobával
 - tégla falazat, részben szigetelve 10 cm vastag szigetelőanyaggal
 - Bramac cserép tető borítás, 5 kW-os napelemmel felszerelve, szigetelt födém és padlásfelület
 - a szobák laminált és hagyományos faparkettásak, minden egyéb helyiség járólapos
 - a falak simára gletteltek, festettek
 - a ház fűtése többszörösen biztosított, szintenként külön gázkazán dolgozik a hatékony fűtésért
 - a megtermelt meleg padlófűtésen és radiátorokon keresztül realizálódik
 - 2006-os felújítás után a villamos vezetékek cseréje is megtörtént, a napelemmel kiegészülve a villanyszámla a nullához  közelít
 - a nyári meleget összesen 5 klíma hivatott enyhíteni
 - a nyílászárók hő és hangszigetelt fa nyílászárók, illetve 2 műanyag ajtó
 - az utcafrontról nyílik a két, akár kifejezetten nagy autó befogadására alkalmas , motorosan nyitható garázs
 - a szobákon kívül belső udvari fedett terasz, utcafronti erkély, mosókonyha, pince, több tároló és kazánház is rendelkezésre áll
 - a családot kényezteti a tetőtérben kialakított finn és infraszauna
 - az udvar lépéstakarékos, könnyen rendben tartható
 - az utca ezen része már ingyenes parkolást biztosít, ha vendégeink érkeznének
 - az ingatlan tehermentes, rengeteg lehetőséget rejt magában akár magánszemélyek, akár befektetők szemével nézve
Jöjjön, nézze meg mihamarabb!

Regisztrációs szám

OHH179284

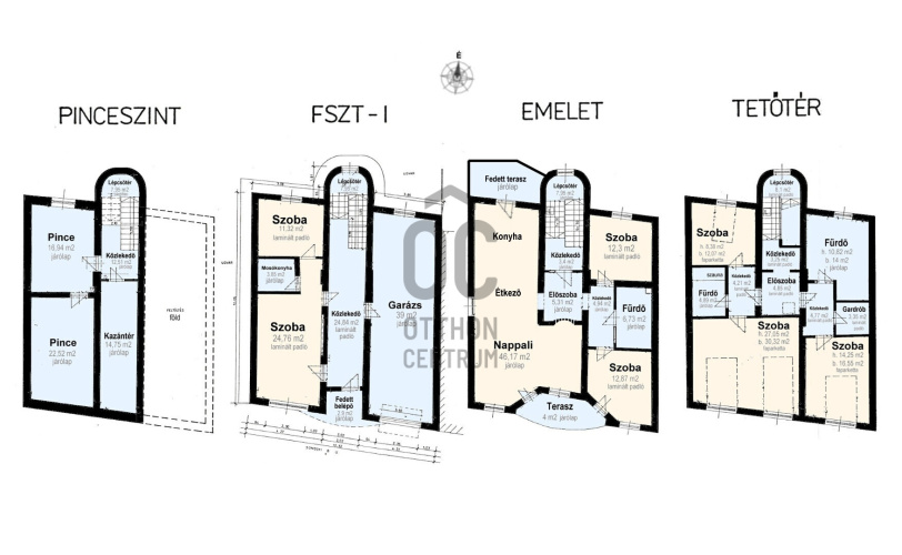
Az ingatlan adatai

Értékesités
eladó
Jogi státusz
használt
Jelleg
ház
Építési mód
tégla
Méret
333 m²
Telek méret
324 m²
Terasz / erkély mérete
13,9 m²
Fűtés
Gáz cirkó
Állapot

Helyiségek

nappali
46.17 m²
szoba
12.3 m²
szoba
12.87 m²
szoba
24.76 m²
szoba
11.32 m²
szoba
27 m²
szoba
14.25 m²
szoba
8.38 m²
fürdőszoba
6.73 m²
fürdőszoba
10.82 m²
egyéb
4.89 m²
háztartási helyiség
3.85 m²
gardrób
3.35 m²
előszoba
5.31 m²
előszoba
4.85 m²
közlekedő
3.4 m²
közlekedő
4.97 m²
közlekedő
24.84 m²
közlekedő
4.77 m²
közlekedő
4.21 m²
közlekedő
3.25 m²
közlekedő
12.51 m²
terasz
4 m²
terasz
2.9 m²
erkély
7 m²
garázs
39 m²
lépcsőház
7.95 m²
lépcsőház
7.95 m²
lépcsőház
7.95 m²
lépcsőház
8.1 m²
háztartási helyiség
14.75 m²
pince
16.94 m²
pince
22.52 m²
Varkolyné Viktória
Varkolyné Viktória

Hitelszakértő

Irodánk kínálatából - Miskolc - Szemere utca

eladó családi ház

Index image
Elérhető Otthon Start hitellel
21

eladó családi ház

Index image
Elérhető Otthon Start hitellel
20

eladó családi ház

Index image
Elérhető Otthon Start hitellel
23

eladó panel lakás

Index image
Elérhető Otthon Start hitellel
18

kiadó lakás

Index image
22

eladó lakás

Index image
Elérhető Otthon Start hitellel
18

eladó lakás

Index image
Elérhető Otthon Start hitellel
22