Elérhető Otthon Start hitellel
Eladó lakás,
H515584
Tatabánya, Óváros
69 900 000 Ft
178 000 €
- 86m²
- 3 szoba
- földszint
Természetközeli nyugalom, elegáns keretek között
Tatabánya Óvárosának csendes, zöldövezeti részén kínálunk egy közel 96 m²-es, kertkapcsolatos lakást – egy otthont, amely méreteiben és hangulatában inkább egy kisebb ház érzetét adja.
A terek arányosak, átgondoltak, finoman őrzik egy igényes, kulturált múlt lenyomatát. A konyha és az üvegezett veranda közötti nagy tálalóablak különleges kapcsolatot teremt: a veranda egész évben használható, természetközeli étkezőként működik, közvetlen kertkapcsolattal.
A jelenlegi nagy hálószoba korábban két helyiség volt, így igény szerint újra osztható.
A fűtést kiváló állapotú öntöttvas radiátorok adják, és klíma is rendelkezésre áll. A nyílászárók használhatók, ugyanakkor a korszerűsítés lehetősége adott.
Saját, közvetlenül a bejárat mellett nyíló tároló tartozik a lakáshoz.
Ez az ingatlan nem csupán lakásként értelmezhető, de családosoknak egy élmény a hatalmas nappalijával.
Terei és hangulata miatt kiváló lehet:
– elegáns irodának, ahol a társsasházi környezet előnyt jelent
– magánrendelőnek
– vagy akár alkotótérnek egy művész számára, ahol a fény, a nyugalom és a tér inspiráló közeget ad-
Az ingatlan reális áron kerül piacra. Festéssel azonnal költözhető, de a mai igényekhez igazítás teret ad az egyéni elképzeléseknek.
A képek látványterveket is tartalmaznak, és az alaprajzok a pontos méreteket mutatják.
Tatabánya Óvárosának csendes, zöldövezeti részén kínálunk egy közel 96 m²-es, kertkapcsolatos lakást – egy otthont, amely méreteiben és hangulatában inkább egy kisebb ház érzetét adja.
A terek arányosak, átgondoltak, finoman őrzik egy igényes, kulturált múlt lenyomatát. A konyha és az üvegezett veranda közötti nagy tálalóablak különleges kapcsolatot teremt: a veranda egész évben használható, természetközeli étkezőként működik, közvetlen kertkapcsolattal.
A jelenlegi nagy hálószoba korábban két helyiség volt, így igény szerint újra osztható.
A fűtést kiváló állapotú öntöttvas radiátorok adják, és klíma is rendelkezésre áll. A nyílászárók használhatók, ugyanakkor a korszerűsítés lehetősége adott.
Saját, közvetlenül a bejárat mellett nyíló tároló tartozik a lakáshoz.
Ez az ingatlan nem csupán lakásként értelmezhető, de családosoknak egy élmény a hatalmas nappalijával.
Terei és hangulata miatt kiváló lehet:
– elegáns irodának, ahol a társsasházi környezet előnyt jelent
– magánrendelőnek
– vagy akár alkotótérnek egy művész számára, ahol a fény, a nyugalom és a tér inspiráló közeget ad-
Az ingatlan reális áron kerül piacra. Festéssel azonnal költözhető, de a mai igényekhez igazítás teret ad az egyéni elképzeléseknek.
A képek látványterveket is tartalmaznak, és az alaprajzok a pontos méreteket mutatják.
Regisztrációs szám
H515584
Az ingatlan adatai
Értékesités
eladó
Jogi státusz
használt
Jelleg
lakás
Építési mód
tégla
Méret
86 m²
Bruttó méret
96 m²
Terasz / erkély mérete
10 m²
Fűtés
távfűtés
Belmagasság
270 cm
Lakáson belüli szintszám
3
Tájolás
Dél-nyugat
Panoráma
Egyéb
Lépcsőház típusa
zárt lépcsőház
Állapot
Átlagos
Homlokzat állapota
Átlagos
Lépcsőház állapota
Átlagos
Környék
csendes, jó közlekedés, zöld, központi
Építés éve
1965
Fürdőszobák száma
1
Fekvés
utcai
Közös költség
13900
Víz
Van
Villany
Van
Csatorna
Van
Kertkapcsolatos
igen
Tároló
Önálló
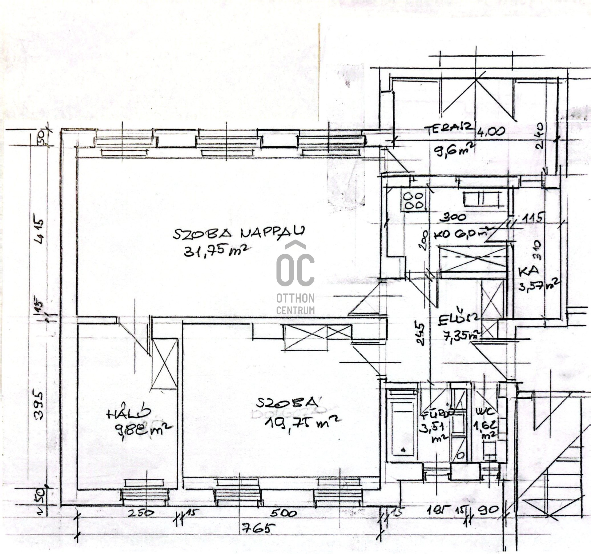
Helyiségek
előszoba
7.35 m²
konyha
6 m²
veranda
9.6 m²
nappali
31.75 m²
hálószoba
9.88 m²
hálószoba
19.75 m²
fürdőszoba
3.51 m²
wc
1.62 m²
kamra
3.75 m²
Sovány Nóra
Hitelszakértő