Eladó családi ház, H514760
Budapest XIV. kerület, Alsórákos

169 900 000 Ft

435 000 €

  • 103m²
  • 3 szoba

Budapest 14. kerületében, Alsórákos csendes és barátságos utcájában kínálom eladásra ezt a 103 négyzetméteres, használt házat, amely ideális választás lehet családok számára, vagy azoknak, akik befektetési céllal keresnek ingatlant. A 521 négyzetméteres telek lehetőséget biztosít a szabadtéri tevékenységekre, kertészkedésre, vagy akár egy kis pihenőhely kialakítására is, ahol a felnőttek és gyerekek egyaránt élvezhetik a szabadban eltöltött időt. A ház 3 szobával és 1 fürdőszobával rendelkezik, amelyek kényelmes teret biztosítanak a mindennapi élethez. A fűtés gáz (cirko) rendszerrel megoldott, amely biztosítja a kellemes hőmérsékletet a hideg téli hónapokban. Az Alsórákos városrész nemcsak a nyugalom szigete, hanem a környék infrastruktúrája is kiemelkedő. A közlekedés szempontjából kiváló elhelyezkedésének köszönhetően könnyen megközelíthetők a város fontosabb pontjai. A tömegközlekedési lehetőségek, mint például a buszjáratok, gyors és kényelmes közlekedést biztosítanak, így a napi ingázás sem jelent problémát. Ezen kívül a környéken található boltok, iskolák és egészségügyi intézmények mind hozzájárulnak ahhoz, hogy a mindennapi élet kényelmesen és gördülékenyen zajlódjon.
Érdeklődés esetén keressen, akár hétvégén is!

Regisztrációs szám

H514760

Az ingatlan adatai

Értékesités
eladó
Jogi státusz
használt
Jelleg
ház
Építési mód
tégla
Méret
103 m²
Bruttó méret
108 m²
Telek méret
521 m²
Fűtés
Gáz cirkó
Belmagasság
270 cm
Tájolás
Észak-kelet
Állapot
Átlagos
Homlokzat állapota
Átlagos
Környék
csendes
Építés éve
1975
Fürdőszobák száma
1
Víz
Van
Gáz
Van
Villany
Van
Csatorna
Van

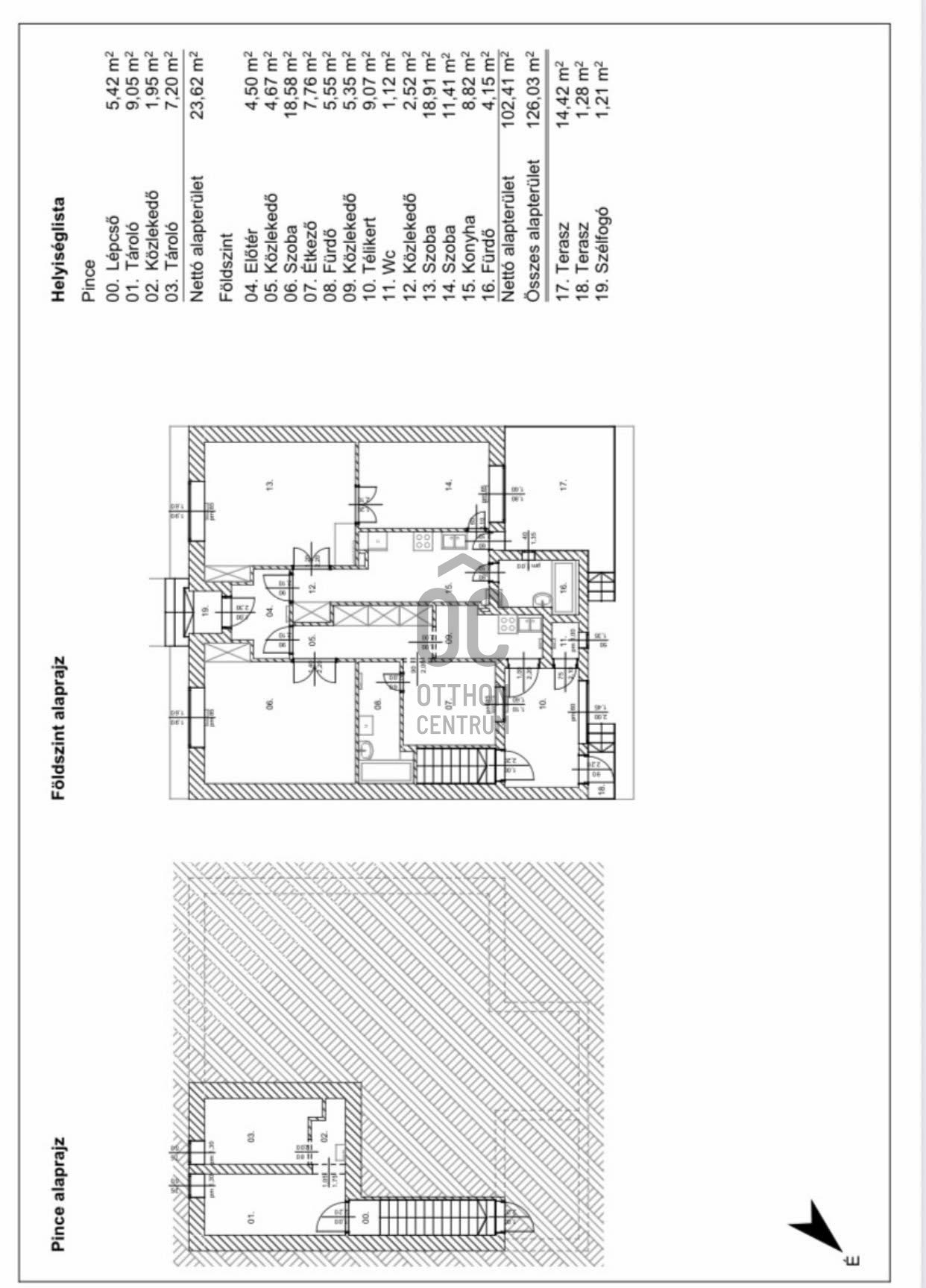
Helyiségek

előszoba
4.5 m²
közlekedő
4.67 m²
szoba
18.587 m²
szoba
18.91 m²
szoba
11.41 m²
wc
4 m²
Németh István
Németh István

Hitelszakértő

Irodánk kínálatából - XIII. kerület - Dagály Residence

eladó lakás

Index image
5

for rent apartment

Index image
19