56 500 000 Ft
151 000 €
- 28,3m²
- 1 szoba
- magasföldszint
CSENDES, BELVÁROSI, ERKÉLYES GARZON!
Megtaláltad első lakásodat egy olyan helyen, ahol a városi élet pezsgése és a csendes pihenés tökéletes harmóniában találkozik.
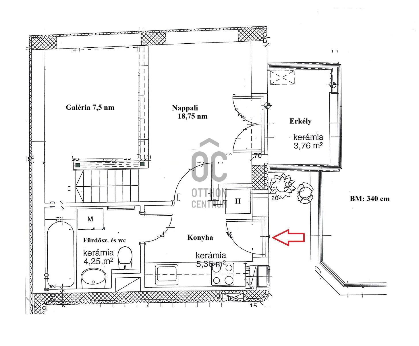
Ez a 28.36 nm-es, egy szobás + 7,5 nm-es galériás lakás Budapest 09. kerületének Középső Ferencváros részén várja új tulajdonosát.
A lakás jó állapotú a beépített bútorok és szekrények révén maximálisan kihasználhatod a teret.
Az ingatlan a nettó területén felül 3.76 nm-es erkéllyel rendelkezik, amely egy hangulatos, növényekkel teli belső udvarra néz.
A társasház nagyon jó állapotú, rendezett és karbantartott, 2007-ben épült.
A házközponti fűtés egyedi méréssel működik, így mindig a legoptimálisabb hőmérsékletet biztosítja számodra.
Közös költség 22.000 Ft, mely magába foglalja a felújítási alapot, szemét díjat, takarítást, közös terek világítását és a közös képviselet díjazását is.
Belmagasság 340 cm, a galéria magassága 150 cm.
A lakás tehermentes, így a vásárlás folyamata gyors és zökkenőmentes lehet.
A környék ellátottsága kiváló, hiszen számos bolt, étterem és szolgáltatás a közvetlen közelben található. A belvárosi elhelyezkedés lehetővé teszi, hogy mindent könnyedén elérj, legyen szó munkáról vagy szórakozásról.
A közlekedési csomópont közelsége (Corvin-negyed) miatt a kitűnő közlekedés garantált, így akár autóval, akár tömegközlekedéssel könnyedén elérheted a város bármely pontját.
A csendes környék lehetőséget biztosít arra, hogy a város nyüzsgésétől távol, mégis közel élhess. Itt nemcsak a mindennapi élet kényelme, hanem a biztonság is garantált.
Ez a lakás ideális választás lehet első lakásvásárlók számára, akik szeretnének egy olyan otthont, ahol a városi élet minden előnye elérhető, de a nyugalom is garantált.
Illetve befektetésnek is remek vétel egyetemek közelsége miatt.
Ha bármilyen kérdésed van, vagy szeretnéd megtekinteni ezt a remek lehetőséget, akkor várom megkeresésedet hétköznap és szombaton is!
Ez a 28.36 nm-es, egy szobás + 7,5 nm-es galériás lakás Budapest 09. kerületének Középső Ferencváros részén várja új tulajdonosát.
A lakás jó állapotú a beépített bútorok és szekrények révén maximálisan kihasználhatod a teret.
Az ingatlan a nettó területén felül 3.76 nm-es erkéllyel rendelkezik, amely egy hangulatos, növényekkel teli belső udvarra néz.
A társasház nagyon jó állapotú, rendezett és karbantartott, 2007-ben épült.
A házközponti fűtés egyedi méréssel működik, így mindig a legoptimálisabb hőmérsékletet biztosítja számodra.
Közös költség 22.000 Ft, mely magába foglalja a felújítási alapot, szemét díjat, takarítást, közös terek világítását és a közös képviselet díjazását is.
Belmagasság 340 cm, a galéria magassága 150 cm.
A lakás tehermentes, így a vásárlás folyamata gyors és zökkenőmentes lehet.
A környék ellátottsága kiváló, hiszen számos bolt, étterem és szolgáltatás a közvetlen közelben található. A belvárosi elhelyezkedés lehetővé teszi, hogy mindent könnyedén elérj, legyen szó munkáról vagy szórakozásról.
A közlekedési csomópont közelsége (Corvin-negyed) miatt a kitűnő közlekedés garantált, így akár autóval, akár tömegközlekedéssel könnyedén elérheted a város bármely pontját.
A csendes környék lehetőséget biztosít arra, hogy a város nyüzsgésétől távol, mégis közel élhess. Itt nemcsak a mindennapi élet kényelme, hanem a biztonság is garantált.
Ez a lakás ideális választás lehet első lakásvásárlók számára, akik szeretnének egy olyan otthont, ahol a városi élet minden előnye elérhető, de a nyugalom is garantált.
Illetve befektetésnek is remek vétel egyetemek közelsége miatt.
Ha bármilyen kérdésed van, vagy szeretnéd megtekinteni ezt a remek lehetőséget, akkor várom megkeresésedet hétköznap és szombaton is!
Regisztrációs szám
H514074
Az ingatlan adatai
Értékesités
eladó
Jogi státusz
használt
Jelleg
lakás
Építési mód
tégla
Méret
28,3 m²
Bruttó méret
32 m²
Terasz / erkély mérete
3,7 m²
Fűtés
központi fűtés
Belmagasság
340 cm
Lakáson belüli szintszám
1
Tájolás
Dél
Lépcsőház típusa
függőfolyosó
Állapot
Jó
Homlokzat állapota
Kiváló
Lépcsőház állapota
Jó
Környék
csendes, jó közlekedés, központi
Építés éve
2007
Fürdőszobák száma
1
Fekvés
kertre néző
Víz
Van
Villany
Van
Csatorna
Van
Lift
van
Helyiségek
nappali
18.75 m²
konyha
5.36 m²
fürdőszoba-wc
4.25 m²
galéria
8 m²
erkély
3.76 m²
Ruczek János
Hitelszakértő