194 900 000 Ft
497 000 €
- 119,4m²
- 4 szoba
PANORÁMÁS, MODERN, LETISZTULT CSALÁDI OTTHON
Képzeld el, hogy egy olyan otthonra lelsz, amely nemcsak a kényelmet, hanem a modern életstílust is tükrözi!
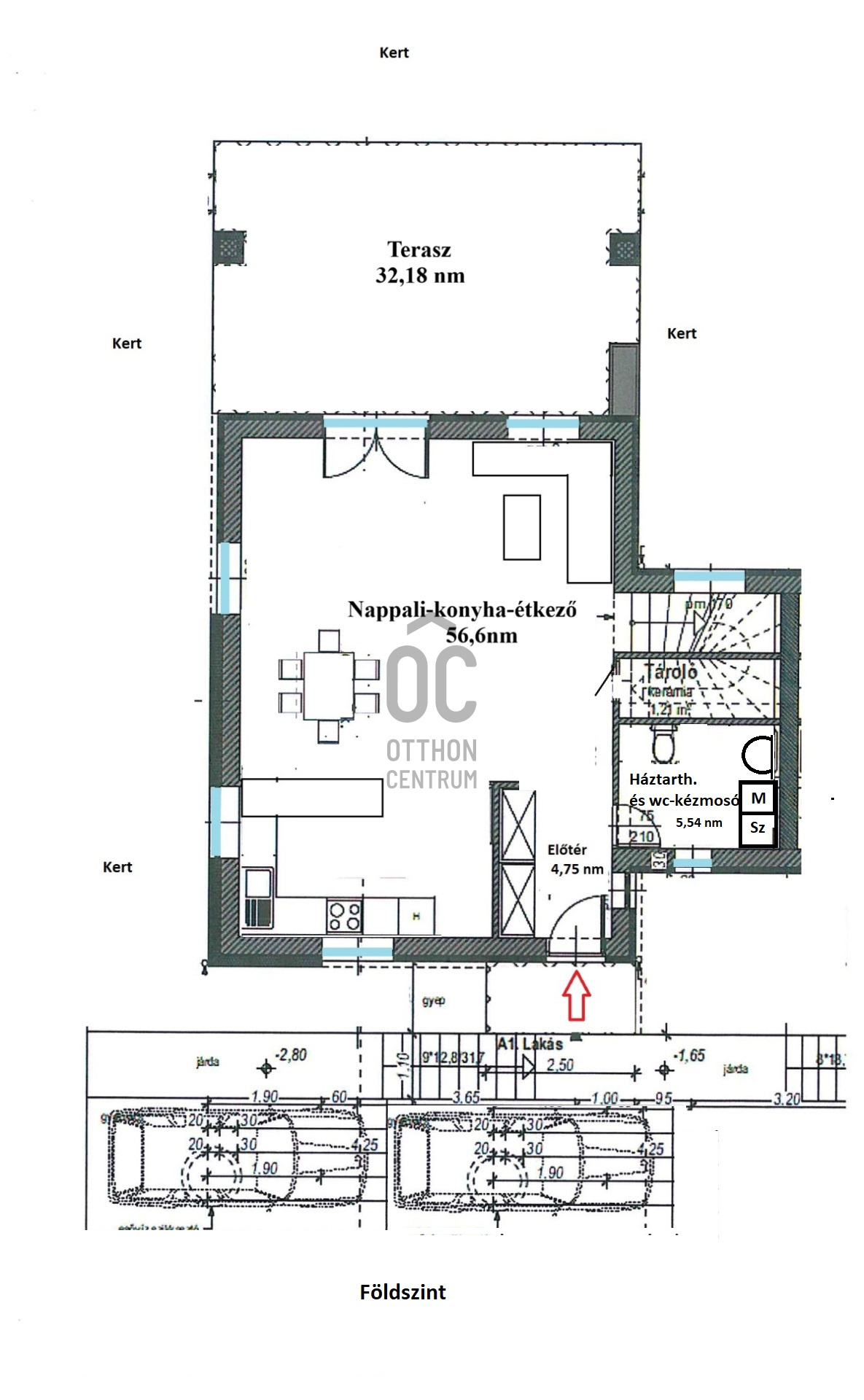
Törökbálint szívében, a felkapott Tükörhegy városrészben kínálok eladásra egy 120 nm-es, kiváló állapotú , 2021-es építésű, két szintes ikerház jellegű társasházi lakás, amely tökéletes választás lehet számodra.
A házhoz 183 nm-es saját használatú kert tartozik, így elegendő hely áll rendelkezésedre a pihenéshez és a szórakozáshoz egyaránt.
Ez a gyönyörű otthon 4 szobával rendelkezik, melyek között egy tágas nappali is található, ahol barátaiddal és családoddal töltheted el az időt. Fűtése egyedi cirkós, földszinten padlófűtéssel, emeleten radiátoros hőleadókkal.
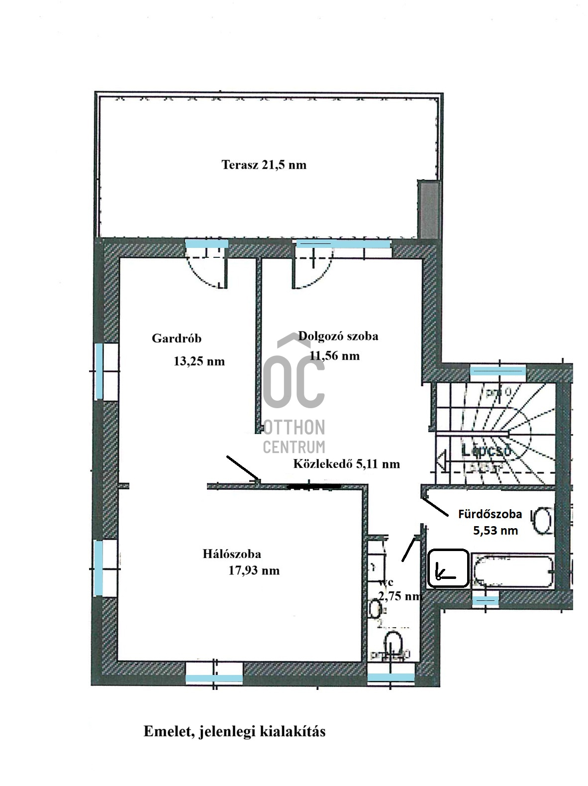
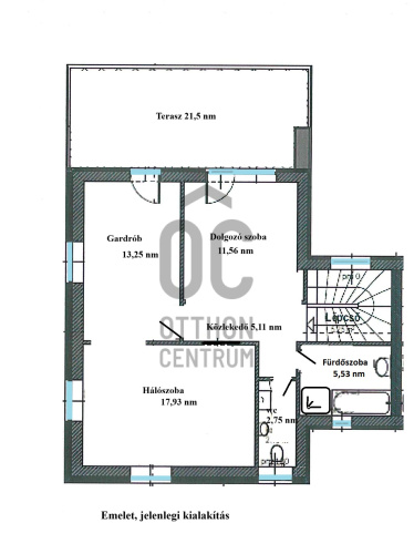
Az ingatlan egyik különlegessége a földszinten lévő 32.18 nm-es terasz és az emeleten lévő 21.45 nm-es terasz, ahonnan csodás panorámás kilátás nyílik a környékre.
A ház prémium kivitelezésű, és mindezt egy rendezett kert egészíti ki, amely automata öntözőrendszerrel, fűszerkerttel, grillező hellyel ellátott, valamint kerti tárolásra hely is kialakított.
Az 5 fős jakuzzi a kertben egy igazán exkluzív élményt nyújt, ahol a pihenés és a feltöltődés garantált.
A környék csendes, biztonságos, és remek közlekedési lehetőségekkel rendelkezik. Az autóval könnyen megközelítheted a főbb útvonalakat, míg a tömegközlekedés is jó, így a város bármely pontja gyorsan elérhető. Törökbálint nemcsak a fiatalok, hanem a családok körében is népszerű választás, hiszen számos, bolt és szórakozási lehetőség található a közelben.
Extrák, amelyek a mindennapi életed kényelmét szolgálják: padlófűtés, riasztórendszer, 3db hűtő–fűtő klíma, elektromos redőnyök- szúnyoghálóval, öntözőrendszer, jakuzzi, zuhany és kád is, 2db felszíni autóbeálló, 3 fázis bevezetve, elektromos autó töltő kiépíthető.
Vételár részét képezi az összes beépített bútor és beépített műszaki felszerelés is, 3db hűtő–fűtő klíma, csillárok, lámpatestek és a jakuzzi is.
Minden más bútor és műszaki felszerelés külön megállapodás tárgyát képezi, ha szükség van rájuk.
Ha egy modern, világos és tágas otthonra vágysz, amely minden igényt kielégít, ne habozz!
Ez a tehermentes ingatlan tökéletes választás lehet számodra, legyen szó saját ingatlanról vagy befektetési céllal való vásárlásról.
Az ingatlan ára: 194,9 MFt
2db autóbeálló mely megvásárolandó,darabja 2,5 MFt az ingatlan vételárán felül.
Bármilyen kérdésed van, bizalommal kereshetsz, szívesen segítek neked megtalálni az álmaid otthonát!
(Jelenleg nappali + dolgozószoba + hálószoba-gardrób kialakítású, viszont a tulajdonos vállalja, hogy ha kell visszaalakítja nappali+ 3 hálóssá) Van fotó feltöltve az eredeti emeleti alaprajzról is.
Törökbálint szívében, a felkapott Tükörhegy városrészben kínálok eladásra egy 120 nm-es, kiváló állapotú , 2021-es építésű, két szintes ikerház jellegű társasházi lakás, amely tökéletes választás lehet számodra.
A házhoz 183 nm-es saját használatú kert tartozik, így elegendő hely áll rendelkezésedre a pihenéshez és a szórakozáshoz egyaránt.
Ez a gyönyörű otthon 4 szobával rendelkezik, melyek között egy tágas nappali is található, ahol barátaiddal és családoddal töltheted el az időt. Fűtése egyedi cirkós, földszinten padlófűtéssel, emeleten radiátoros hőleadókkal.
Az ingatlan egyik különlegessége a földszinten lévő 32.18 nm-es terasz és az emeleten lévő 21.45 nm-es terasz, ahonnan csodás panorámás kilátás nyílik a környékre.
A ház prémium kivitelezésű, és mindezt egy rendezett kert egészíti ki, amely automata öntözőrendszerrel, fűszerkerttel, grillező hellyel ellátott, valamint kerti tárolásra hely is kialakított.
Az 5 fős jakuzzi a kertben egy igazán exkluzív élményt nyújt, ahol a pihenés és a feltöltődés garantált.
A környék csendes, biztonságos, és remek közlekedési lehetőségekkel rendelkezik. Az autóval könnyen megközelítheted a főbb útvonalakat, míg a tömegközlekedés is jó, így a város bármely pontja gyorsan elérhető. Törökbálint nemcsak a fiatalok, hanem a családok körében is népszerű választás, hiszen számos, bolt és szórakozási lehetőség található a közelben.
Extrák, amelyek a mindennapi életed kényelmét szolgálják: padlófűtés, riasztórendszer, 3db hűtő–fűtő klíma, elektromos redőnyök- szúnyoghálóval, öntözőrendszer, jakuzzi, zuhany és kád is, 2db felszíni autóbeálló, 3 fázis bevezetve, elektromos autó töltő kiépíthető.
Vételár részét képezi az összes beépített bútor és beépített műszaki felszerelés is, 3db hűtő–fűtő klíma, csillárok, lámpatestek és a jakuzzi is.
Minden más bútor és műszaki felszerelés külön megállapodás tárgyát képezi, ha szükség van rájuk.
Ha egy modern, világos és tágas otthonra vágysz, amely minden igényt kielégít, ne habozz!
Ez a tehermentes ingatlan tökéletes választás lehet számodra, legyen szó saját ingatlanról vagy befektetési céllal való vásárlásról.
Az ingatlan ára: 194,9 MFt
2db autóbeálló mely megvásárolandó,darabja 2,5 MFt az ingatlan vételárán felül.
Bármilyen kérdésed van, bizalommal kereshetsz, szívesen segítek neked megtalálni az álmaid otthonát!
(Jelenleg nappali + dolgozószoba + hálószoba-gardrób kialakítású, viszont a tulajdonos vállalja, hogy ha kell visszaalakítja nappali+ 3 hálóssá) Van fotó feltöltve az eredeti emeleti alaprajzról is.
Regisztrációs szám
H513914
Az ingatlan adatai
Értékesités
eladó
Jogi státusz
használt
Jelleg
ház
Építési mód
tégla
Méret
119,4 m²
Bruttó méret
150 m²
Telek méret
250 m²
Terasz / erkély mérete
53,6 m²
Kert méret
183 m²
Fűtés
Gáz cirkó
Belmagasság
275 cm
Lakáson belüli szintszám
2
Tájolás
Dél-nyugat
Állapot
Kiváló
Homlokzat állapota
Kiváló
Környék
csendes, jó közlekedés, központi
Építés éve
2021
Fürdőszobák száma
1
Társaház kert
igen
Víz
Van
Villany
Van
Csatorna
Van
Tároló
Önálló
Helyiségek
nappali-konyha
56.6 m²
előszoba
4.75 m²
háztartási helyiség
5.54 m²
tároló
1.2 m²
lépcsőház
5.25 m²
hálószoba
13.25 m²
hálószoba
11.56 m²
hálószoba
17.93 m²
közlekedő
5.11 m²
fürdőszoba
5.53 m²
wc-kézmosó
2.75 m²
terasz
32.18 m²
terasz
21.5 m²
Ruczek János
Hitelszakértő