Elérhető Otthon Start hitellel
Eladó családi ház,
H513576
Tiszafüred
47 000 000 Ft
124 000 €
- 131m²
- 3 szoba
In Tiszafüred, 700 meters from the shore of Lake Tisza, a three-bedroom family house is for sale
Tiszafüred is a town located in the Northern Great Plain region, in the Tiszafüred district of Jász-Nagykun-Szolnok County. It is the center of the Tisza Lake tourism region, known as the capital of Tisza Lake. Due to the demand and turnover of properties, the media also refers to it as the New Balaton.
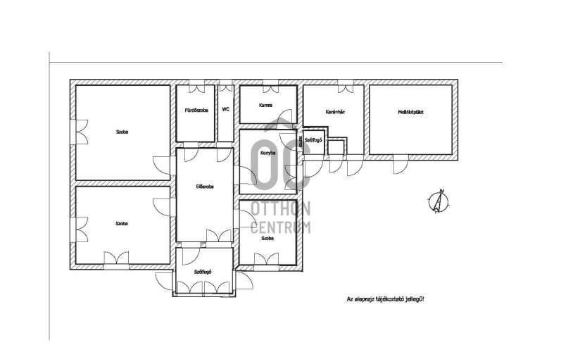
- The house is a property built on a concrete foundation with a silicate brick structure in excellent structural condition. It includes 3 rooms, a kitchen, a bathroom, a toilet, a pantry, a vestibule, and a spacious entrance that can be used as a living room.
- The 1448 sqm plot also accommodates outbuildings that are suitable for farming.
- The building has central heating, which was renovated two years ago. Heating can be provided by a gas boiler, a solid fuel boiler, or an electric boiler, as all three types are available in the building.
- The bathroom and toilet were also renovated two years ago and received new tiling. Underfloor heating has been installed, and an economical heat pump boiler has also been set up.
- The windows have new shutters installed two years ago, and the room windows are equipped with thermal glazing.
- The property has a camera system installed.
- There is also a drilled well in the yard.
If you need a larger area or a plot where a new family house can be built, please contact me, as the owner is also looking to sell the adjacent building plot. The size of the plot is similar to the property offered for sale.
If I have piqued your interest, please feel free to reach out.
I am readily available to answer your questions and assist you in making the right decision.
- The house is a property built on a concrete foundation with a silicate brick structure in excellent structural condition. It includes 3 rooms, a kitchen, a bathroom, a toilet, a pantry, a vestibule, and a spacious entrance that can be used as a living room.
- The 1448 sqm plot also accommodates outbuildings that are suitable for farming.
- The building has central heating, which was renovated two years ago. Heating can be provided by a gas boiler, a solid fuel boiler, or an electric boiler, as all three types are available in the building.
- The bathroom and toilet were also renovated two years ago and received new tiling. Underfloor heating has been installed, and an economical heat pump boiler has also been set up.
- The windows have new shutters installed two years ago, and the room windows are equipped with thermal glazing.
- The property has a camera system installed.
- There is also a drilled well in the yard.
If you need a larger area or a plot where a new family house can be built, please contact me, as the owner is also looking to sell the adjacent building plot. The size of the plot is similar to the property offered for sale.
If I have piqued your interest, please feel free to reach out.
I am readily available to answer your questions and assist you in making the right decision.
Regisztrációs szám
H513576
Az ingatlan adatai
Értékesités
eladó
Jogi státusz
használt
Jelleg
ház
Építési mód
szilikát
Méret
131 m²
Bruttó méret
150 m²
Telek méret
1 448 m²
Fűtés
Gáz cirkó
Belmagasság
284 cm
Tájolás
Nyugat
Állapot
Átlagos
Homlokzat állapota
Átlagos
Környék
csendes, zöld
Építés éve
1985
Fürdőszobák száma
1
Víz
Van
Gáz
Van
Villany
Van
Csatorna
Van
Tároló
Önálló
Helyiségek
szoba
20.25 m²
szoba
25 m²
szoba
10.2 m²
konyha
10.2 m²
fürdőszoba
5.85 m²
wc
2.55 m²
kamra
6 m²
előszoba
1.4 m²
tároló
17.5 m²
tároló
12.4 m²
tároló
12.4 m²
előszoba
7.2 m²
Pomaházi Pál
Hitelszakértő