129 500 000 Ft
344 000 €
- 98m²
- 3 szoba
- magasföldszint
Discover your dream home in Nagyzugló – a 3-room apartment awaits you!
CSOK-ELIGIBLE 98 SQM FAMILY APARTMENT IN A 6-UNIT BUILDING – 5 MINUTES FROM ÖRS VEZÉR SQUARE
We offer for sale a 98 sqm, raised ground-floor apartment with an excellent layout, located just a 5-minute walk from Örs Vezér Square. The property is an ideal choice for larger families, families with multiple children, or those working from home.
The apartment is situated in a continuously maintained building designed by an engineer, consisting of only 6 residential units, ensuring a quiet and friendly residential environment. The building is currently being converted into a condominium; however, the apartments already have separate land registry numbers, making the property eligible for CSOK (Hungarian family housing support) and other subsidized loan programs.
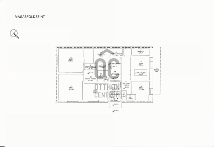
???? Main features of the apartment (based on the floor plan):
98 sqm of living space
3 large, separate rooms (approx. 25 sqm, 24 sqm, and 16 sqm)
Spacious kitchen–dining area of nearly 17 sqm
Separate bathroom
Separate toilet
well-separated living and private areas
bright rooms with excellent furnishing potential
The layout allows for the creation of a comfortable living room with multiple bedrooms, making it a highly livable, long-term family home.
Shared spaces and storage:
basement bicycle and stroller storage
shared storage room
community space available for residents
Parking:
⚠️ An inner courtyard parking space must be purchased together with the apartment, providing secure and convenient parking. Price is 1,5 M Ft
Possession:
Move-in possible within 2 months
Renovation / customization:
If desired, a reliable and experienced contractor is available to assist with renovation or layout modifications tailored to the new owner’s needs.
Location – ideal for families:
M2 metro line, HÉV suburban railway, and multiple bus lines within minutes
shopping centers, schools, kindergartens, and healthcare facilities nearby
excellent infrastructure in a calm residential setting
This property is an excellent opportunity for those seeking a CSOK-eligible, spacious, and comfortable family home in a small-scale residential building, with outstanding transport connections.
For further information or to arrange a viewing, please feel free to contact us.
We offer for sale a 98 sqm, raised ground-floor apartment with an excellent layout, located just a 5-minute walk from Örs Vezér Square. The property is an ideal choice for larger families, families with multiple children, or those working from home.
The apartment is situated in a continuously maintained building designed by an engineer, consisting of only 6 residential units, ensuring a quiet and friendly residential environment. The building is currently being converted into a condominium; however, the apartments already have separate land registry numbers, making the property eligible for CSOK (Hungarian family housing support) and other subsidized loan programs.
???? Main features of the apartment (based on the floor plan):
98 sqm of living space
3 large, separate rooms (approx. 25 sqm, 24 sqm, and 16 sqm)
Spacious kitchen–dining area of nearly 17 sqm
Separate bathroom
Separate toilet
well-separated living and private areas
bright rooms with excellent furnishing potential
The layout allows for the creation of a comfortable living room with multiple bedrooms, making it a highly livable, long-term family home.
Shared spaces and storage:
basement bicycle and stroller storage
shared storage room
community space available for residents
Parking:
⚠️ An inner courtyard parking space must be purchased together with the apartment, providing secure and convenient parking. Price is 1,5 M Ft
Possession:
Move-in possible within 2 months
Renovation / customization:
If desired, a reliable and experienced contractor is available to assist with renovation or layout modifications tailored to the new owner’s needs.
Location – ideal for families:
M2 metro line, HÉV suburban railway, and multiple bus lines within minutes
shopping centers, schools, kindergartens, and healthcare facilities nearby
excellent infrastructure in a calm residential setting
This property is an excellent opportunity for those seeking a CSOK-eligible, spacious, and comfortable family home in a small-scale residential building, with outstanding transport connections.
For further information or to arrange a viewing, please feel free to contact us.
Regisztrációs szám
H513358
Az ingatlan adatai
Értékesités
eladó
Jogi státusz
használt
Jelleg
lakás
Építési mód
tégla
Méret
98 m²
Bruttó méret
103 m²
Fűtés
Gáz cirkó
Belmagasság
360 cm
Tájolás
Dél-kelet
Lépcsőház típusa
zárt lépcsőház
Állapot
Jó
Homlokzat állapota
Kiváló
Lépcsőház állapota
Jó
Környék
jó közlekedés, zöld, központi
Építés éve
1970
Fürdőszobák száma
1
Fekvés
kertre néző
Víz
Van
Gáz
Van
Villany
Van
Csatorna
Van
Tároló
Közös
Helyiségek
közlekedő
3.4 m²
konyha-étkező
16.7 m²
fürdőszoba
7.5 m²
wc
2.9 m²
wc-kézmosó
1.6 m²
szoba
16.4 m²
szoba
25.5 m²
szoba
23.8 m²
Ruczek Krisztina
Hitelszakértő