Elérhető Otthon Start hitellel
Eladó panel lakás,
H512766
Budapest XI. kerület, Őrmező, Igmándi utca
74 500 000 Ft
196 000 €
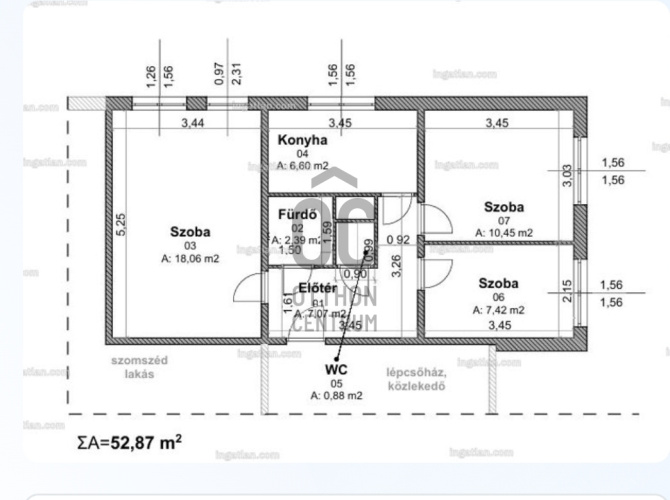
- 53m²
- 3 szoba
- 4. emelet
Discover your new home in the heart of Őrmező – a spacious 3-room apartment is waiting for you!
For Sale - Apartment in the 11th District, ÖrmezőSpacious, ACCESSIBLE 53 square meter apartment for sale in the Örmező area.An ideal choice for families or young couples!
Area: 53 m²
Rooms: 2 bedrooms + large living room
Floor: 8th floor
Heating: District heating with individual meters
Air Conditioning: Yes
Features:
Renovated electrical wiring
Plastic windows
Bathtub, separate toilet
The building and the apartment are both accessible
Neighborhood:
Excellent transportation options (public transport and car access)
Shops, restaurants, and schools nearby
Green areas and playgrounds
Contact:
Don’t miss out on this great opportunity; I look forward to hearing from interested buyers!
Area: 53 m²
Rooms: 2 bedrooms + large living room
Floor: 8th floor
Heating: District heating with individual meters
Air Conditioning: Yes
Features:
Renovated electrical wiring
Plastic windows
Bathtub, separate toilet
The building and the apartment are both accessible
Neighborhood:
Excellent transportation options (public transport and car access)
Shops, restaurants, and schools nearby
Green areas and playgrounds
Contact:
Don’t miss out on this great opportunity; I look forward to hearing from interested buyers!
Regisztrációs szám
H512766
Az ingatlan adatai
Értékesités
eladó
Jogi státusz
használt
Jelleg
lakás
Építési mód
panel
Méret
53 m²
Bruttó méret
55 m²
Fűtés
egyedi távfűtés
Belmagasság
260 cm
Lakáson belüli szintszám
1
Tájolás
Kelet
Lépcsőház típusa
zárt lépcsőház
Állapot
Átlagos
Homlokzat állapota
Átlagos
Lépcsőház állapota
Átlagos
Építés éve
1976
Fürdőszobák száma
1
Fekvés
utcai
Közös költség
12650
Víz
Van
Villany
Van
Csatorna
Van
Lift
van
Tároló
Közös
Helyiségek
nappali
18 m²
közlekedő
11.8 m²
szoba
10.45 m²
szoba
7.42 m²
fürdőszoba
2.4 m²
wc
0.9 m²
konyha
6.6 m²