248 000 000 Ft
652 000 €
- 102m²
- 3 szoba
- 3. emelet
Panoramic Duplex Above Városmajor Park – Thoughtfully Designed Space, Enduring Value
Light-filled spaces, green-facing mornings, and a home that offers both momentum and calm. Welcome home!
BRIEF SUMMARY
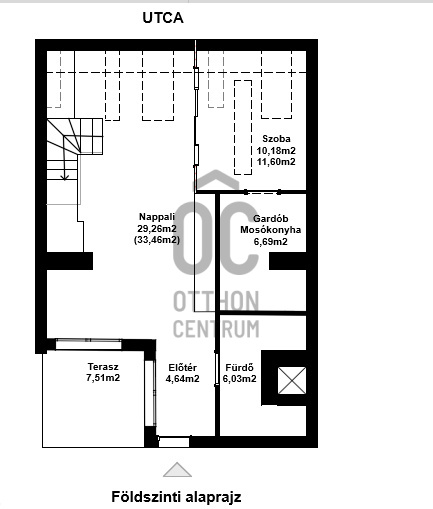
Located in Budapest’s 2nd district, near Városmajor Park on Ignotus Street, this 102 sqm duplex apartment with a 7 sqm terrace occupies the top floor of a renovated, classic, elevator-equipped residential building. The apartment was created in 2018 as a rooftop addition and comes with a practical basement storage unit.
LOCATION
The apartment is situated in Budapest’s 2nd district, in the immediate vicinity of Városmajor, where urban infrastructure and green surroundings exist in rare balance. Városmajor Park is just a few steps away, making daily access to nature effortless, while Széll Kálmán Square can be reached within a short walk.
The area offers excellent public transport connections, including Metro Line M2, trams, and buses. The services of Mammut Shopping Center are also within walking distance. Proximity to the Buda Castle District further enhances the long-term value and livability of this location.
THE APARTMENT
With its two-level (duplex) layout, spacious and airy interiors, and terrace, this home was created in 2018 through a rooftop extension, featuring thoughtful design, clear spatial structure, and well-proportioned layouts.
High ceilings and large windows allow natural light to flow throughout the day, bringing clarity, energy, and openness to every part of the apartment—especially the open-plan living–dining–kitchen area on the lower level.
The lower floor forms a living space where movement feels natural, togetherness comes easily, and decisions are effortless. The fully equipped modern kitchen connects logically to the dining and living areas, making the space both efficient and welcoming.
A wood-burning fireplace serves as a warm focal point, adding character and atmosphere while keeping the living area equally suitable for entertaining or for quieter evenings at home.
A glass-partitioned room functions perfectly as a guest bedroom or home office—separate yet visually connected, adapting flexibly to changing life situations. This level also features a shower bathroom with underfloor heating and bidet, as well as a separate utility/storage room, contributing order, control, and everyday comfort. Upstairs, the atmosphere clearly shifts toward retreat and focus. Beyond the gallery-style workspace lies the bedroom, offering panoramic views over the greenery of Városmajor and the Buda Hills—a perspective that is both inspiring and calming.
A walk-in wardrobe and a second windowed bathroom with shower define the private zone clearly, while the sense of openness remains intact.
Throughout the apartment, oak parquet flooring provides a timeless, natural foundation, harmonizing beautifully with the bathrooms’ clean, modern finishes. Daily comfort is ensured by gas underfloor heating, one air-conditioning unit per level, electric shutters, and motorized roof windows—everything needed, without unnecessary excess. A basement storage unit, alarm system, and intercom with door-opening function ensure security and predictability, while the home functions confidently as a coherent, well-designed system.
- The atmosphere, proportions, and true character of this apartment are best experienced through the video.
We highly recommend watching the property video, as it captures the spatial flow, natural light, and overall ambience far more accurately than photos alone.
- What is included in the purchase price:
The purchase price includes only the built-in furniture and built-in appliances.
All other items located in the property – including non-built-in appliances, lighting fixtures, furniture, and decorative elements – may be purchased subject to a separate agreement.
If you are looking for a home that is livable, thoughtfully designed, and retains its value over the long term, this apartment is well worth experiencing in person. Please contact us to arrange a viewing.
----------------------------------------------
We provide free, bank-independent mortgage advisory services to support our buyers in making the most favorable financing decisions. Optional additional services—such as legal assistance, energy certification, or electrical safety inspection—are available to ensure full professional support throughout every step of the transaction process.
-----------------------------------------------
The information in this listing is for informational purposes only. We reserve the right to make changes and correct errors. We do not accept liability for typographical or technical inaccuracies.
BRIEF SUMMARY
Located in Budapest’s 2nd district, near Városmajor Park on Ignotus Street, this 102 sqm duplex apartment with a 7 sqm terrace occupies the top floor of a renovated, classic, elevator-equipped residential building. The apartment was created in 2018 as a rooftop addition and comes with a practical basement storage unit.
LOCATION
The apartment is situated in Budapest’s 2nd district, in the immediate vicinity of Városmajor, where urban infrastructure and green surroundings exist in rare balance. Városmajor Park is just a few steps away, making daily access to nature effortless, while Széll Kálmán Square can be reached within a short walk.
The area offers excellent public transport connections, including Metro Line M2, trams, and buses. The services of Mammut Shopping Center are also within walking distance. Proximity to the Buda Castle District further enhances the long-term value and livability of this location.
THE APARTMENT
With its two-level (duplex) layout, spacious and airy interiors, and terrace, this home was created in 2018 through a rooftop extension, featuring thoughtful design, clear spatial structure, and well-proportioned layouts.
High ceilings and large windows allow natural light to flow throughout the day, bringing clarity, energy, and openness to every part of the apartment—especially the open-plan living–dining–kitchen area on the lower level.
The lower floor forms a living space where movement feels natural, togetherness comes easily, and decisions are effortless. The fully equipped modern kitchen connects logically to the dining and living areas, making the space both efficient and welcoming.
A wood-burning fireplace serves as a warm focal point, adding character and atmosphere while keeping the living area equally suitable for entertaining or for quieter evenings at home.
A glass-partitioned room functions perfectly as a guest bedroom or home office—separate yet visually connected, adapting flexibly to changing life situations. This level also features a shower bathroom with underfloor heating and bidet, as well as a separate utility/storage room, contributing order, control, and everyday comfort. Upstairs, the atmosphere clearly shifts toward retreat and focus. Beyond the gallery-style workspace lies the bedroom, offering panoramic views over the greenery of Városmajor and the Buda Hills—a perspective that is both inspiring and calming.
A walk-in wardrobe and a second windowed bathroom with shower define the private zone clearly, while the sense of openness remains intact.
Throughout the apartment, oak parquet flooring provides a timeless, natural foundation, harmonizing beautifully with the bathrooms’ clean, modern finishes. Daily comfort is ensured by gas underfloor heating, one air-conditioning unit per level, electric shutters, and motorized roof windows—everything needed, without unnecessary excess. A basement storage unit, alarm system, and intercom with door-opening function ensure security and predictability, while the home functions confidently as a coherent, well-designed system.
- The atmosphere, proportions, and true character of this apartment are best experienced through the video.
We highly recommend watching the property video, as it captures the spatial flow, natural light, and overall ambience far more accurately than photos alone.
- What is included in the purchase price:
The purchase price includes only the built-in furniture and built-in appliances.
All other items located in the property – including non-built-in appliances, lighting fixtures, furniture, and decorative elements – may be purchased subject to a separate agreement.
If you are looking for a home that is livable, thoughtfully designed, and retains its value over the long term, this apartment is well worth experiencing in person. Please contact us to arrange a viewing.
----------------------------------------------
We provide free, bank-independent mortgage advisory services to support our buyers in making the most favorable financing decisions. Optional additional services—such as legal assistance, energy certification, or electrical safety inspection—are available to ensure full professional support throughout every step of the transaction process.
-----------------------------------------------
The information in this listing is for informational purposes only. We reserve the right to make changes and correct errors. We do not accept liability for typographical or technical inaccuracies.
Regisztrációs szám
H512634
Az ingatlan adatai
Értékesités
eladó
Jogi státusz
használt
Jelleg
lakás
Építési mód
tégla
Méret
102 m²
Bruttó méret
105 m²
Terasz / erkély mérete
7 m²
Fűtés
Gáz cirkó
Belmagasság
270 cm
Lakáson belüli szintszám
2
Tájolás
Dél-kelet
Lépcsőház típusa
zárt lépcsőház
Állapot
Kiváló
Homlokzat állapota
Kiváló
Lépcsőház állapota
Kiváló
Pince
Önálló
Környék
csendes, jó közlekedés
Építés éve
2017
Fürdőszobák száma
1
Fekvés
utcai
Közös költség
28000
Víz
Van
Gáz
Van
Villany
Van
Csatorna
Van
Lift
van
Helyiségek
előszoba
4.6 m²
fürdőszoba
6 m²
terasz
7.5 m²
nappali
29.2 m²
gardrób
6.6 m²
szoba
10.1 m²
lépcsőház
3.71 m²
közlekedő
13.26 m²
gardrób
5.25 m²
fürdőszoba
4.7 m²
szoba
18.05 m²
Tóth Róbert
Hitelszakértő