59 500 000 Ft
156 000 €
- 49m²
- 2 szoba
- földszint
FOR SALE – Apartment with private garden in Balatonföldvár, 1 km from the beach
In Balatonföldvár, just 1 km from the Keleti Beach, we offer for sale an apartment located in a quiet, low-traffic street, in a two-unit family house, with private garden and a separate summer apartment.
The property is ideal for permanent living, holiday use, or as an investment.
Main features
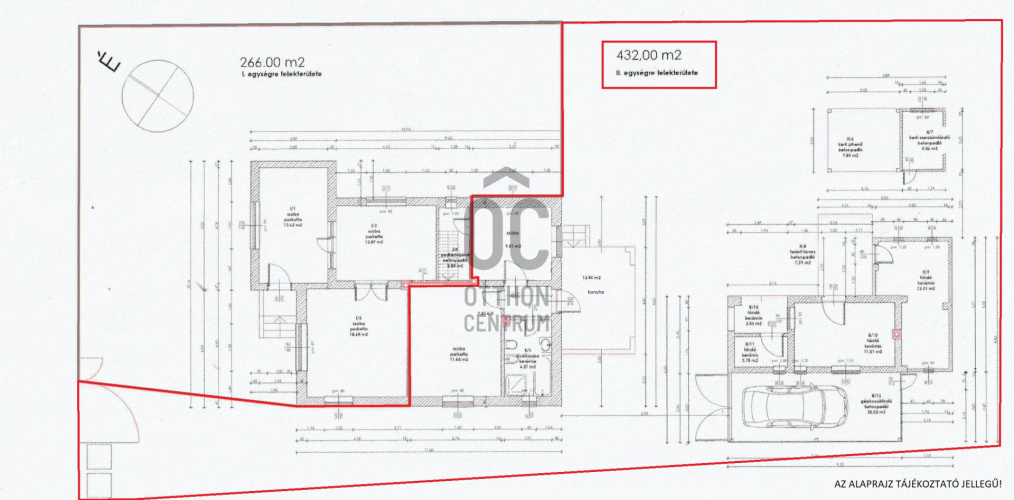
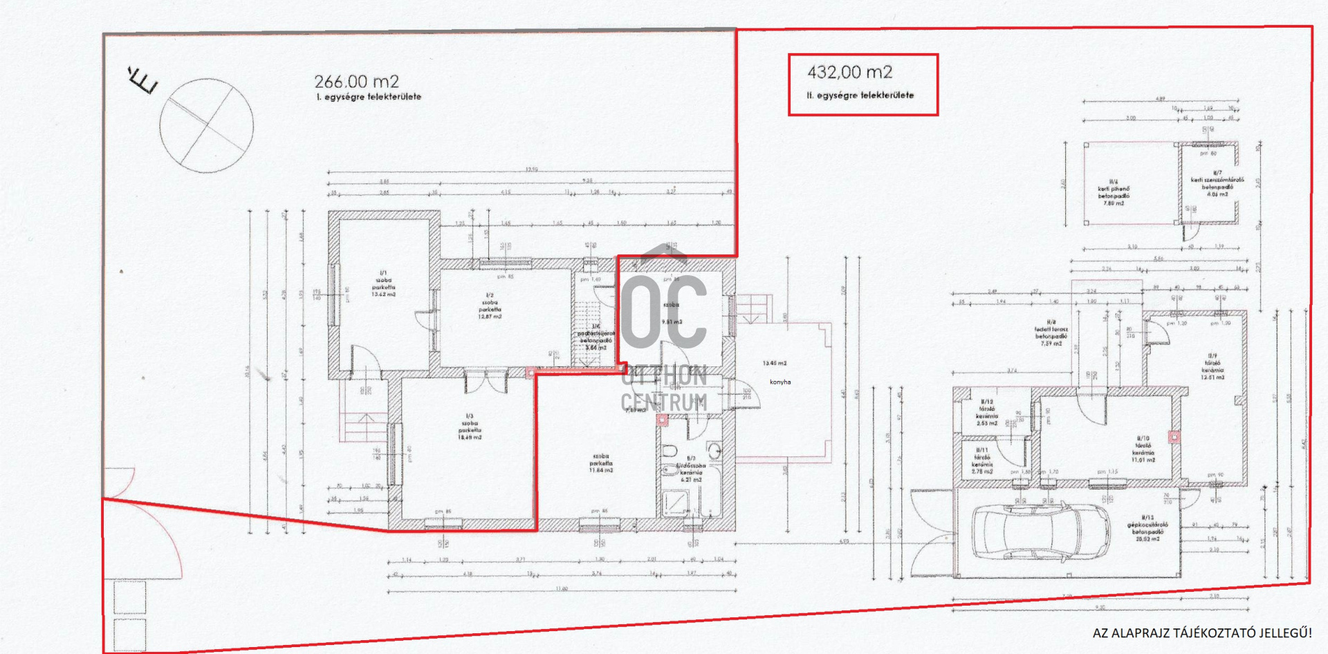
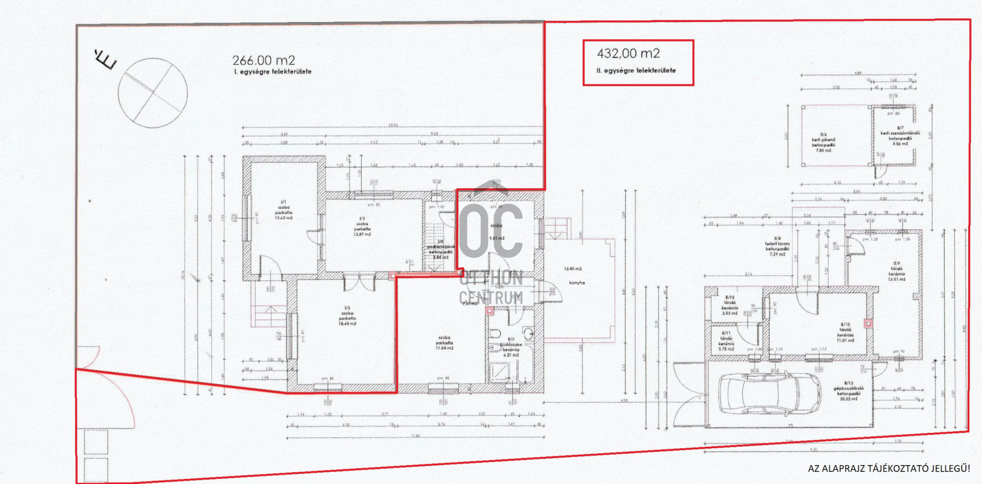
Apartment: 49 m²
Summer apartment: 26 m²
Covered terrace
Garage: 20 m²
Covered gazebo
Garden storage
Plot size: 432 m² (private, separated garden area)
Building details
Two-unit family house, legally established as a condominium
Completely separated units, private garden and separate entrance
Shared wall is sound-insulated
Double-glazed plastic windows with mosquito nets and shutters
Ceiling insulated with rock wool
All utilities available
Separate utility meters
Hot water via electric boiler
Heating: gas convector, cooling-heating air conditioner, electric heating panels
Condominium deed and usage agreement prepared by a lawyer
Apartment layout
2 rooms
Kitchen with dining area
Hallway
Bathroom with toilet
Summer apartment
2 rooms
Bathroom with toilet
Covered terrace + terrace
Previously used for holiday rentals with an established guest base – an excellent investment opportunity.
Garage
Suitable for one car and an additional motorcycle
Location
Keleti Beach: 1 km
Shopping center: 600 m
Railway station: 1.7 km
Contact us with confidence for more information or to arrange a viewing!
The property is ideal for permanent living, holiday use, or as an investment.
Main features
Apartment: 49 m²
Summer apartment: 26 m²
Covered terrace
Garage: 20 m²
Covered gazebo
Garden storage
Plot size: 432 m² (private, separated garden area)
Building details
Two-unit family house, legally established as a condominium
Completely separated units, private garden and separate entrance
Shared wall is sound-insulated
Double-glazed plastic windows with mosquito nets and shutters
Ceiling insulated with rock wool
All utilities available
Separate utility meters
Hot water via electric boiler
Heating: gas convector, cooling-heating air conditioner, electric heating panels
Condominium deed and usage agreement prepared by a lawyer
Apartment layout
2 rooms
Kitchen with dining area
Hallway
Bathroom with toilet
Summer apartment
2 rooms
Bathroom with toilet
Covered terrace + terrace
Previously used for holiday rentals with an established guest base – an excellent investment opportunity.
Garage
Suitable for one car and an additional motorcycle
Location
Keleti Beach: 1 km
Shopping center: 600 m
Railway station: 1.7 km
Contact us with confidence for more information or to arrange a viewing!
Regisztrációs szám
H512610
Az ingatlan adatai
Értékesités
eladó
Jogi státusz
használt
Jelleg
lakás
Építési mód
tégla
Méret
49 m²
Bruttó méret
60 m²
Kert méret
432 m²
Fűtés
gázkonvektor
Belmagasság
280 cm
Tájolás
Dél-nyugat
Lépcsőház típusa
nincs
Állapot
Átlagos
Homlokzat állapota
Átlagos
Lépcsőház állapota
Jó
Építés éve
1961
Fürdőszobák száma
1
Fekvés
kertre néző
Társaház kert
igen
Garázs
Benne van az árban
Garázs férőhely
1
Víz
Van
Gáz
Van
Villany
Van
Csatorna
Van
Vízpart távolsága
több mint 500 méterre
Helyiségek
konyha
1 m²
nappali
1 m²
hálószoba
1 m²
fürdőszoba-wc
1 m²