Eladó családi ház, H512332
Hernád

368 000 000 Ft

975 000 €

  • 363m²
  • 5 szoba
Kiemelt megbízás

Exclusive luxury family residence for sale in Hernád – a lifestyle without compromises.

**Exclusive Luxury Family Residence for Sale in Hernád – A Lifestyle Without Compromises** We are offering for sale this exceptional luxury family house with premium features, located in one of the most tranquil and prestigious areas of Hernád. Every detail of this property represents quality, comfort, and modern technology. The property, with a floor area of 265 m², is in impeccable condition and is situated on a meticulously designed 1500 m² plot, making it an ideal choice for families seeking an exclusive home as well as for those looking for a solid investment. The residence features four spacious rooms, a living room with an American kitchen, and three elegant bathrooms, where the proportions of the spaces and the functional layout serve a high standard of living. **Private Terrace Experiences** - A 72 m² ground-floor, covered, enclosed winter garden – usable all year round, a representative living space. - An 80 m² upper terrace, covered with premium artificial turf, designed for uninterrupted relaxation and leisure. **Parking & Storage – Discreetly Solved** - A covered parking space for two cars, with exclusive honeycomb LED lighting. - A practical, aesthetically pleasing garden storage next to the parking area. **Security & Smart Home System** The house is equipped with comprehensive, professional security: - HikVision camera system (5 cameras, one of which is capable of two-way audio). - HikVision intercom. - Security system connected to 24-hour remote monitoring. - Paradox heat detectors. - Motion and opening sensors in every room and on all doors and windows. - Premium Marshall entrance door with fingerprint and code access. **Interior Spaces – Technology and Elegance** - Designer kitchen with a hidden extractor fan and LED lighting, opening sensor. - Electric blinds. - Automatic water purification system. - A specially designed gym with air conditioning, ventilation system, TV, and sound system. **Wellness & Lifestyle** - Heated seawater swimming pool with a counter-current feature. - Outdoor shower adjacent to the pool. - Built-in grill with options for barbecuing and cooking in a cauldron. - A fully equipped, independent gym of 40 m² located at the end of the garden – a private fitness experience without compromises. **Garden – Sustainable Luxury** - Automatic irrigation system powered by a drilled well. - Husqvarna Automower 415X robotic lawn mower. - Atmospheric, carefully designed garden decorative lighting. **Enclosed Terrace – The Jewel of the Residence** - Fireplace and pizza oven. - Fully equipped premium outdoor kitchen with an island, oven, and griddle. - Triple-glazed, thermally insulated glass roof. - 2×2 wing retractable doors with mosquito nets. → Perfect venue for exclusive dinners, friendly gatherings, in every season. **Future-Proof Solutions** - Huawei 3-phase, 22 kW electric car charger. **Heating & Cooling** - Air-water heat pump. - Underfloor heating. - Air conditioning cooling. - Indoor air circulation. - 300-liter hot water boiler. This property is not just a house; it is a consciously designed lifestyle residence of high technical and aesthetic standards, where luxury naturally becomes part of everyday life. Clean lines, smart solutions, and private luxury – all shaped into a harmonious whole. This home does not follow trends; it represents a standard. Opportunities like this rarely come to the market. Viewings are available strictly by prior arrangement.

Regisztrációs szám

H512332

Az ingatlan adatai

Értékesités
eladó
Jogi státusz
használt
Jelleg
ház
Építési mód
tégla
Méret
363 m²
Bruttó méret
457 m²
Telek méret
1 500 m²
Terasz / erkély mérete
111,9 m²
Kert méret
1 500 m²
Fűtés
hőszivattyú (levegő-víz)
Belmagasság
270 cm
Lakáson belüli szintszám
2
Tájolás
Dél
Állapot
Kiváló
Homlokzat állapota
Kiváló
Környék
csendes, jó közlekedés, zöld, központi
Építés éve
2020
Fürdőszobák száma
3
Társaház kert
igen
Víz
Van
Villany
Van
Csatorna
Van

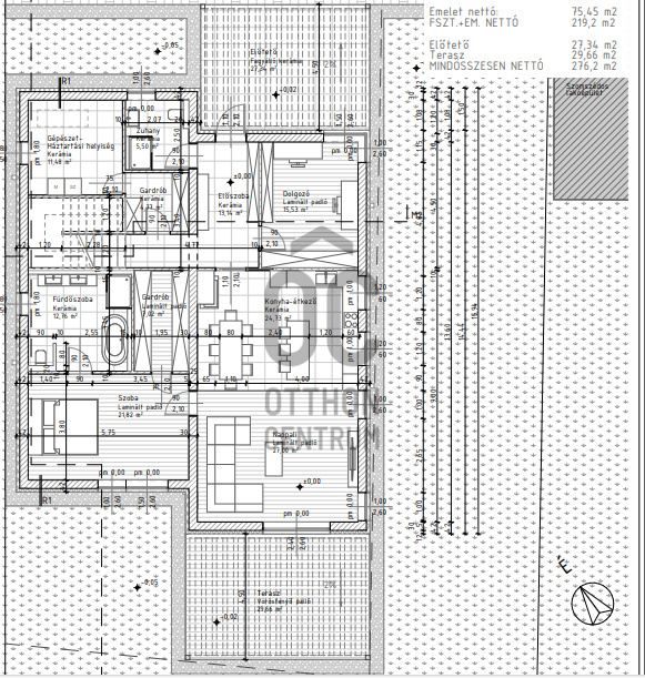
Helyiségek

előszoba
13.14 m²
dolgozószoba
15.53 m²
konyha-étkező
24.73 m²
nappali
27 m²
hálószoba
21.82 m²
gardrób
7.02 m²
fürdőszoba-wc
12.76 m²
gardrób
4.77 m²
háztartási helyiség
11.48 m²
fürdőszoba-wc
5.5 m²
terasz
29.66 m²
hálószoba
19.72 m²
lépcsőház
8.46 m²
közlekedő
13.19 m²
fürdőszoba-wc
7.62 m²
gardrób
7.41 m²
hálószoba
19.72 m²
tetőterasz
82.27 m²
Tóth Róbert
Tóth Róbert

Hitelszakértő

Irodánk kínálatából - I. kerület - Krisztina körút

for rent new construction apartment

Index image
9

for rent commercial property

Index image
9

for sale commercial property

Index image
8

for sale family house

Index image
25

for sale apartment

Index image
14

for sale apartment

Index image
15

for sale apartment

Index image
21

for sale apartment

Index image
13

for sale family house

Index image
18

for sale panel apartment

Index image
data_sheet.details.realestate.section.main.otthonstart_flag.label
18